EasyManua.ls Logo

Panasonic CU-2E18SBE - Cu-3 E23 Sbe

Panasonic CU-2E18SBE
182 pages
Print Icon
To Next Page IconTo Next Page
To Next Page IconTo Next Page
To Previous Page IconTo Previous Page
To Previous Page IconTo Previous Page
Loading...
27
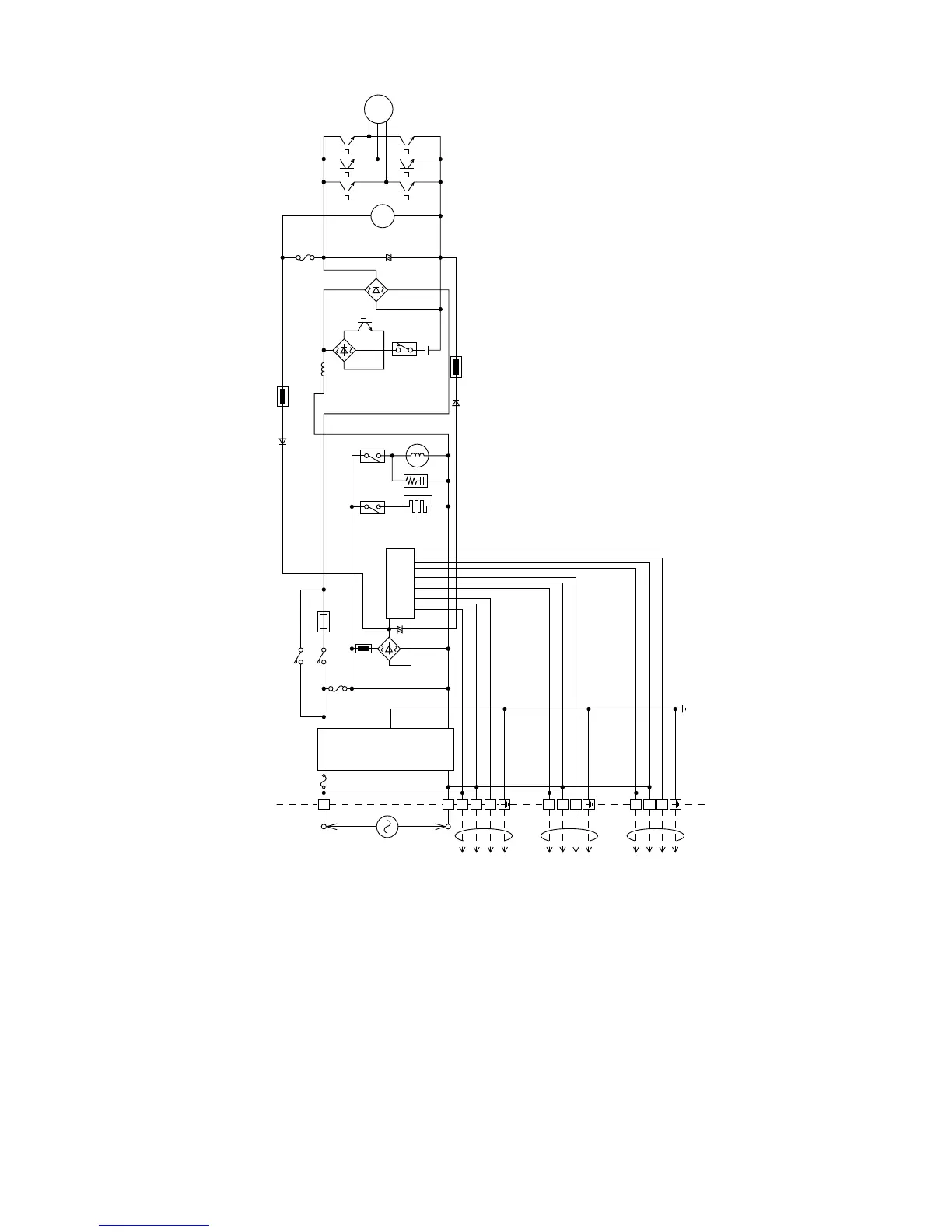
5.2 CU-3E23SBE
1
2
3
1
N
2
3
1
2
3
TO INDOOR UNIT ATO INDOOR UNIT BTO INDOOR UNIT C
L
FUSE
REACTOR
FUSE
NOISE
FILTER
POWER
SUPPLY
AC 230V
50 Hz
INDOOR UNIT OUTDOOR UNIT
HEATER
+
+
+
+
+
FM
COMP
SC

Table of Contents

Related product manuals