EasyManua.ls Logo

Panasonic DMR-E53EG - Page 275

Panasonic DMR-E53EG
285 pages
Print Icon
To Next Page IconTo Next Page
To Next Page IconTo Next Page
To Previous Page IconTo Previous Page
To Previous Page IconTo Previous Page
Loading...
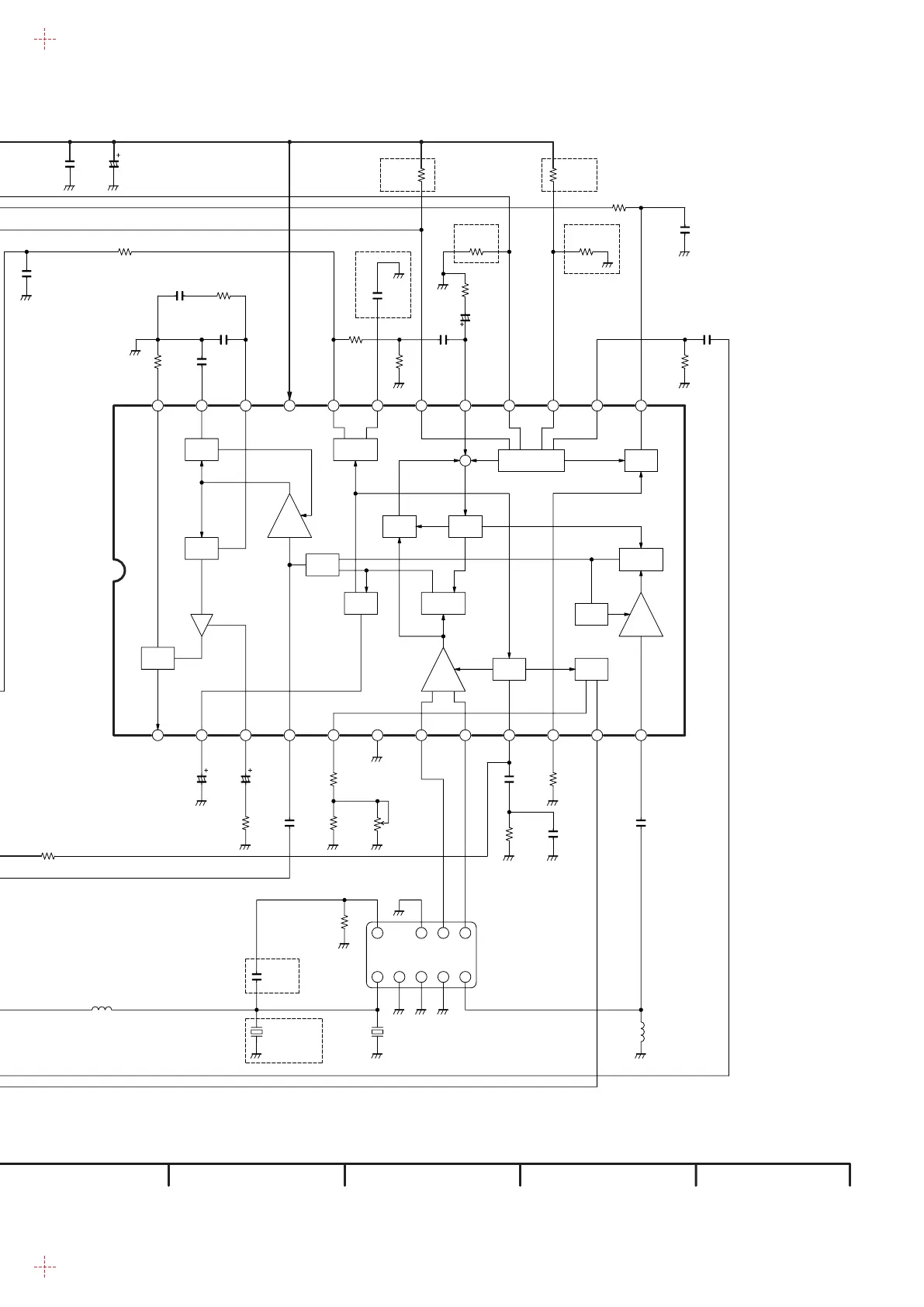
17.12. VIF Decoder Schematic Diagram (For DMR-E55EB/EBL/EP)
9
5V
E55EB
56P
C0728
E55EB
E55EBL/EP
E55EBL/EP
18P
C0717
1M
R0704
0.1
C0705
1K
R0703
AMP
E55EBL/EP
0
R0709
100P
C0732
E55EBL/EP
10K
R0714
0
R0732
100
R0731
J0JBC0000041
LB0701
SW1
SW2
22P
C0730
0
K0709
270
R0747
82
R0743
1.84.203.02.82.82.22.62.83.5
2.31.35.003.14.61.11.15.02.82.00.3
1.1
1.8
(AMP)
2SB0709A0L
Q0702
220
R0741
470
R0742
0.1
C0712
100
R0725
12P:E55EB
3P:E55EBL/EP
C0725
100K
R0702
E55EBE55EB
0
R0701
E55EB
E55EBL/EP
0
R0728
0.47
50V
C0707
51
R0711
10K
R0729
270:E55EBL/EP
470:E55EB
R0740
R0748 270
33P:E55EB
47P:E55EBL/EP
C0721
6V100
C0713
1
C0714
39P
C0727
3300
R0726
0.033
C0706
0.01
C0724
1K
C0702
DET
1ST SIF
AGC
+
AFTFLL
DET
VIDEO
VCOAPC
TRAP
SW
AMP
EQ AMP
DEEM
DET
FM
AGC
AMP
SIF
AGC
IF
22u:E55EBL/EP
27u:E55EB
L0701
22K
R0708
50V1
C0703
50V1
C0701
0.01
C0709
10KB
VR0701
39K
R0707
4700:E55EBL/EP
3900:E55EB
R0705
0.01
C0710
0
R0738
J0B3955A0001:E55EBL/EP
J0B4155A0003:E55EB
X0701
J0B4055A0001
X0702
VLF1497:E55EBL/EP
VLF1495:E55EB
X0704
4700
R0719
22K
R0715
16V22
C0711
SIF OUT
NOTE:THE MEASUREMENT MODE OF THE DC VOLTAGE ON THIS DIAGRAM IS STOP MODE.
ORDERING.WHEN YOU ORDER A PART,PLEASE REFER TO PARTS LIST.
NOTE:DO NOT USE ANY PART NUMBER SHOWN ON THIS SCHEMATIC DIAGRAM FOR
(MAIN NET SECTION)
TO MAIN P.C.B.
AGC
RF
AMP
VIF
AMP
SIF
1ST
C1AB00001924
IC0701
GND
IF
AGC
4MHz
4
3
2
1
(TO TUNER UNIT)
PP0701
3.3u
L0703
54321
67810
0.068
C0704
24 23 22 21 20 19 18 17 16 15 14 13
121110987654321
GND
REG 5V
TUNER VIDEO
AFC S-CURVE
9
8
7
6
5
4
3
2
1
DU7402-27
DU7402-26
DU7402-25
DU7402-24
DU7402-23
DU7402-22
DU7402-21
DU7402-20
DU7402-19
PK0701
87654321
F
E
D
C
B
A
DMR-E55EB/EBL/EP
VIF Decoder Schematic Diagram
63

Table of Contents

Related product manuals