EasyManua.ls Logo

Panasonic DMR-EZ47VP

Panasonic DMR-EZ47VP
122 pages
To Next Page IconTo Next Page
To Next Page IconTo Next Page
To Previous Page IconTo Previous Page
To Previous Page IconTo Previous Page
Loading...
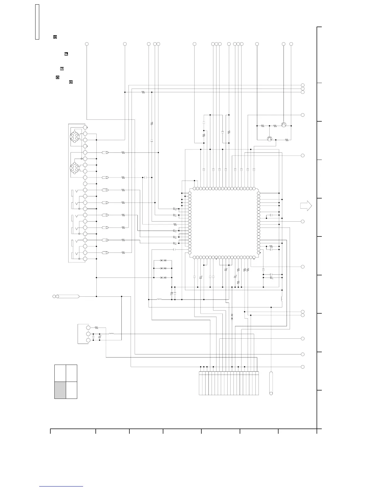
12.14. I/O Section (1/4) (Main P.C.B.(4/4)) Schematic Diagram (I)
1
2
3
4
5
6
7
9
10
11
13
14
15
16
K LJIHGFEDCBA
12
8
C3733
6.3V 1000P
R3908
75[F]
ERJ3GEY0R00V
LB3102
0.1[KB]
C3712
ERJ3GEY0R00V
LB3106
75[F]
R3914
0.01
C3908
75[F]
R3907
ERJ3GEY0R00V
LB3101
R3932
560
0.01[KB]C3721
0.01[KB]C3722
R3939
470
R3915
75[F]
ERJ3GEY0R00V
LB3107
0.01C3715
470R3940C3932 0.01
R3710
10K
0.01
C3723
0.01[KB]C3719
0.01[KB]C3720
0.01[KB]C3716
0.01[KB]C3718
0.01[KB]C3717
R3711 10K
C3724 0.01
Q3901
R3933
560
75[F]
R3912
6.3V 1000P
C3735
ERJ3GEY0R00V
LB3104
R3936
1K
Q3902
R3702
15K[0.5%]
R3703 220
R3704 220
16V 47P
C3714
C3739 0.01[KB]
C3740
16V 47P
C3707 50V 22
C3709
25V 47
0.033[KB]
C3708
C3710
0.1[KB]
K3904
JC_REG5V
18
16
14
8
9
11
12
10
2
3
1
5
7
6
4
13
15
17
19
K1KB19AA0032
P3902
1u[KB]
C3704
R3701
100K[0.5%]
VWJ0795=5
L4801
R4828
0
C4831
0.1[KB]
6.3V 47
C4832
REF_GND
2 13
JK4801
B3ZAZ0000016
C3701
25V47
C3729 0.01[KB]
C3702
0.1[KB]
G0C220JA0019
L3701
R4858
220
VWJ0795=7.5
K3901
VWJ0795=5
K3902
VWJ0795=7.5
K3903
9100
R3922
C3730
6.3V 330P
ERJ3GEY0R00V
LB4103
R4860
220
61
40
59
56
57
52
53
48
49
43
44
41
42
46
47
45
51
50
55
54
58
60
63 65 7271 736968 70 79 8075 7674 787766 676462
38 36 34 32 30 252728 26 22 2124 232931
20
33
18
17
19
35
15
16
13
12
11
14
37
9
7
5
3
1
2
4
6
8
10
39
C1AB00001918
IC3701
C3728
6.3V 330P
0.01[KB]
C3731
R3909
75[F]
C3726
6.3V 1000P
ERJ3GEY0R00V
LB3103
ERJ3GEY0R00V
LB4101
2 14 7 93 105 81518 16 1321 192223 24 1720 1214
JK3902
K1U717B00005
C3711
0.1[KB]
R3707 1M
G0C220JA0019
L3702
AV2 G IN
TEST1
DVD Y IN
DRV GND1
VREF
DVCC1
DRV VCC2
DET OUT B
[21]Y 3 IN
[22]DRV GND2
[41]DVD C IN
C/S DET2
Y 2 IN
DGND1
(BH7622KS2) C 1 IN
VIDEO 2 IN
DVD G/PY IN
DVD B/PB IN
V75 SAG
V75 OUT
PB
C75 OUT
C/S DET3
PRDVD_V_OUT
Y
COM_CPN_OUT
YC
DVD_CPN_OUT
C
Y75 OUT
VIDEO 3 IN
Y75 SAG
S1/S2 OUT
C 2 IN
ADR
S1/S2 DET2
[24]C 3 IN
[23]S1/S2 DET3
SW GND2
DRV VCC1
PB/B OUT
PR/R/C OUT
PR/R/C SAG
PY
PY/G OUT
PY/G SAG
PB/B SAG
DVD_L_OUT
AV2 R/C IN
[42]DRV GND3
[43]DVD R/PR IN
SYN GND
CLK MONI
SEPA V IN
SDA
VREG
CLKR
Y 1 IN[80]TEST3
DET OUT A
SW VCC1
SW GND1
SGND
C OUT B
TEST2
Y/V OUT B
[78]DVCC2
[79]BLSW OUT
SLICER VIDEO B
SW VCC2
BS TUNER
TUNER
DGND2
VIDEO 1 IN
BL SW IN
C/S DET1
[58]SCL
AV2 B IN
[59]SYNC DET OUT
[60]V/C SYNC OUT
Y/V OUT A
SYN VCC
LINE 3 OUT
SW A/B OUT
C OUT A
LINE 2 OUT
SLICER VIDEO A
S1/S2 DET1DRV VCC3
A
DVD_R_OUT
IECOUT
GND
GND
GND
GND
TO P31902
POWER & DIGITAL I/F P.C.B.
(DIGITAL I/F SECTION)
GND
GND
GND
D5V
I2C5DT
XDMUTE
V_YIN_DM
COUT_DM
YOUT_DM
GPYOUT_DM
RPROUT_DM
BPBOUT_DM
I2C5CK
CPN_CIN_DM
S
S
8 9 1076
E
F
G
D
C
54321
B
A
DMR-EZ47VP/EZ475VP
I/O(1/4) Section(Main P.C.B.(4/4))
Schematic Diagram(I)
LOCATION MAP
1/4 2/4
3/4 4/4
TO
I/O SECTION
(3/4)
NOTE:DO NOT USE THE PART NUMBER SHOWN ON THIS DRAWING FOR ORDERRING.
THE CORRECT PART NUMBER IS SHOWN IN THE PARTS LIST,AND MAY BE
SLIGHTLYDIFFERNT OR AMENDED SINCE THIS DRAWING WAS PREPARED.
V:Video Section:(Page: )
D
A:VHS Audio Section:(Page: )
E
S:Syscon/Servo/Timer Section:(Page: )
I:I/O Section:(Page: )
F
G
G
DMR-EZ47VP / DMR-EZ475VP
77

Table of Contents

Related product manuals