EasyManua.ls Logo

Panasonic E3 - Page 38

Panasonic E3
329 pages
Print Icon
To Next Page IconTo Next Page
To Next Page IconTo Next Page
To Previous Page IconTo Previous Page
To Previous Page IconTo Previous Page
Loading...
1-4-1-2-2
1
29
1500
980
35
60
30
36
82
48
39
121
469
Z VIEW
370
60
6089
35
82
48
39
121
4
5
6
7
8
5
6
7
8
4
A VIEW
62.5
5047.5
75.5 16
13
20
412.5
350160200230
160 660 160
(10)
170
37036
980
ȭ32 holes (holes for drain)
330
1
A
Air-discharge
Air intake
Air intake
7
5
6
4
8
Z VIEW
42 74
100
120
173
16
51
35
47
Air-discharge Air intake
When using a drain pipe, install the drain socket
(field supply) onto the drain port. Seal the other
drain port with the rubber cap.
43
2
3
Air intake
(B) Outdoor Unit: U-200PZH2E8
1-4. Dimensional Data
1
2
3
4
5
6
7
8
Mounting hole (4-R6.5),
anchor bolt : M10
Refrigerant tubing (liquid tube),
flared connection (ø9.52)
Refrigerant tubing (gas tube),
flared connection (ø19.05) *1
Refrigerant tubing port
Electrical wiring port (ø13)
Electrical wiring port (ø22)
Electrical wiring port (ø27)
Electrical wiring port (ø35)
Specification for pipe connecting indoor unit to outdoor unit
(Gas tubing connection) While the main gas tube is ø25.4,
since connecting the outdoor unit’s 3-way valve requires a
ø19.05 flare, please be sure to use standard accessories
joint tubing A for connection (brazing).
*
1
U-200PZH2E8
Valve size
(Outdoor unit)
Liquid ø9.52
Ga19.05 *1
Main tube
(Outdoor unit to Indoor unit)
Liquid ø9.52
Ga25.4
Unit: mm
1-4. Dimensional Data
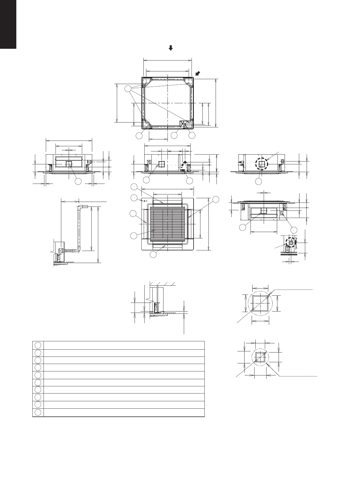
(A) Indoor Units: 4-Way Cassette Type
S-1014PU3E
1
2
3
4
5
6
7
8
9
10
Air intake
Discharge outlet
Refrigerant tubing (liquid tube) ø9.52 (flared)
Refrigerant tubing (gas tube) ø15.88 (flared)
Drain tube connection port VP25 (outer dia. ø32)
Power supply port
Discharge duct connection port (ø150)
Suspension bolt hole (4-12×30 elongated hole)
Fresh air intake duct connection port (ø100) *
* Necessary to attach duct connecting flange (field supply)
<Filter dimension>
520 x 520 x 15
The length of the suspension bolts
should be selected so that there is
a gap of 30 mm or more below the
lower surface of the ceiling (18 mm
or more below the lower surface of
the main unit), as shown in the
figure at right. If the suspension
bolt is too long, it will contact
the ceiling panel and the unit
cannot be installed.
Raise dimension of drain tube
unit: mm
View X
View XX
X
Z
Y
Detailed view Z
Detailed view Y
113
80
64
80
64
4 - M4
Tapping screw holes
162
115
105
105
115
4 - M4
Tapping screw holes
Over 30
Over 18
122
Less than 666
Less than 850
Less than 300
272110
840
143
32
127 50
319
51
33.5
2
2
2
2
9
7
4
3
5
8
1
6
7
7
7
10
860~910
780
(Ceiling opening dimensions)
(Suspension bolt pitch)
860~910
(Ceiling opening dimensions)
XX
950
950
515
515
(Air intake)
(Air intake)
(390)
(410)
340
418
700
(Suspension bolt pitch)
90
134
143
2
480
187
90 124
184
2
480
840
143
143
192
(192)
35
Less than 35Less than 35
ECONAVI sensor (CZ-KPU3A or CZ-KPU3AW)
SM830281-00_欧州向け R32シングル TD&SM.indb 2 20/01/09 14:59:25

Table of Contents

Related product manuals