EasyManua.ls Logo

Panasonic PT-AE900U

Panasonic PT-AE900U
75 pages
To Next Page IconTo Next Page
To Next Page IconTo Next Page
To Previous Page IconTo Previous Page
To Previous Page IconTo Previous Page
Loading...
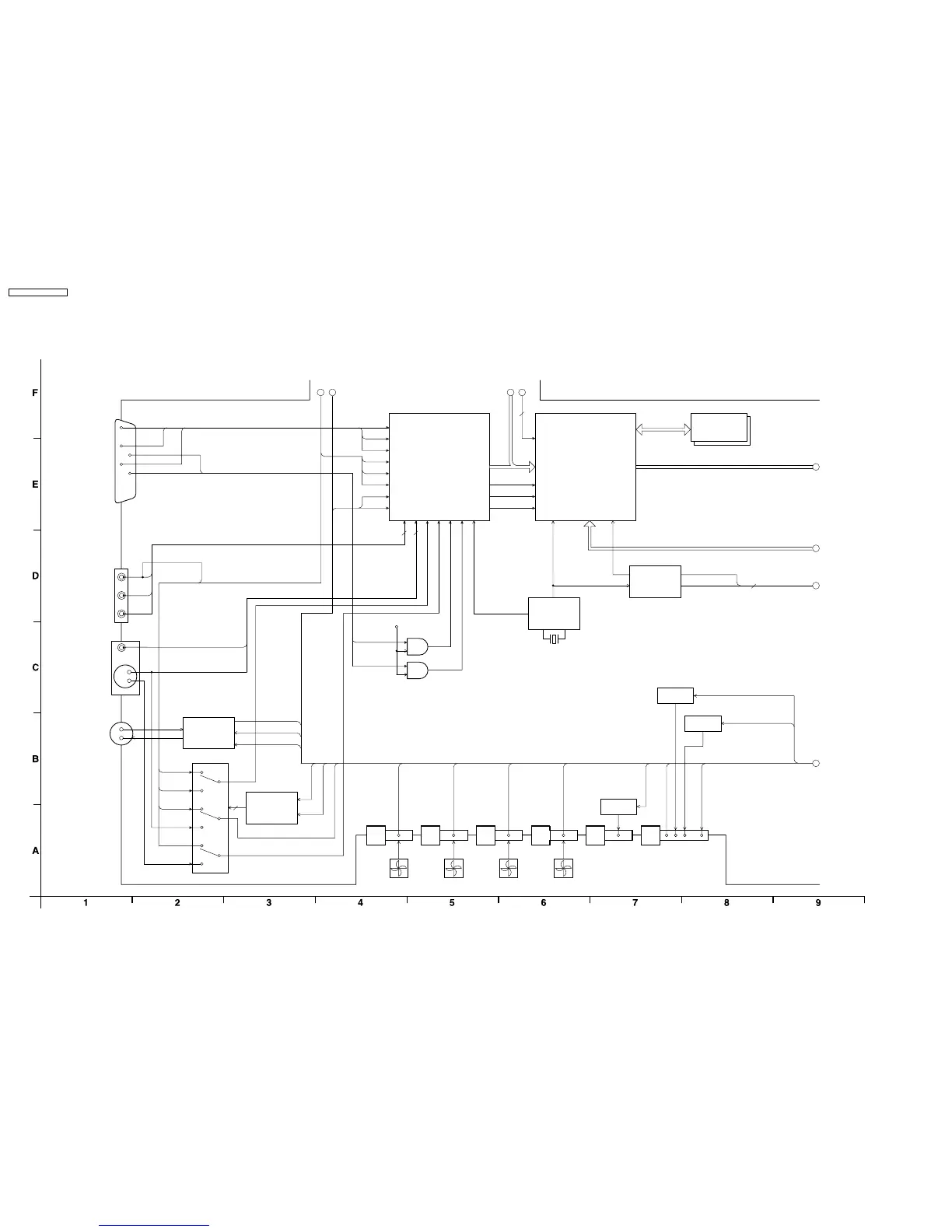
10.2. Signal Processing (1/3)
Signal Processing (1/3)
SW
Q1034
SW
Q1031
IC1102
IC1103
POCLK
BLST_ON
LCDCLK
FPGACK
BLST_CT
SW
Q1032
PC IN
1
2
3
R
G
B
13
14
HD
VD
S2 VIDEO
IN
C
Y
VIDEO IN
SERIAL
Y_IN
PB_IN
PR_IN
VIDEO, SYNC
SW CONTROL
232C
DRIVER
SWITCHING,
VIDEO DECODER,
3ch A/D,
PLL
RESIZE,
V-KEYSTONE CORRECTION,
SD/HD IP
TRANSFORMATION,
3D-NOISE REDUCTION,
BITMAP OSD
HD
CVBS_RCA
S/C_IN
IC1137
+3.3 V
IC1138
CTRL_1
CTRL_2
PDETECT
G
R
AC_Y1
AC_PB
AC_PR
SDA2
SCL2
B
VD
SQUEEZE
RXD
STATUS
TXD
IC1004
IC1007
Q1117, Q1118
PBS
A9
FAN_SEN2
EXHAUST
A17
FAN_SEN1
POWER
A16
FAN_SEN3
MAIN_STBY
LAMP_SENSE
INTAKE
A15
P-Module
P3
K-Module
K2
Q-Module
Q3
A6
PWMOUT
A4
64M SDRAM
(x2)
PIHS
PLLCK
PIVS
MCLK
X1001
(27 MHz)
IC1001 IC1005 IC1006
IC1008
1
3
4
2
A-P.C.Board
COMPONENT
IN
AC_SYNC
R1IN
T1OUT
Y_SYNC
CVBS_
SCART
S_SW
S1_S2
Y_SYNC
a b c d
from/to (3/3)
2
CLOCK
GENERATOR
3 2
CLOCK
GENERATOR
2
3
PT-AE900U / PT-AE900E
42

Table of Contents

Other manuals for Panasonic PT-AE900U

Related product manuals