EasyManua.ls Logo

Panasonic SA-MAX8000GN - Page 37

Panasonic SA-MAX8000GN
104 pages
Print Icon
To Next Page IconTo Next Page
To Next Page IconTo Next Page
To Previous Page IconTo Previous Page
To Previous Page IconTo Previous Page
Loading...
37
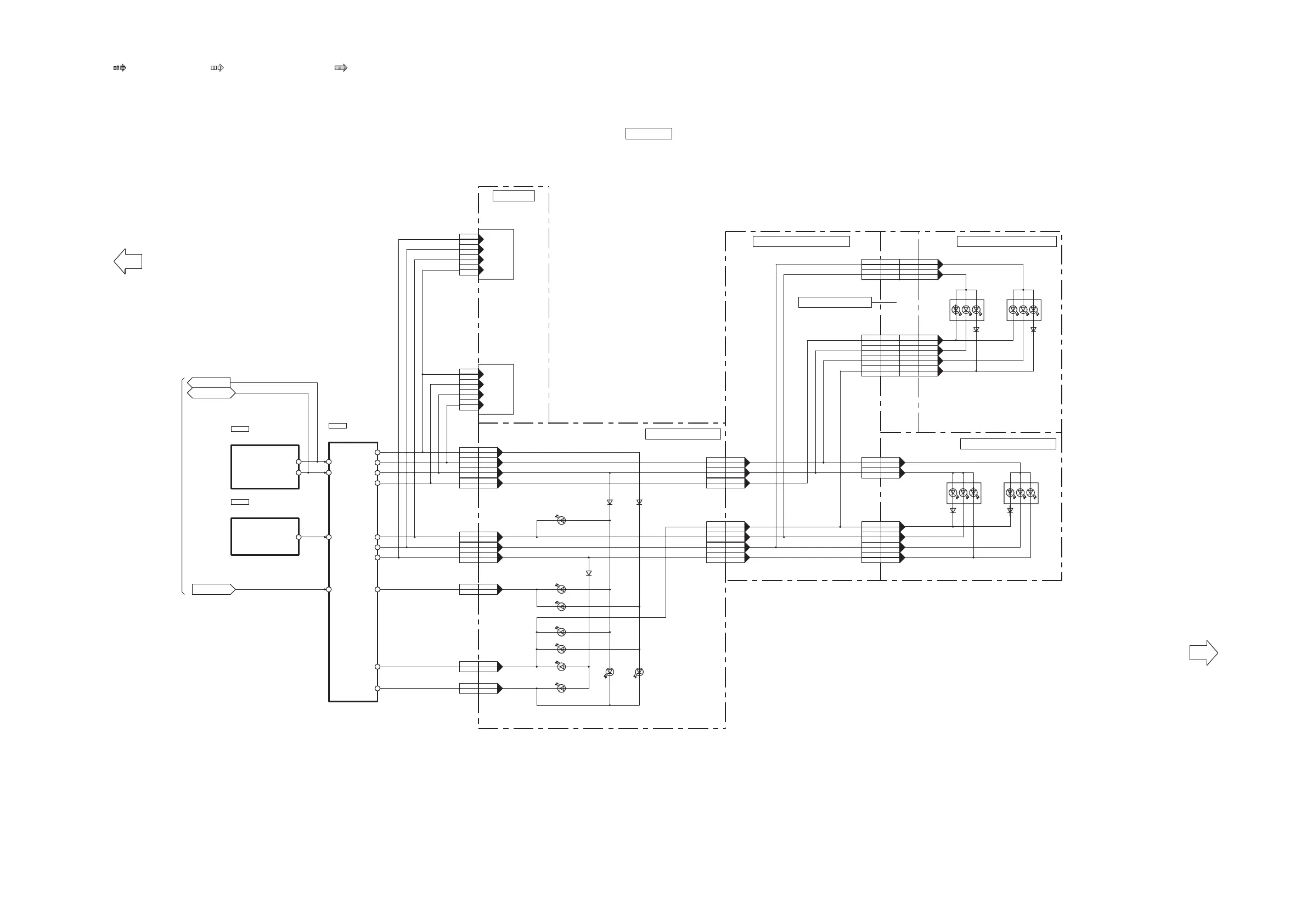
SA-MAX8000GN SYSTEM CONTROL (3/4) BLOCK DIAGRAM
TO SYSTEM CONTROL
BLOCK (2/4)
TO SYSTEM CONTROL
BLOCK (4/4)
: CD INPUT SIGNAL LINE
: USB SIGNAL LINE
: TUNER/AUX INPUT SIGNAL LINE
SOC
C1AB00004188
IC1001
FROM/TO AUDIO
BUTTON LEFT P.C.B.
KIRARI IN
KIRARI IN
SCL0 75
SDA0 76
KPX6 18
MAIN P.C.B.
VOLUME JOG P.C.B.
ILLUMINATION LEFT P.C.B.
ILLUMINATION RIGHT P.C.B.ILLUMINATION JOG P.C.B.
Z3
Z6
Z2
Z10
Z5
Z6
101
P1960
1
P1961
6
P1980P1930
Z5
92
P1960
2
P1961
5
P1980P1930
Z3
83
P1960
3
P1961
4
P1980P1930
Z2
74
P1960
4
P1961
3
P1980P1930
Z10
56
P1960
6
P1961
1
P1980P1930
Z1
Z1
65
P1960
5
P1961
2
P1980P1930
Z1Z1
510
P1501P1801
Z4Z4
114
P1501P1801
Z2Z2
69
P1501P1801
Z3
Z3
78
P1501P1801
Z5Z5
87
P1501P1801
Z6
Z6
96
P1501P1801
Z7
Z7
105
P1501P1801
Z8
Z8
141
P1501P1801
Z9Z9
132
P1501P1801
Z1Z1
86
P1932P1503
Z1Z1
16
P1950P1931
Z2Z2
25
P1950P1931
Z5Z5
34
P1950P1931
Z10Z10
43
P1950P1931
Z6Z6
52
P1950P1931
Z7Z7
61
P1950P1931
Z2Z2
95
P1932P1503
Z3
Z3
104
P1932P1503
Z5Z5
113
P1932P1503
Z10Z10
77
P1932P1503
Z6
Z6
122
P1932P1503
Z7
Z7
131
P1932P1503
D1515,
D1512,
D1522
D1514,
D1516,
D1518
D1513,
D1507,
D1517
D1506
D1511
D1504
D1502 D1500
D1505
D1503
D1501
LED DRIVER
AN32183A-VF
IC1501
Z1
SCL
NRST
SDA
19
Z2 18
Z3 16
Z4 14
Z5 12
Z6 11
Z7 10
Z8 8
Z9 6
2
IO EXPANDER
C0ZBZ0002175
IC1202
22
CLKIO20
3
D1950
D1953,
D1954
D1952,
D1955
D1951
D1981
D1983,
D1984
D1982,
D1985
D1980
1
P1501
Z1
4
P1501
Z4
3
P1501
Z3
2
P1501
Z2
SB-MAX8000
SB-MAX8000
1
P1502
Z4
4
P1502
Z7
3
P1502
Z6
2
P1502
Z5
SPEAKERS
I2C SCL
I2C SCL
I2C SDA
I2C SDA
D1508
Z10
Z10
123
P1501P1801
Z10 5

Table of Contents

Related product manuals