EasyManua.ls Logo

Panasonic SA-PT160E - Page 81

Panasonic SA-PT160E
104 pages
Print Icon
To Next Page IconTo Next Page
To Next Page IconTo Next Page
To Previous Page IconTo Previous Page
To Previous Page IconTo Previous Page
Loading...
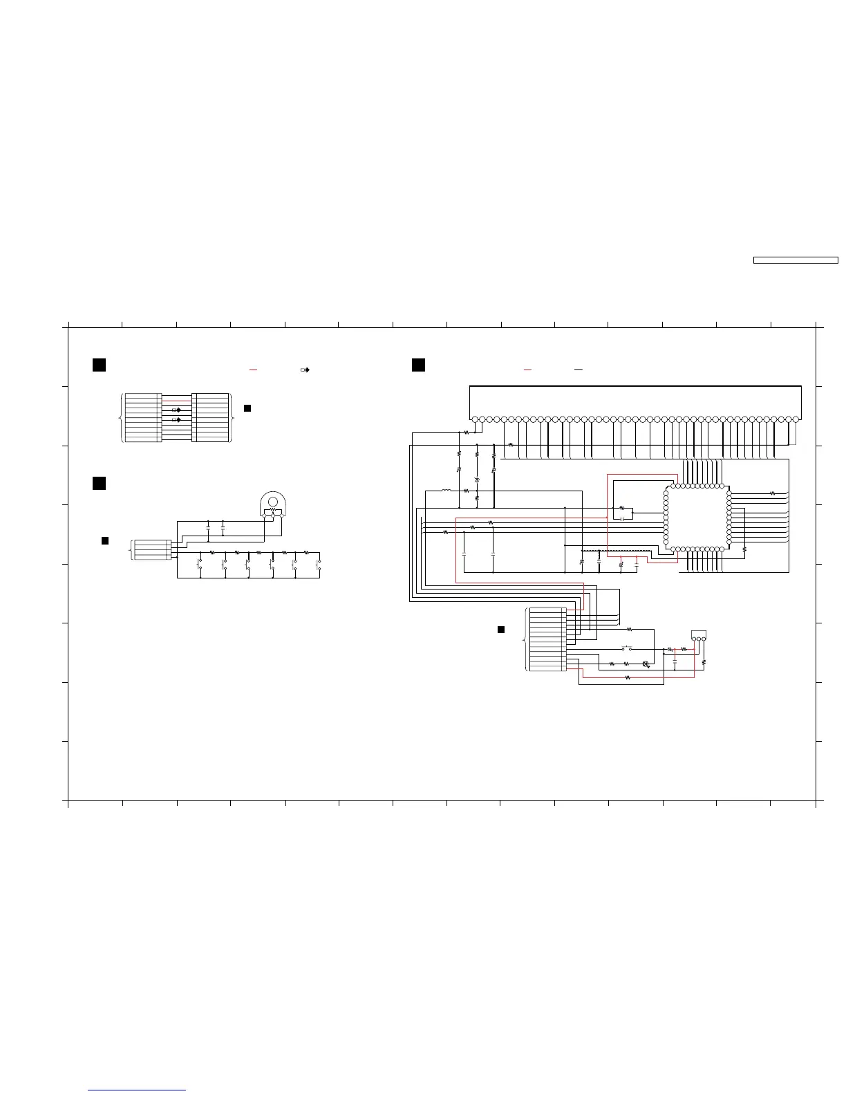
19.3. Tuner Extent, Panel & Volume Circuit
C
SCHEMATIC DIAGRAM - 9
SA-PT160E/EB/EG TUNER EXTENT / PANEL / VOLUME CIRCUIT
TUNER EXTENT CIRCUIT
D
PANEL CIRCUIT
E
VOLUME CIRCUIT
TO
MAIN CIRCUIT
(CN2002)
IN SCHEMATIC
DIAGRAM - 6
TO TUNER PACK
(J3CBBC000001)
B
TO
MAIN CIRCUIT
(CN2007)
IN SCHEMATIC
DIAGRAM - 6
B
:+B SIGNAL LINE
:-B SIGNAL LINE
:+B SIGNAL LINE :FM SIGNAL LINE
TO
MAIN CIRCUIT
(CN2005)
IN SCHEMATIC
DIAGRAM - 6
B
A
B
C
D
E
F
G
H
1234567891011121314
1234567891011121314
A
B
D
E
F
H
G
C
G4
R6905
1.5K
D6900
B3AAA0000803
W6509
0
W6511
0
FLD_STB1
FLD_CLK1
FLD_OUT1
S6800
FLGND
7
9
11
10
12
8
2
3
1
5
6
4
13
CN6001
321
Z6900
B3RAB0000025
C6918
10V47
C6904
1000P
C6906
100P
R6914
82K
C6911
0.01
C6910
6.3V100
C6916
100P
FLD_STB1
C6917
100P
68R6919
FLD_CLK1
FLD_OUT1
R6917
1K
68
R6916
50V3.3
C6913
FLGND
P9
P8
P14
P12
P10
P11
P13
P17
P15
P16
C6909
0.01
P2
P1
P3
P7
P5
P4
P6
47
R6934
G1
D6910
B0BC3R400001
R6918
22K
J0JBC0000041
L6903
21
5
6
3
1
2
4
19
9
7
8
16 17
11
10
12 151413 18 20
35374244 43 39 3841 40 36
33
22
31
29
27
24
23
26
25
28
30
32
34
C0HBB0000057
IC6901
-VP
F1
232114 15 1917 201810 1178 22 4441403736 383332 3429 3025 2624 2827 31 35 39 43 45
FL6901
A2BD00000170
42
16
13
12
9
123456
R6936
10
50V22
C6903
G9
G7
G5
G3
G2
G4
G6
G8
G10
50V22
C6905
G8
P16
P15
G2
P17
P11
P12
P8
P9
P6
P7
P10
G3
P13
P14
G9
G10
G5
G6
G1
G6
G7
0
R6939
F2
P3
0
R6940
P1
P2
P5
P4
6
8
9
7
2
1
4
5
3
10
CN2010
6
8
9
7
2
1
4
5
3
10
CP2010
F2
F2
TUNER DI
PORT_SEL
TUNER CLK
PORT_SEL
TUNER DI
TUNER CLK
T+9V
TUNER RCH
RDS DETECT
TUNER SD
TUNER LCH
TUNER DO/ST
TUNERGND
TUNER SD
TUNER LCH
TUNERGND
T+9V
TUNER RCH
TUNER DO/ST
RDS DETECT
G4
RMT
KEY1
POWER
VREF
STBLED
REMOTE CONTROL SENSOR
FLGND
FLD_CLK
(FL+) FL1
RMT
-VP
STBLED
VREF
DGND
KEY1
(FL-) FL2
SW+5V
FL2
FL1
F1
NP
P3
P1
P2
NX(G9)
NX(G10)
NX(G10)
P4
F1
P1
G1
P3
P4
OSC
P2
-VP
G7
NX(G1)
G2
G10
G9
P17
G3
P8
P6
P5
P7
P9
P15
P13
P11
P10
P12
P14
P16
NX(G1)
NX(G4)
NX(G6)
NX(G7)
NX(G8)
NX(G6)
NX(G5)
NX(G4)
G8
G1
G6
G5
G7
G6
G9
G8
VCC
G10
GND
G4
G3
G5
-VP
FLD_STB
SW+5V
FLD_OUT
SW+5V
P17
P18
P15
P16
STB
DIN
CLK
GND
VCC
P7
P9
P11
P13
P14
P12
P8
P5
P6
NP
DISPLAY DRIVER
FL DISPLAY
321
1.8K
R6804 R6805
2.2K
S6806
S6805
S6803
1K
R6802
S6804
1.2K
R6803
1K
R6801
S6802
S6801
100P
C6805
100P
C6806
EVEKE2F2524M
VR6800
2
1
4
3
H6004
SELECTOR
STOP
DGND
JOG_A
JOG_B
JOG_A
JOG_B
KEY2
PLAY
REVERSE
FORWARD
OPEN/CLOSE
VOLUME JOG
DGND
0
W6545
0
W6101
0
W6102
W6513
0
W6504
0
W6502
0
W6512
0
SA-PT160E / SA-PT160EB / SA-PT160EG
81

Table of Contents