EasyManua.ls Logo

Panasonic TH-58PH10UK - C1, C2 and C3-Board Block Diagram

Panasonic TH-58PH10UK
149 pages
Print Icon
To Next Page IconTo Next Page
To Next Page IconTo Next Page
To Previous Page IconTo Previous Page
To Previous Page IconTo Previous Page
Loading...
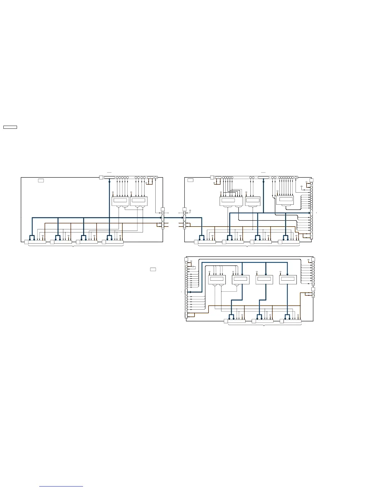
14.34. C1, C2 and C3-Board Block Diagram
USL
UEH
UMH
UML
USH
UEL
CLKD_2P
CLKD_3N
CLKD_1N
CLKD_0P
LE
PC1
PC2
ODE
CLR
PC3
SOS8_SS
CLKU_0P
CLKU_3N
CLKU_2P
CLKU_1N
URH
CLKU_3N
CLKU_2P
ODE_C3
PC4_C3
LE_C3
CLR_C3
LE
PC4
ODE
CLR
UEL
USH
CLR
UML
ODE
UMH
UEH
LE
CLKU_3N
CLKU_2P
USL
PC4
SOS8_SS
URH
UML
USH
USL
UEL
UMH
UEH
URH
SOS8_SS
CLKU_2P
CLKU_3N
PC4
LE
CLR
ODE
+5V
+5V
+5V +5V
+5V+5V
5V_DET
+5V
+5V
+5V +5V +5V
+5V
+5V
+5V
+5V
5V_DET
+5V
+5V +5V +5V
+5V
+5V+5V+5V+5V
+5V
VCC
57
5
6bit
A8-C9
6bit
63
7
68
6
A16-C17
8
C10
A10-C11
60
58
56
55
A18-C19
7
C22
559 1
CB2
CB3
59
6bit
C21
A6-C7
IC7102
BUFFER
A14-C15
CB6
4
Vda75V
Vda75V
C11
CB5
6bit
DATA
36bit
DA0-DC11
30bit
DA12-DC21
DATA
TO D31
CB4
A12-C13
9
CB7
810
49 - 16
DOUTDA12
DOUTDC21
ODE_C1
7
1
C20
30
23
31
LE_C1
14 12
PC1_C1
IC7101
VCC
BUFFER
IC7203
VCC
BUFFER
P5V
P5V
5V_DET
UML
UEL
USH
USL
SOS8_SS
UMH
6bit
6bit 6bit
6bit
6bit
6bit
6bit
6bit 6bit
6bit
UEL
USH
USL
UML
UMH
UEH
SOS8_SS
P5V
Vda75V
Vda75V
DATA DRIVE
LOWER RIGHT(FRONT VIEW)
C1
C2
DATA DRIVE
LOWER CENTER
(FRONT VIEW)
PANEL DATA DRIVER
TO D32
TO C3 2
6bit 6bit
6bit
6
CLR_C1
53 51
CLK0P_C1
CLK1N_C1
CLK2P_C1
CLK3N_C1
30 1
5V DET
6bit
6bit
P5V
P5V
6668
DOUTDC11
DOUTDA0
55 - 15
61
LE_C2
PC3_C2
VCC
PC4_C2
60
ODE_C2
CLR_C2
6264 63
IC7202
BUFFER
UEH
UEL
USH
USL
UMH
UML
UEH
13 11
IC7201
VCC
57
BUFFER
CLK0P_C2
CLK2P_C2
CLK1N_C2
CLK3N_C2
PC2
PC2
PC1
PC3
PC3
PC3
02P,12N
23P,33N
24P,34N
07P,17N
05P,15N
06P,16N
CB1
PC1
6bit
6bit
6bit
01P,11N
A20-C21
PC2_C1
66 P5V
61 URH
64
URH
URH
3
49
27
1
8
24
23
22
53
25
CLKU_3N
ODE_C3
CLR_C3
PC4_C3
LE_C3
CLKU_2P51
DOUTDA0
DOUTDC5
5V_DET
C32
20
9
42DOUTDC5
11
68
13
ODE_C3
CLR_C3
PC4_C3
LE_C3
CLKU_2P 18
UEL
10
USH
3P5V
8URH
5
TO C22
12
5V_DET
USL
6
UML
1
UMH
UEH
SOS8_SS
61
45
DOUTDA0
P5V
46
Vda75V
47
Vda75V
16
44
CLKU_3N
14
A4-C5
6bit
6bit
6bit
6bit 6bit
6bit
6bit
A0-C1
PC4
10
CB9
PC4
PC4
21P,31N
29P,39N
20P,30N
A2-C3
6bit 6bit
PANEL DATA DRIVER
UEL
USH
USL
3
8
TO SS33
UMH
URH
UEH
9
SOS8_SS
TO SS35C35
UML
5
7
1
P5V
Vda75V
Vda75V
2
1
2
4
6
C33
IC7304
BUFFER
VCC
IC7303
VCC
BUFFER
IC7302
BUFFER
VCC
CB
11
CB
BUFFER
VCC
IC7301
DATA 18bit
DA0-DC5
DA0-DC5
DATA 18bit
C3
DATA DRIVE
LOWER LEFT
(FRONT VIEW)
58
28
23 8
3
CB8
PC3
6bit
6bit
08P,18N
DA12-DC13
6bit
A12-C13
PANEL DATA DRIVER
TH-58PH10UK
C1, C2 and C3-Board Block Diagram
TH-58PH10UK
C1, C2 and C3-Board Block Diagram
TH-58PH10UK
100

Table of Contents

Related product manuals