EasyManua.ls Logo

Panasonic TH-58PH10UK - Removal of P-Board; Removal of D-Board; Removal of H3-Board (L, R); Removal of SU-Board and SD-Board

Panasonic TH-58PH10UK
149 pages
Print Icon
To Next Page IconTo Next Page
To Next Page IconTo Next Page
To Previous Page IconTo Previous Page
To Previous Page IconTo Previous Page
Loading...
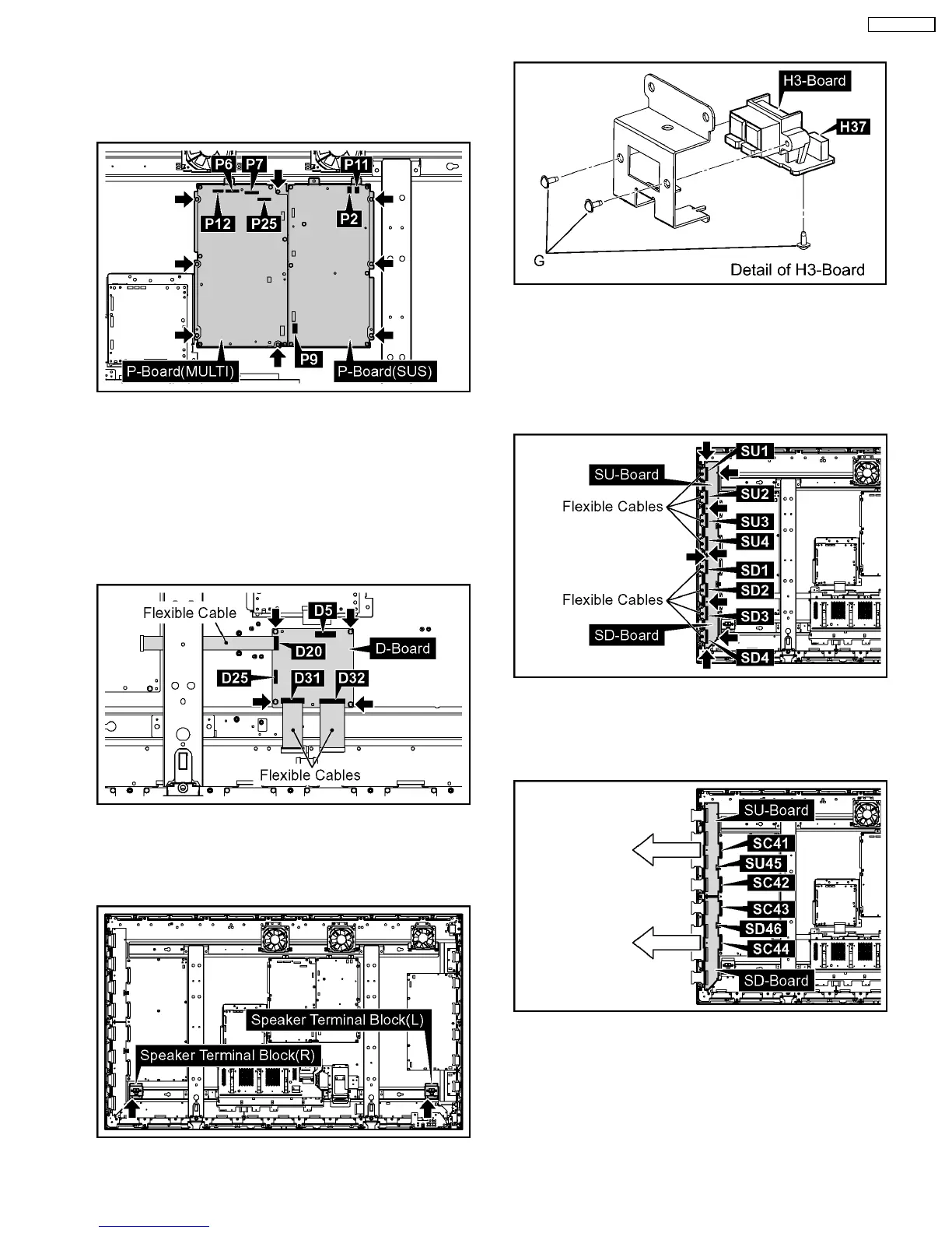
6.8. Removal of P-Board
1. Disconnect the connectors (P2, P6, P7, P9, P11, P12,
P25).
2. Remove 8 screws and then remove P-Board.
6.9. Removal of D-Board
1. Remove the Slot Block.
(Refer to Removal of Slot Block)
2. Disconnect the connectors (D5, D20, D25).
3. Remove the Flexible Cables from the connectors (D31,
D32).
4. Remove 4 screws and then remove D-Board.
6.10. Removal of H3-Board (L, R)
1. Remove 2 screws and then remove the Speaker Terminal
Block (L, R).
2. Disconnect the connector (H37).
3. Remove 3 screws (G) and then remove H3-Board.
6.11. Removal of SU-Board and SD-
Board
1. Remove the Flexible Cables from the connectors (SU1,
SU2, SU3, SU4, SD1, SD2, SD3, SD4).
2. Remove 8 screws.
3. Disconnect the connectors (SU45, SD46).
4. Slide SU-Board and SD-Board to the left to remove SU-
Board and SD-Board from the connectors (SC41, SC42,
SC43, SC44).
11
TH-58PH10UK

Table of Contents

Related product manuals