EasyManua.ls Logo

Panasonic TH-58PH10UK - HA-Board Block and Schematic Diagram

Panasonic TH-58PH10UK
149 pages
Print Icon
To Next Page IconTo Next Page
To Next Page IconTo Next Page
To Previous Page IconTo Previous Page
To Previous Page IconTo Previous Page
Loading...
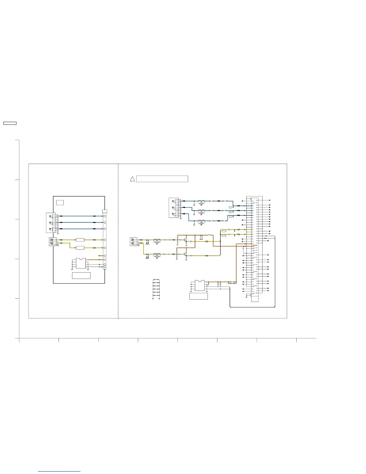
14.6. HA-Board Block and Schematic Diagram
Y
Pb
Pr
+
Y
Pb
Pr
AA_SDA2
AA_SCL2
RXD
TXD
CABEL_DET
REMOTE
SOS
PWR_STAT
RESET2
AB_AUD_L
AB_AUD_R
9V
AB_AUD_L
AB_AUD_R
RESET1
S2_DET
9V
AA_SCL2
AA_SDA2
STB5V
C3012
16V
0.1u
R3026
100
R3007
100
JS3015
ERJ3GEY0R00V
L3006
10u
JK3001
K1QBB3BB0002
G
Y
G
G
G
Pb
G
G
G
Pr
G
G
R3016
10k
JS3001
L3003
J0HABB000004
1
2
3
4
C3007
1u
16V
R3018
100
JS3012
ERJ3GEY0R00V
TP032
C3011
16V
47u
H1
A1
A2
A3
A4
A5
A6
A7
A8
A9
A10
A11
A12
A13
A14
A15
A16
A17
A18
A19
A20
A21
A22
A23
A24
A25
A26
A27
A28
A29
A30
A31
A32
A33
A34
A35
A36
A37
A38
A39
A40
B1
B2
B3
B4
B5
B6
B7
B8
B9
B10
B11
B12
B13
B14
B15
B16
B17
B18
B19
B20
B21
B22
B23
B24
B25
B26
B27
B28
B29
B30
B31
B32
B33
B34
B35
B36
B37
B38
B39
B40
R3014
10k
JS3006
JS3004
JS3013
ERJ3GEY0R00V
JS3008
ERJ3GEY0R00V
R3036
10k
JS3007
ERJ3GEY0R00V
R3041
0
R3042
0
R3023
1k
JS3016
ERJ3GEY0R00V
Q3002
2SD0601A0L
JS3005
L3001
J0HABB000004
1
2
3
4
R3025
100
TP036
R3015
10k
IC3002
C3EAGC000027
1
A0
2
A1
3
A2
4
VSS
5
SDA
6
SCL
7
WP
8
VCC
C3008
1u
16V
R3037
10k
R3017
10k
TP033
R3019
100
JS3003
JS3014
ERJ3GEY0R00V
Q3001
2SD0601A0L
C3021
10V
1u
R3006
100
R3005
180k
JS3011
ERJ3GEY0R00V
L3002
J0HABB000004
1
2
3
4
L3004
J0HABB000003
1
2
3
4
JS3002
C3022
0.1u
16V
TP034
JK3002
K2HA204B0097
R3004
180k
R3022
1k
L3005
J0HABB000003
1
2
3
4
TP035
JK3001
G
Y
G
G
G
Pb
G
G
G
Pr
G
G
IC3002
1
A0
2
A1
3
A2
4
GND
5
SDA
6
SCL
7
WP
8
VCC
JK3002
PLUG_DET
3.3V
3.3V
RSVD
RSVD
VD
HD
LAN15V
LAN15V
AUD_R
AUD_L
EEPROM
TERMINAL BOARD
INFORMATION
HA-BOARD TXNHA1YNSA
!
COMPONENT
VIDEO IN
AUDIO IN
Pr
Pb
Y
AUDIO IN
R
L
Q3001
Y
A38
SCL
A26
SDA
B25
B24
Pb
STB5V
A36
VIDEO IN
COMPONENT
TERMINAL BOARD
R
EEPROM
L
Pr
R AMP
Q3002
L AMP
A22
H1
A34
A28
HA
Component Video Terminal
A21
INFORMATION
9V
9V
TO
DS-BOARD
(DS13)
6
D
E
A
542 813 7
B
C
TO DS13
TH-58PH10UK
HA-Board Block and Schematic Diagram
TH-58PH10UK
HA-Board Block and Schematic Diagram
TH-58PH10UK
72

Table of Contents

Related product manuals