EasyManua.ls Logo

Panasonic TX-PR42C10 - Page 28

Panasonic TX-PR42C10
123 pages
Print Icon
To Next Page IconTo Next Page
To Next Page IconTo Next Page
To Previous Page IconTo Previous Page
To Previous Page IconTo Previous Page
Loading...
28
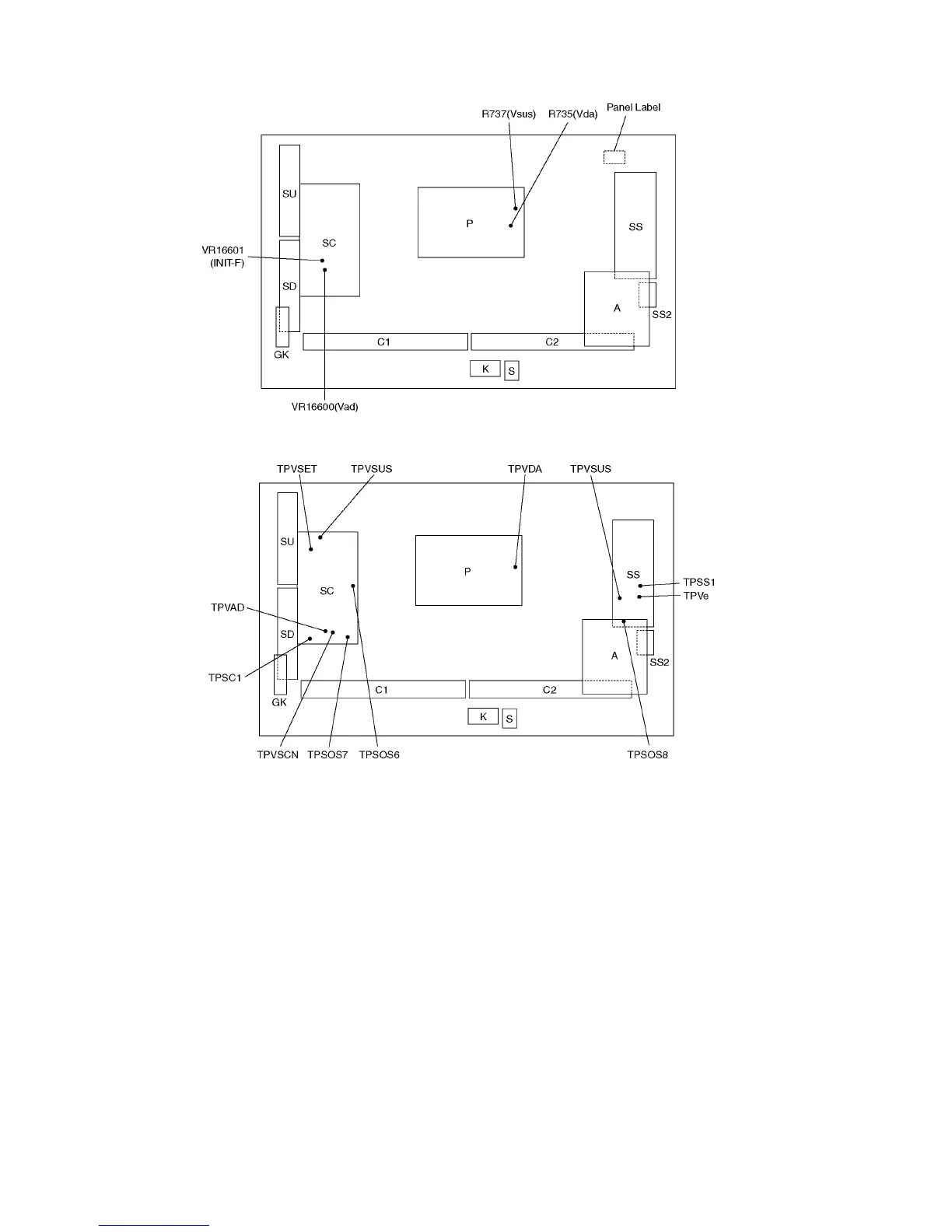
9.1.4. Adjustment Volume Location
9.1.5. Test Point Location

Table of Contents

Related product manuals