EasyManua.ls Logo

Paul FOCUS 200 - FOCUS Circuit Plan

Paul FOCUS 200
55 pages
Print Icon
To Next Page IconTo Next Page
To Next Page IconTo Next Page
To Previous Page IconTo Previous Page
To Previous Page IconTo Previous Page
Loading...
50
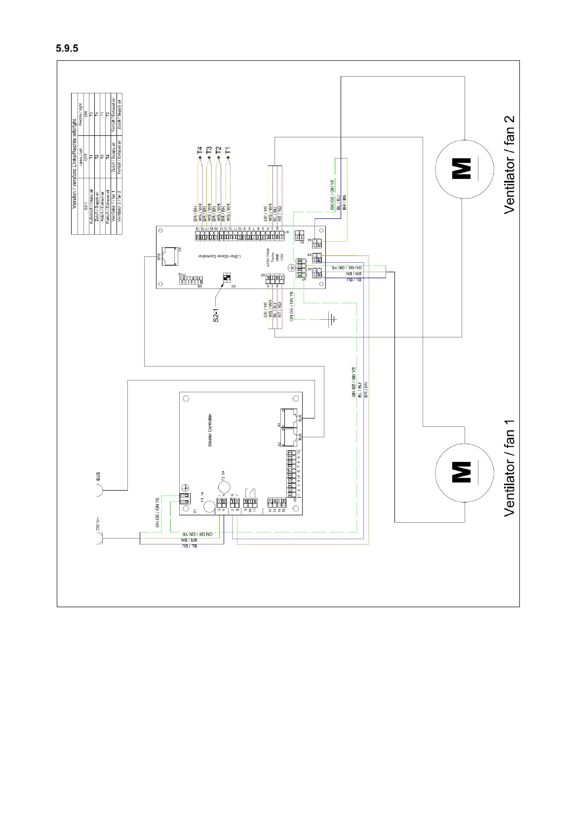
FOCUS circuit plan
Fig. 44: Terminal assignment circuit diagram FOCUS

Table of Contents

Related product manuals