EasyManua.ls Logo

Philips DVDR600VR/37 - Servo Board: Drivers

Philips DVDR600VR/37
204 pages
Print Icon
To Next Page IconTo Next Page
To Next Page IconTo Next Page
To Previous Page IconTo Previous Page
To Previous Page IconTo Previous Page
Loading...
EN 18VAD 8041 7.
Electrical Diagrams and Print-Layouts
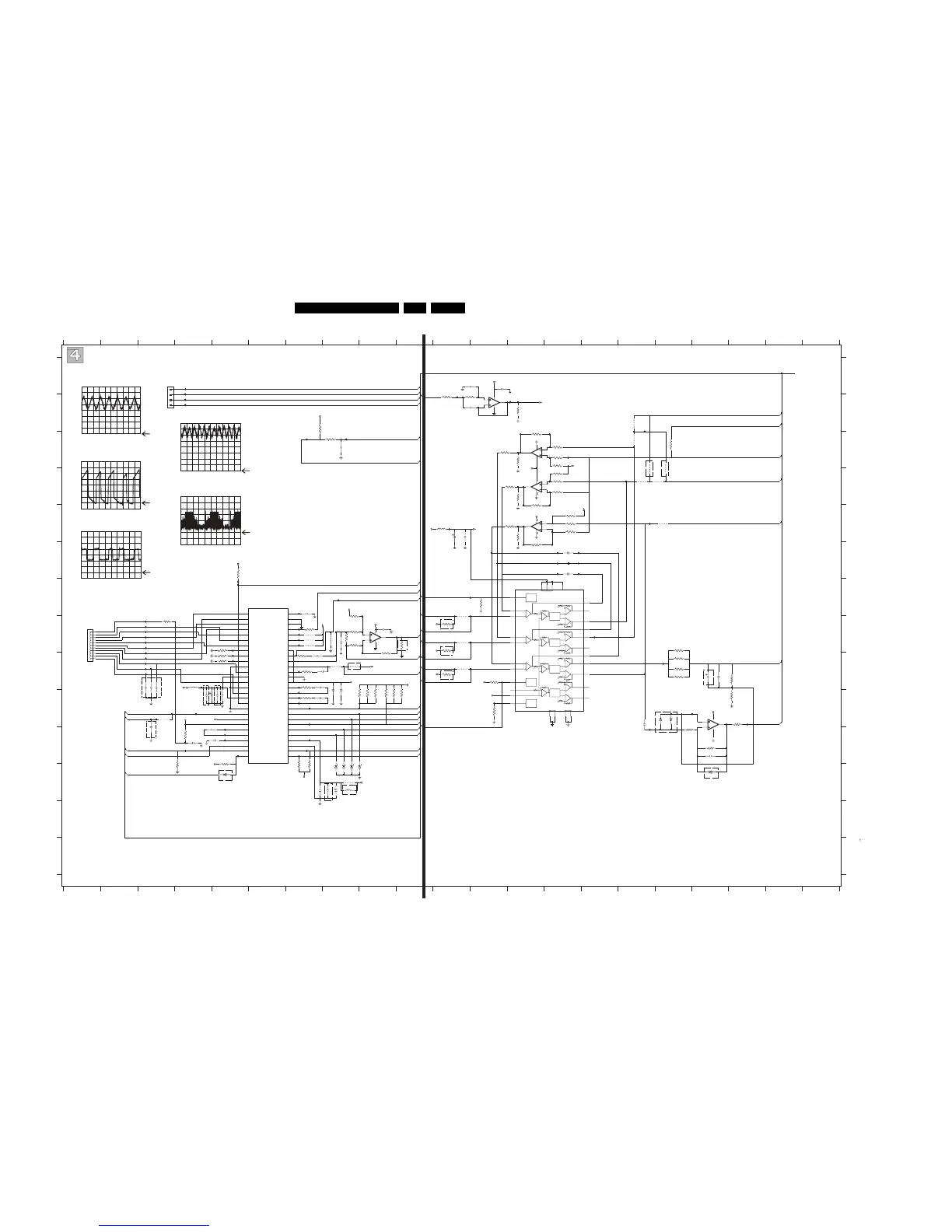
Servo Board: Drivers (Overview)
MTGND
VCC
+
SHIFT
LEVEL
-
+
SHIFT
LEVEL
-
+
-
+
-
+
-
+
SHIFT
LEVEL
-
+
-
+
-
+
-
+
SHIFT
LEVEL
-
+
-
-
+
CH1
MUTE
CH2
STBY
CH1/3/4
STBY
-
+
-
+
-
+
8 9 10 11 12
1%
1
2345
23 67 13
10
18 19
1%
NOTE:
K
OPTIONA: DENOTES COMPONENT(S) WILL BE MOUNTED BEFORE MASS PRODUCTION
OPTIONB: DENOTES COMPONENT(S) WILL BE MOUNTED WHEN NEEDED
1%
15 16 171 19 20 21
A
67
45
F
G
H
J
K
L
M
11 12
20 21
1N4148WS
1N4148WS
V
TW
1%
82n
2409 J7
2411 G7
2412 K4
2413 J8
2414 J5
2415 K5
2416 J4
18
2418 J3
2419 J3
2420 J3
2421 A12
B
C
89
1%
2434 F14
2435 F14
2436 I7
2438 H8
2439 F14
2440 H8
2441 H9
I
2443 J4
2444 K3
2445 J8
2446 L8
N
A
13 14
HALL-
1%
2406 B12
2407 C8
3421 H5
3422 I5
3423 F5
3425 H3
3426 K17
3427 K18
3428 J19
2417 J5
3430 J19
3440 C13
3444 C14
3445 E14
2426 J16
2427 K18
D
E
2432 L7
2433 L8
3456 D13
3457 D14
3458 E13
3459 J8
3460 J9
3461 D13
3462 D14
2442 J5
3464 D13
3465 L4
3471 I17
3472 J9
2447 I18
2448 I18
B
C
TO CENTAURUS/DEBUG-AND-FLASH
U+
1401 H1
2400 I7
2401 A12
2405 I7
3418 K4
3420 I5
3485 J12
3486 H9
3487 J10
3488 H10
3489 H17
3490 I17
3491 I17
3429 I19
3493 L7
3494 L7
3495 I7
3496 I7
3446 C12
3447 C14
2430 E11
2431 E11
1%
3454 D14
3455 C13
4413 C17
4416 I8
4417 I8
4419 H11
4420 H7
4421 H7
4422 I11
3463 E13
4427 G11
5400 I4
5405 E11
5406 L8
3473 G12
3474 H11
3403 B7
3404 B12
1%
1%
W-
3405 B11
3406 C8
3410 F13
3411 K5
3483 H8
3484 H8
7401-2 K18
7402 G6
7403-1 H9
7403-2 E13
7405-1 C13
7405-2 D13
7409 G13
3492 B13
I401 A4
I402 B4
I403 A11
I404 B13
3497 I7
3498 J7
3450 E14
3452 C14
BIAS_VH
WCOIL
3453 E14
4410 D16
4411 D17
I411 K5
I413 F14
I414 F14
I416 K4
I417 G7
I418 H5
I419 I5
4423 H7
I421 I5
I422 K4
I423 H3
I424 G5
6400 L8
6401 L8
3475 J9
3476 J9
3477 H11
3478 I11
3479 I12
3480 G8
3481 H7
3482 H8
6429 L5
7401-1 B12
I429 H3
I430 K5
I431 H3
I400 A4
I433 I3
I434 K5
I435 I3
I436 I3
I405 B12
I406 C8
4400 B16
4402 J3
W+
4403 C16
4404 E17
4406 D16
4407 D17
4408 L8
I409 J4
I410 I7
I447 D14
I448 H7
I449 H7
I450 H7
I451 C14
I452 E11
I455 G12
I420 H3
I457 G11
I458 E13
I459 G12
I460 F14
I425 H3
I426 I7
6402 L8
6403 L8
OPU /CENTAURUS/POWER-CONN-AUDIO/DEBUG CONN
PMEG2010EA
6426 J17
6427 J17
6428 L18
1%
1%
U-
I432 K5
I468 F13
I469 J7
I470 I12
I471 J7
I437 I3
I438 I4
I407 C7
I408 B4
HALL+
Top Contact
I444 C14
I446 D16
VCOIL
UCOIL
I476 E16
I477 F14
I478 F14
I480 F14
I456 I17
I482 J7
I484 J3
I485 I12
I486 G9
I461 E14
I463 K7
I427 H3
I428 H3
PMEG2010EA
1%
V+
I487 H10
I488 H8
I467 H12
I492 J19
I493 J18
I494 K18
I495 K16
I472 G8
I473 H7
I439 J7
I440 I7
Top Contact
I441 B13
I442 B14
I443 B16
16 17
L
M
N
1400 A3
I481 F14
I464 H15
I465 H11
PMEG2010EA
PMEG2010EA
F
G
H
I
I491 I11
1%
1206
I474 H8
I475 J12
V-
14 15
OPTIONB
OPTIONB
OPTIONB
J
1%
180K
I496 J17
I497 K7
I498 K7
D
E
OPTIONB
OPTIONB
OPTIONB
OPTIONB
OPTIONB
OPTIONB
OPTIONB
OPTIONB
OPTIONB
OPTIONB
OPTIONB
OPTIONB
OPTIONB
OPTIONB
10K
3405
12K
3477
I403
I457
I493
I491
3462
39K
3465
10K
4427
I477
I419
I471
I446
I416
I450
2440
100n
4408
I423
I449
100n
2430
20K
3422
I402
I418
I458
16V
2446
2444
22u
4u7
I484
4402
2442
I417
22u
2417
100n
22u
2443
12K
3478
I404
27R
3491
4420
4n7
2421
1R5
3459
3457
39K
I481
3
2
1
8
4
I461
LM358D
7403-1
3446
12K
I432
3485
10K
I427
3418
1R
4
5
6
7
8
9
10K
3423
1401
1
10
11
2
3
I411
180K
3427
I425
I488
I485
2434
120p
1K0
3456
I464
I455
I470
I447
3420
12K
10n
2405
I468
3496
10R
LM358D
5
6
7
8
4
I460
7405-2
I409
I439
I435
I405
7403-2
5
6
7
8
4
I451
LM358D
2419
2n2
2414
10n
3488
1K
3430
39K
100n
2441
100p
3463
12K
4416
2411
2432
100n
2407
100n
10K
3404
12K
3461
I414
10K
3483
3480
10K
I487
2427
2n7
I421
I426
I434
5K6
3428
I413
12K
3474
3484
10K
27R
3490
I448
1K0
3458
I408
6400
2416
5406
10u
100u
I480
I433
3
2
1
8
4
39K
3450
I476
7401-1
LM358D
1K0
3455
I473
4404
3472
1R5
3460
1R5
6427
10R
2n2
2420
3403
10K
3497
3454
12K
3406
1K
2415
4419
I437
22n
2406
10K
3486
1R5
3476
I482
1R5
3487
47K
3421
I459
I469
I430
10u
3492
2431
BAS16
6428
1K0
4403
100n
2438
3495
10R
2435
120p
4417
I422
3447
39K
I428
I420
I431
4423
I436
2412
100n
I401
I495
I443
I497
3444
39K
I442
I444
I438
I441
10K
3473
4406
10u
5400
3482
4400
1R
3481
1R
I440
2436
10n
10n
2409
4421
4411
I406
I467
12K
4407
3452
I424
150R
3425
12K
3410
6403
1R5
I400
3475
I407
3440
12K
6429
BAS16
3464
12K
I456
1u0
2448
3445
12K
100n
2401
3479
10K
100u
2447
I452
I478
16
I429
I410
2418
4410
2n2
27R
3471
6426
10K
3493
I474
5405
10K
4413
220R
18
VO4+ 15
VO4- 16
3494
7
9
10
19
VO1+ 14
VO1- 13
VO2+ 12
VO2- 11
17VO3+
VO3-23
27 OPIN4+
OPIN4-26
OPOUT1 4
OPOUT3 22
OPOUT4 25
PREVCC
28
STBY120
STBY2
21
IN25
29
30
MUTE6
OPIN1+2
OPIN1-3
OPIN3+24
OPIN3-
BA5995FM
7409
BIASIN1
8
7405-1
3
2
1
8
4
39K
LM358D
120p
3453
I475
2439
VDDLD
32
VDDSLD
13
VDDSPN1
17
VDDSPN2
16
W
I472
OUTTRK-
21
REF
REMF
9
10
RLIM
8
RREF
28
TEMP
12
U
14
V
43
VDDACT
22
VDDANA
49
OUTFCS+
45
OUTFCS-
48
OUTLD+
47
OUTLD-
37
OUTSLD1+
36
OUTSLD1-
34
OUTSLD2+
33
OUTSLD2-
40
OUTTLT+
39
OUTTLT-
42
OUTTRK+
41
HW-
54
IC1
IC2
55
52
INFCS
53
INLD
29
INSLD1
30
INSLD2
20
INSPN
50
INTLT
51
INTRK
46
31
GNDANA
19
GNDDIG
GNDSPN1
11
15
GNDSPN2
7
HBIAS
1
HU+
2
HU-
3
HV+
4
HV-
5
HW+
6
7402
25
CAPY
COSC
56
23
CP1
24
CP2
26
CTL1
27
CTL2
38
CURSLD1
35
CURSLD2
18
FG
44
GNDACT
2413
sa56202
10u
22u
2433
3429
27R
I463
3426
3489
I496
5K6
I494
I492
3498
10R
6402
6401
2400
10n
7
8
4
I486
LM358D
7401-2
5
6
2426
I465
I498
1u0
SFW..R
1400
1
2
3
4
47K
3411
100n
2445
OUTSLD2-
OUTSLD2+
OUTSLD1-
OUTSLD1+
TEMP_WARNING
MOTOR-ON
SERVO-COMM
4422
SL+
DRIVER-ON
MOTO1
VMOTO1O
+12V
FOC-
FOC+
RAD
SERVO-MEAS
D3V3
S1V65
STEP-SIN
OUTSLD1-
OUTSLD2+
TOSTOCEN
VFOO-
ACT_EMF
SL-
+12Va
AUXP W
RA
OUTSLD2-
FO-
T1
TRAY-SW
TRAYSW
FO+
TR-
TR+
+5V
STEP-COS
RAD_MUTE
VFOO+
VRAOO
+12V
S1V65
S1V65
+5V
D3V3
+12V
S1V65
S1V65
+5V
TRAY-INOUT
S1V65
+12V
SERVO-COMM
+5V
+12Va
S1V65
SERVO-COMM
+5V
S1V65
+12Va
S1V65
+12Va
DRIVER-ON
S1V65
{AUXPW,SERVO-COMM,SERVO-MEAS,TR+,TR-,FO+,FO-,SL,RA,DRIVER-ON,FOC-,FOC+,RAD,TRAY-SW,TRAY-INOUT,VFOO-,VFOO+,VRAOO,SL-,SL+,STEP-SIN,STEP-COS,OUTSLD1+,OUTSLD1-,OUTSLD2+,OUTSLD2-,TOSTOCEN,TRAYSW,MOTOR-ON,T1,VMOTO1O,MOTO1,RAD_MUTE,ACT_EMF,TEMP_WARNING}
+5V
S1V65
OUTSLD1+
18.3V
1.65V
1.65V
1.2V
1.2V
1.64V
1.65V
1.65V
1.65V
2.6V
1.65V
2.6V
2.7V
2.7V
1.65V
1.65V
2.7V
2.7V
3.3V
1.65V
1.65V
1.65V
1.65V
1.65V
1.65V
0V
6V
6V
1.6V
5.8V
1.7V
6.3V
1.7V
1V
1V
1V
TR 22009_001
300604
100903
Part 1
Part 2
A: DC, 500mV/Div, 50ns/Div
I417
A: DC, 2 V/Div, 2us/Div
I430
A: DC, 5 V/Div, 2us/Div
I432
A: DC, 200mV/Div, 5ms/Div
U, V, W
A: DC, 5 V/Div, 1ms/Div
U,V,W coil

Table of Contents

Related product manuals