EasyManua.ls Logo

Philips DVDR600VR/37 - Sub System Control Block Diagram

Philips DVDR600VR/37
204 pages
Print Icon
To Next Page IconTo Next Page
To Next Page IconTo Next Page
To Previous Page IconTo Previous Page
To Previous Page IconTo Previous Page
Loading...
1-11-2
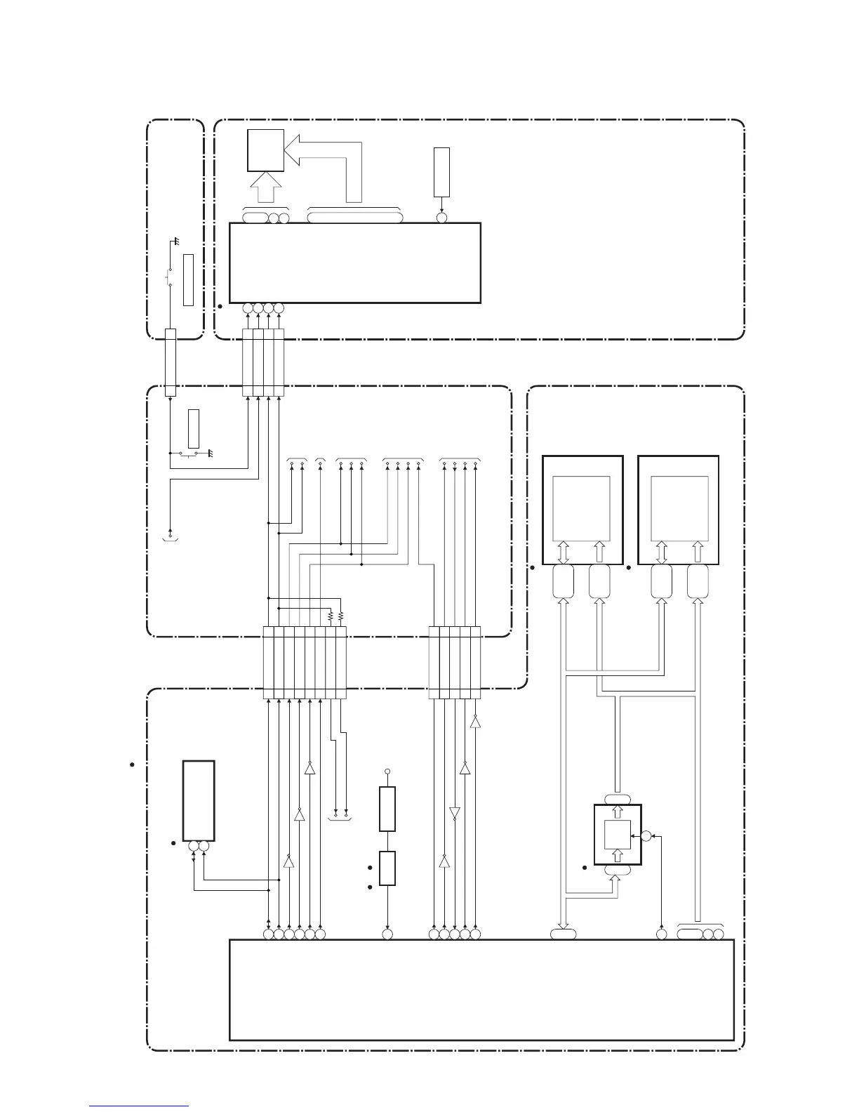
Sub System Control Block Diagram
E9480BLSUB
FRONT CBACPU CBA
MAIN CBA
1G
S1
S8
S9
S10
S11
S12
S13
S14
S27
7G
8G
9G
~
50
44
~
2
9
~
44
51
~
53
61
~
~
19
12
~
63
56
53
55
54
52
51
64
77
~~
~~
SDA
SCL
OPEN/CLOSE
SDA
SCL
AV-TV-SEL
IDN
REMOTE-DVD
AV-VCR-REC-SEL
AV-DVD-REC-SEL
AV-TV-SEL
AV-VCR-REC-SEL
AV-DVD-REC-SEL
KILL
CS
SDAI
SDAO
SCLK
TO VIDEO
INPUT/OUTPUT
SELECT BLOCK
DIAGRAM
TO POWER SUPPLY
BLOCK DIAGRAM
TO SERVO/SYSTEM
CONTROL BLOCK
DIAGRAM
REMOTE-DVD
GRID FIP
SEGMENT
FIP801
IC801
(FIP DRIVER)
IC07
(EEPROM)
IC02
(SUB MICRO CONTROLLER)
IC05
IC09, Q06
(LATCH)
LATCH
CN214 CN801
CN206 CN951
SCL 113
SDA 104
REMOTE-DVD
131
OPEN/CLOSE
122
AV-DVD-REC-SEL
320
SCL2 716
SDA2 918
IDN 185
AV-VCR-REC-SEL
419
AV-TV-SEL 518
CN04 CN216
Q21
Q23
Q19
SCL2
SDA2
Q26
Q27
Q25
Q24
SCL 1112
SDA
SCL
SDA
SDA
SCL
AV-TV-SEL
AV-VCR-REC-SEL
AV-DVD-REC-SEL
KILL
RESET
CS
SDAI
SDAO
SCLK
ADDRESS/DATA 0
ADDRESS/DATA 7
~
ADDRESS 8
A8-A19
A0-A7
A0-A16
A0-A19
AD0-AD7 AD0-AD7
AD0-AD7
ADDRESS 17
ADDRESS 18
ADDRESS 19
ALE
1310
42
41
KEY-IN
KEY SWITCH
37
OPEN/CLOSE
SW952
DUBBING
SW203
15
OPEN/CLOSE
FUNCTION CBA
36
20
24
23
84
85
88
77
90
SCLK 99
SDAO 55
SDAI 77
CN03 CN215
CS 1111
KILL 11
15
80
19
18
8
TO VIDEO
INPUT/OUTPUT
SELECT BLOCK
DIAGRAM
TO SERVO/
SYSTEM CONTROL
BLOCK DIAGRAM
TO AUDIO
INPUT/OUTPUT
SELECT BLOCK
DIAGRAM
TO AUDIO
INPUT/OUTPUT
SELECT BLOCK
DIAGRAM
5
6
IDN 68
IC03
(1Mbit SRAM)
SRAM
MEMORY
IC06
(8Mbit FLASH MEMORY)
11
43
65
66
13-15,
17-21
2-12,23,
25-28,31
1-8,16-25,
45,48
29,31,33,35,
38,40,42,44
Q02
STBY+5V
+3.3V REG.
30
RESET
" " = SMD

Table of Contents

Related product manuals