EasyManua.ls Logo

Philips DVDR600VR/37 - Page 174

Philips DVDR600VR/37
204 pages
Print Icon
To Next Page IconTo Next Page
To Next Page IconTo Next Page
To Previous Page IconTo Previous Page
To Previous Page IconTo Previous Page
Loading...
Electrical Diagrams and Print-Layouts
EN 23VAD 8041 7.
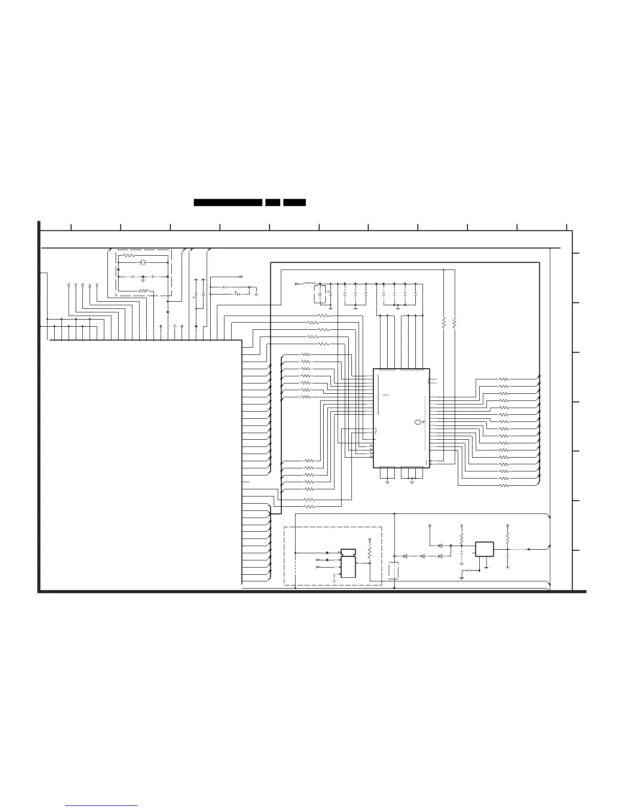
Servo Board: Centaurus Part 2
VCC3
MR
RST
VCC5
GND
NC
RESET
11
1
0
13
12
9
8
9
10
VSS
VDDQ
1M-1
DQM
VDD
VSSQ
0
A
BA
1
6
H
0
WE
L
NC
CAS
RAS
7
5
4
3
2
15
14
11
10
CS
CKE
CLK
D
0
1
2
3
4
5
6
7
8
17 18 19
4K7
16 2111 12 13 14 15 20
SDRAM
A
B
C
D
E
F
G
PREPARED FOR 256MBit (MAX)
POWER-CONN-AUDIO/DEBUG AND FLASH/DRIVERS/CHEETAH_QD
PST3642NR
330n
OPTIONB
OPTIONB
OPTIONB
OPTIONB
150R
1M
3534
3592
150R
3587-2
150R
3584-4
150R
3585-1
16M93
1500
CX-16F
100n
2570
I524
100n
PMLL414BL
6500
6503
BAS16 BAS16
6502
3108
1K
2569
100n
3589-3
150R
2565
100n
3562-4
150R
I509
3585-2
150R
150R
3584-1
33R
3581
3561
6501
BAS16
2538
10u
2585
4503
3591
150R
150R
3588-2
3583-4
150R
2
3
1
4
5
7502
MAX6352SVUK-T
3588-1
150R
100n
2586
I511
4504
150R
3587-4
150R
3562-2
5
CD GND
3
INP
2
4
OUTP
1
I523
7506
150R
3583-3
150R
3585-4
52
16
3562-3
150R
3
9
43
49
28
41
54
6
12
46
13
42
44
39
15
36
40
18
1
14
27
47
48
50
51
53
5
7
8
10
11
33
34
20
21
17
37
38
19
2
4
45
23
24
22
35
25
26
29
30
31
32
MT48LC4M16A2TG-7E
7504
Φ
DRAM
1M X 16 X 4
2584
100n
2568
100n
3583-2
150R
3593
150R
2563
15p
I502
2581
100n
3588-4
150R
150R
3562-1
3580
4K7
3594
150R3595
150R
100n
2566
150R
3598
2533
10u
3589-4
150R
3588-3
150R
I501
I500
L502
2571
100n
150R
3587-1
3597
150R
150R
3589-2
150R
3589-1
3587-3
150R
150R
3585-3
3584-2
150R
I541
L501
I510
3596
150R
15p
2564
22u
2513
2567
5504
100n
XDD9
F16
XRAS
H14
XWR
H15
XDD15
D17
XDD2
J16
XDD3
K17
XDD4
K16
XDD5
L17
XDD6
H17
XDD7
G16
XDD8
C17
XDA9
B15
XDD0
H16
XDD1
J17
XDD10
F17
XDD11
E16
XDD12
E17
XDD13
D16
XDD14
C16
XDA14_BS2
F14
D14
XDA2
XDA3
D15
XDA4
A13
XDA5
B13
XDA6
A14
XDA7
B14
XDA8
A15
J15
G14
XCASL_SDCS
XDA0
E14
XDA1
E15
XDA10
F15
XDA11
A16
XDA12_BS0
B17
XDA13_BS1
G15
XCASH_SDCAS
VSS3P2
F5
VSS3P3
P8
VSS3P4
P9
VSS3P1
N6
VDD3P5
VDD3P1
N5
VDD3P2
E4
VDD3P3
N8
VDD3P4
N9
N12
TCK
A4
TDI
A1
TDO
A2
TMS
A3
TRST
A5
SDCK
G17
OSC_IN
P4
OSC_OUT
P3
POR_NEG
P6
HRESET
A12
DATA_MASK
C15
DAC_HP_L
F2
DAC_HP_R
E3
DAC_LO_L
F3
DAC_LO_R
E2
DAC_VNEG
F4
DAC_VPOS
E1
DAC_VREF
F1
150R
3599
150R
3583-1
4520
3584-3
150R
22u
2580
100n
2534
D3V3
+12V
+5V
HRESET
PORN
PORN
MRN
XDD(8)
XDD(9)
JTAG_TRST_CENT
XDA(0)
XDA(1)
XDA(10)
XDA(11)
XDA(2)
XDA(3)
XDA(4)
XDA(5)
XDA(6)
XDA(7)
XDA(8)
XDA(9)
XDD(0)
XDD(1)
XDD(10)
XDD(11)
XDD(12)
XDD(13)
XDD(14)
XDD(15)
XDD(2)
XDD(3)
XDD(4)
XDD(5)
XDD(6)
XDD(7)
OSC_IN
PORN
JTAG_TCK
JTAG_TDI_CENT
JTAG_TDO_CENT
JTAG_TMS
AUDIOL
AUDIOR
A3V3
XDD(9)
XDD(8)
XDD(7)
XDD(6)
XDD(5)
XDD(4)
XDD(3)
XDD(2)
XDD(1)
XDD(0)
XDD(15)
XDD(14)
XDD(13)
XDD(12)
XDD(11)
XDD(10)
D1V8
D3V3
D3V3
D3V3
XDA(0)
XDA(1)
XDA(10)
XDA(11)
XDA(2)
XDA(3)
XDA(4)
XDA(5)
XDA(6)
XDA(7)
XDA(8)
XDA(9)
Part 2
TR 22010b_001
060704
RFP3,RFN3,T1,MOTO1,AUDIOL,AUDIOR,HRESET,HDASPN,CS1,CS0,HA2,HA0,HA1,HPDIAGN,HIRQ,HDACKN,IORDY,HRDN,HRWN,HDRQ,SDA,SCL,SILD,SICL,SIDA,RX2,TX2,TX1,RX1_MASTER,DRIVER-ON,MOTOR-ON,IRQN,TRAY-SW,TRAY-INOUT,VRIN,IEC958,EFM_RWN,RAD_MUTE,ACT_EMF,TEMP_SENSE}

Table of Contents

Related product manuals