EasyManua.ls Logo

Philips L01.1E - Schematics and PWBs; Large Signal Panel: Audio; Video Source Switching; Diversity Table A10

Philips L01.1E
72 pages
Print Icon
To Next Page IconTo Next Page
To Next Page IconTo Next Page
To Previous Page IconTo Previous Page
To Previous Page IconTo Previous Page
Loading...
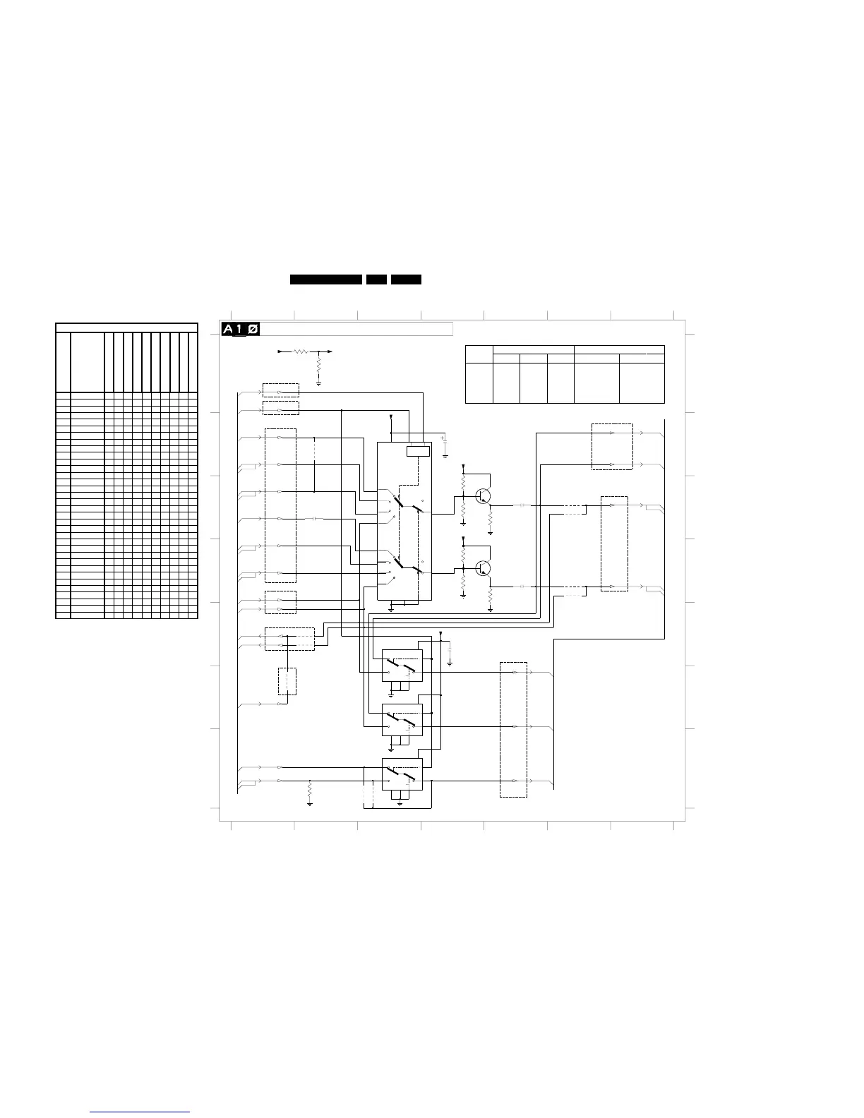
32L01.1E 7.
Schematics and PWBs
Large Signal Panel: Audio / Video Source Switching
L
H
L
H
LOGIC
LSBMSB
LL
LH
HL
HH
LL
LH
HL
HH
AUDIO/VIDEO SOURCE SWITCHING
Only Europe
(Scart2 Out)
From Micronas
Stereo Scart1 Out (RF Mode always)
Monitor Out/AV Out
Mono Scart1 out
(RF Mode always)
To Micronas/BTSC/UOC
From MicroP
From Micronas
From Front/Rear I/O
Output
Scart1 Scart2 Monitor SC2_CTRLSEL-MAIN-FRNT-RR
HEF Logic
Front In
Scart 1 in
Scart 2 in
R.F In
RF Mode
RF Mode
RF Mode
RF Mode
RF Mode
RF Mode
RF Mode
1
1
0
0
1
1
00
Scart1 Mode
Front Mode Front Mode
Scart1 Mode
Scart2 Mode
MSB LSB
EU
A9-50
A7-12
A12-31
A13-32
A13-52
A12-53
A13-54
A13-55
A9-51
A14-56
A14-57
A5-42
A12-58
A13-59
A9-49
A14-62
A14-63
A5-37
A9-48
A9-47
A13-60
A13-61
*
A14-32
A14-52
A14-54
A14-55
A14-59
A14-60
A14-61
*
*
*
*
*
*
5V8
8V
0V
0V
0V
2V4
1V8
0V
0V
2V4
1V7
2V4
2V4
5V8
3V8
1V6
5V
1V6
5V8
3V8
1V6
5V
1V6
5V8
0V
0V
5V
0V
1V8
6V
2V5
1V8
6V
2V3
3806
100K
3803
100K
2801 B4
2802 E4
2803 C2
2804 C5
2805 D5
1234567
1234567
A
B
C
D
E
F
G
A
B
C
D
E
F
G
1K
3802
3801 A2
3802 A2
3803 C4
4802
3804 C4
3805 C5
3806 D4
3807 D4
3808 D5
3809 G2
4801 C6
4802 C6
4803 D6
4804 D6
4805 E2
4806 F1
4807 G3
4808 G3
4809 B2
7801 B3
7802-A E3
7802-B F3
7802-C G3
7803 C5
7804 D5
9801 E2
3809
150R
4809
1K
3805
1K
3808
BC847B
7803
BC847B
7804
150K
3804
150K
3807
3801
220R
4804
4808
4807
Y0
3
Y1
4
Z
7802-C
HEF4053BT
6
E
9
S
16
Vdd
7
Vee
8
Vss
5
2802
220n
4806
9801
4805
4803
4801
2804
220n
22u
2801
220n
2805
7
Vee
8
Vss
12
Y0
13
Y1
14
Z
15
Z
7802-A
HEF4053BT
6
E
11
S
16
Vdd
7802-B
HEF4053BT
6
E
10
S
16
Vdd
7
Vee
8
Vss
2
Y0
1
Y1
7
VEE
8
VSS
1
10
11
12
13
14
15
2
3
4
5
6
916
VDD
7801
HEF4052BT
+8V
+6V8
+6V8
+6V8
100n
2803
R1-IN
L2-IN
L1-IN
R2-IN
RFRONT-IN
LFRONT-IN
SC1_ROUT
SC1_LOUT
SEL-MAIN-FRNT-RR
+6V8
L-OUT
SC1_LIN
R-OUT
SC1_RIN
+6V8
SC2_CTRL
R2-OUT
L2-OUT
L1-OUT
R1-OUT
QSS_AM_DEM_OUT
CVBSFRONT-IN
SY_CVBS-INY_CVBS-IN
CL16532020_096.eps
050601
Item Description
21"
25"
28" Blackline
29" Super flat
28" Wide screen, FM radio
29" Real flat
32" Wide screen, FM radio
24" Wide screen
28" Wide screen, No FM radio
32" Wide screen, No FM radio
2801 22U 50V XXXX
2806 10V 2U2
2861 25V 220N
2862 10V 2U2
2864 50V 2U2
2865 50V 2U2
2866 10V 2U2
2867 50V 3N3
2868 50V 150P
2869 50V 47N
2870 50V 47N
2871 50V 150P
2872 50V 3N3
2873 10V 2U2
2874 25V 100U
2875 25V 100U
2876 50V 4U7
2877 50V 10U
2878 50V 1U
2879 50V 4N7
2880 50V 22N
2883 16V 470U
2884 50V 2U2
2885 50V 220N
2886 25V 220N
2892 Jumper
2893 Jumper
4801 Jumper X X X X X X
4802 Jumper
4803 Jumper X X X X X X
4804 Jumper
4807 Jumper
4808 Jumper
4809 Jumpe
r
Diversit
y
Table A10

Table of Contents

Related product manuals