EasyManua.ls Logo

Philips L01.1E - Schematics and PWBs; SCAVEM Panel; Diversity Table B2

Philips L01.1E
72 pages
Print Icon
To Next Page IconTo Next Page
To Next Page IconTo Next Page
To Previous Page IconTo Previous Page
To Previous Page IconTo Previous Page
Loading...
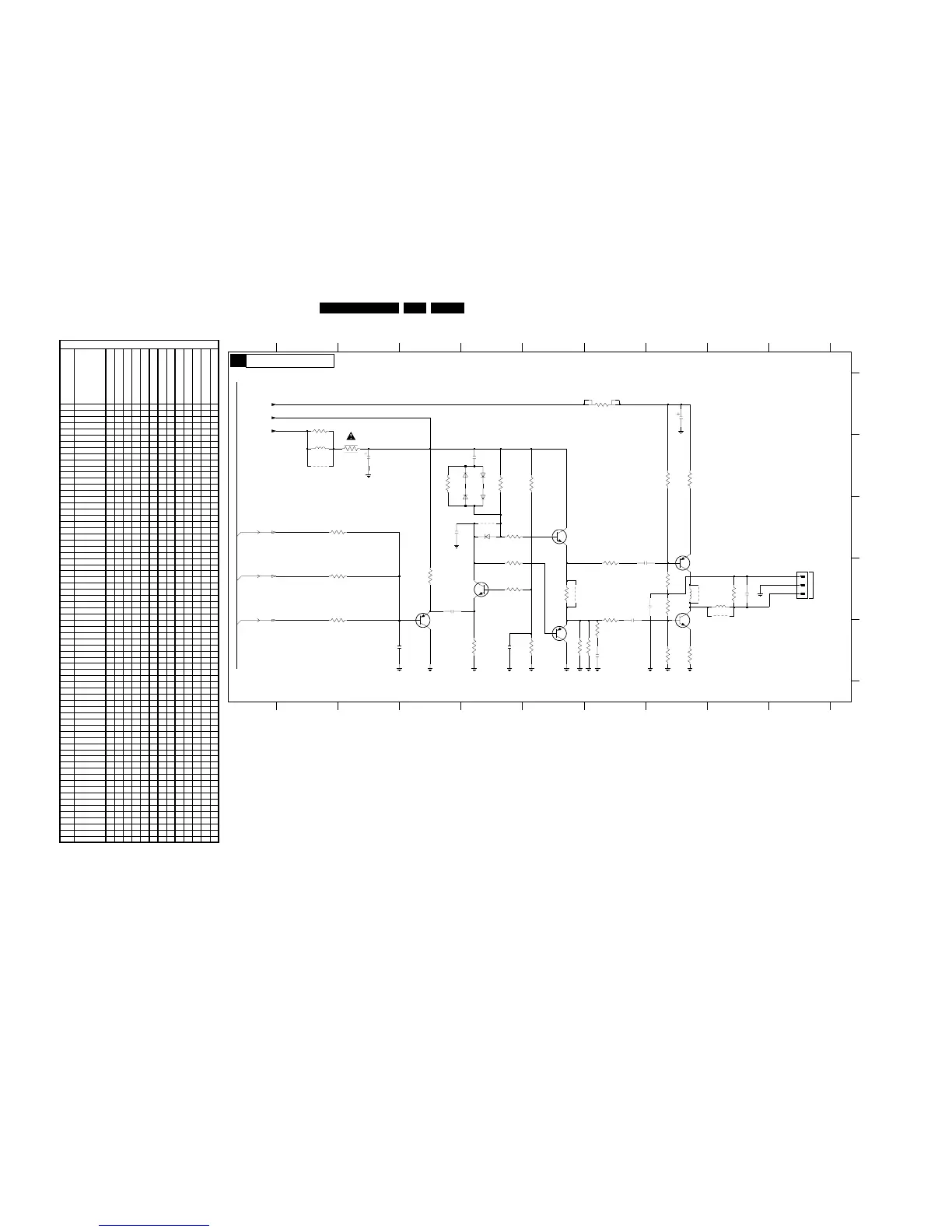
Schematics and PWB’s
43L01.1E 7.
SCAVEM Panel
TO
SCAVEM COIL
7V3
1V8
1V1
14V
7V6
7V9
7V6
92V4
0V6
0V
48V8
93V7
8K2
4n7
BD140
BD139
3R33R3
0R
B1-67
B1-68
B1-69
*
*
*
**
*
*
3385 E8
3386 D3
3387 D4
3388 E6
3389 E7
3390 D7
3391 D7
3392 E7
3393 B4
5360 B2
5361 D8
5362 D9
6360 C5
6361 B5
6362 C5
6364 B5
6365 C5
7360 C6
7362 C8
7363 D5
7365 D8
7366 E6
7367 D4
9361 B2
9363 D8
9364 D9
9365 C5
9366 D6
0278 D10
2360 A8
2361 B3
2365 D8
2366 D7
2367 D4
2368 D7
2372 C4
2373 E3
2374 E5
2375 D9
2376 E7
2377 B5
3360 A7
3361 A2
3362 B3
3363 B8
3364 B8
3368 B5
3369 B6
3370 C5
3371 C3
3373 D5
3374 D8
3375 D9
3376 D5
3377 D6
3378 D8
3379 D3
3382 E6
3383 E5
3384 E8
12345678910
12345678910
A
B
C
D
E
100n
2376
4K7
3393
220R
3392
6365
BAS216
6364
BAS216
6362
BAS216
100n
2377
6361
BAS216
3373
33R
3391
2375
150p
3390
33R
2374
1n
2373
1n
220R3388
220R3389
9366
5p6
2372
470R
3387
9365
BC557B
7367
470R
3375
150p
2367
2K2
3386
3379
2K2
3360
3361
680R
9361
9363
9364
3364
3385
5362
5361
7366
BF423
2K2
3371
6360
1N4148
3376
7362
BC548B
7365
2360
22u
7360
2361
5360
5u6
1
2
3
100u
0278
2366
4n7
2368
100n
3384
820R
3374
56K
3378
56K
3363
820R
2365
7363
BC548B
3382
1K5
3377
10R
3369
3383
220R
330R
3370
10K
10R
3362
1K2
3368
+13V
G
B
+200V
+13Va
R
CL 16532020_089.eps
050601
Item Description
21" Real flat
25" Real flat
29" Super flat
28" Blackline, FM radio
32" Wide screen, No FM radio
29" Real flat
28" Wide screen, FM radio
32" Wide screen, FM radio
21" Blackline
24" Wide screen
25" Blackline
28" Blackline, No FM radio
28" Wide screen, No FM radio
2365 22N 250V XXXXXXXX
2366 100N 100V XXXXXXXX
2367 47P 50V X X X
2367 56P 50V X X
2367 150P 50V X
2367 180P 50V X X
2368 22N 50v XXXXXXXX
2372 5P6 50V XXXXX
2373 56P 50V X X
2375 100P 50V XXXXX
2375 330P 50V X X
2376 100N 25V X X X
2377 100N 25V X X X
3360 8K2 5W XXXXXXXX
3361 680R
3362 Fuse 10R XXXXXXXX
3363 820R XXXXXXXX
3364 1R8 X X X
3364 3R3 XXXXX
3368 2K7 XXXXXXXX
3369 10K XXXXXXXX
3370 220R X X X
3370 330R XXXXX
3371 10K XXXXX
3371 4K7 X X X
3373 220R X X X
3374 56K XXXXXXXX
3375 150R X X
3375 220R X
3375 470R XXXXX
3376 Jumper XXXXXXXX
3377 10R X
3377 4R7 X X
3378 56K XXXXXXXX
3379 10K XXXXX
3379 4K7 X X X
3382 1K5 XXXXXXXX
3383 470R XXXXXXXX
3384 820R XXXXXXXX
3385 1R8 X X X
3385 3R3 XXXXX
3386 10K XXXXX
3386 4K7 X X X
3387 470R XXXXXXXX
3388 220R XXXXX
3389 220R XXXXX
3390 10R X X
3390 33R XXXXXX
3391 10R X X
3391 33R XXXXXX
3392 220R X X X
3393 4K7 X X X
5360 5.6uH 10% XXXXXXXX
5361 COIL
5362 COIL
6360 1N4148 X X X
6361 BAS316 X X X
6362 BAS316 X X X
6364 BAS316 X X X
6365 BAS316 X X X
7360 BC547B XXXXXXXX
7362 2SA1358 XXXXXXXX
7363 BC547B XXXXXXXX
7365 2SC3421 XXXXXXXX
7366 BF423 X X X
7367 BC557B XXXXXXXX
9361 Wire
9363 Wire XXXXXXXX
9364 Wire XXXXXXXX
9365 Wire XXXXX
9366 Wire XXXXX
Diversit
y
Table B2
SCAVEM PANEL
B2

Table of Contents

Related product manuals