EasyManua.ls Logo

Philips L9.2EAA - A2 LINE DEFLECTION

Philips L9.2EAA
58 pages
Print Icon
To Next Page IconTo Next Page
To Next Page IconTo Next Page
To Previous Page IconTo Previous Page
To Previous Page IconTo Previous Page
Loading...
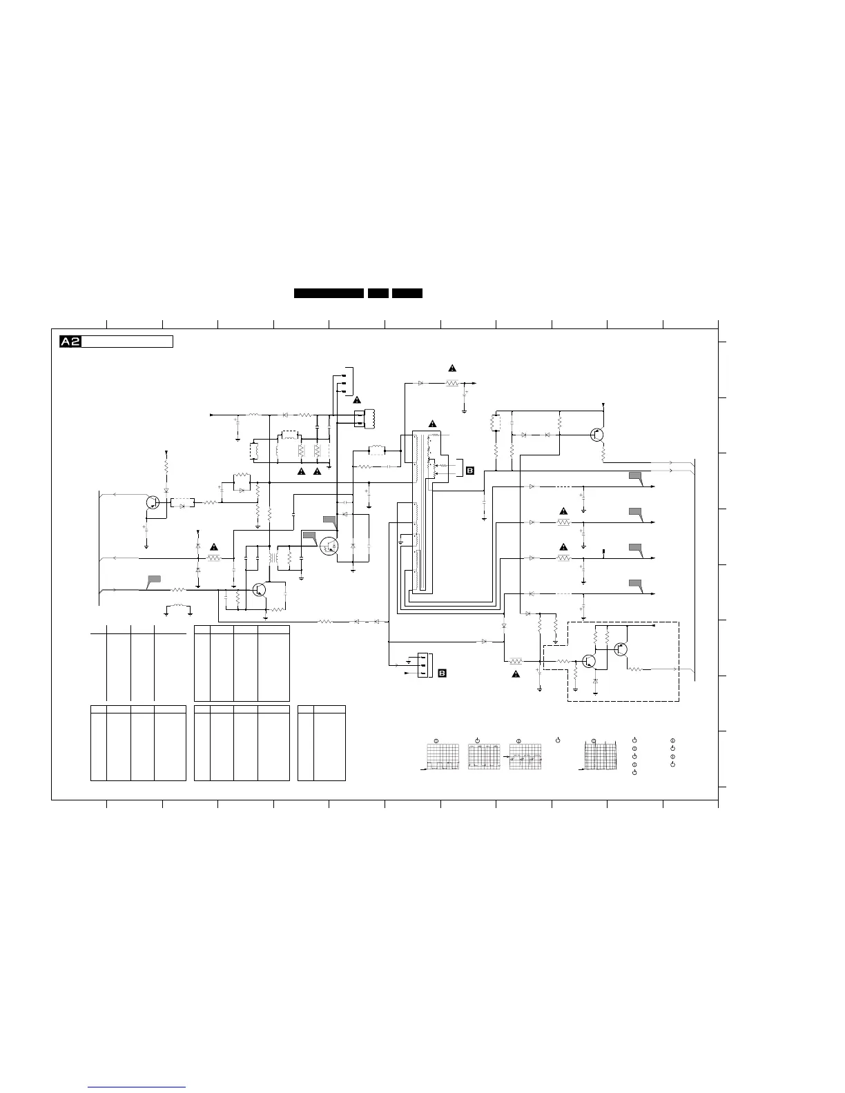
Schematics and PWB’s
GB 24L9.2E 7.
VFOC
VG2
EHT
FILEMENT
NA NA
NA NA5406
6434
9408
9424
5408 27uH 27uH 27uH
3411 1R
Yes Yes NA
5408 15uH 15uH 22uH
3411 1R1R 1R
3414 1K8 Jumper Jumper
3415 12K 10K 10K
9402 NA NANA
2411 1uF 1uF 1uF
2434 NA NA NA
2407
20" 21"BRAZIL
2407 8.2nF 10nF 11nF
2416
5404
9425
5401
680pF 560pF 330pF
NA NA NA
56uH 27uH 56uH
NA
56 uH
Linearity Drum
Jumper Jumper Jumper
NA
NA
NA
NA
NA
NA
NA
NA
NA
Ye s
Yes Yes NA
5408 15uH
1R 2R2
3414 2K7 1K8 2K2
3415 12K 10K 10K
9402
15K 10K
NA
2411 100uF 100uF 100uF
2434 NA NA NA
14"
NA NA NA
14" 20" 21"AP
2407 9.1nF
5406
6434
9408
9424
9425
5401
680pF 680pF 330pF
NA NA
680pF 330pF
56uH NA
NA NA Linearity Drum
Jumper Jumper Jumper
NA
NA
Jumper Jumper
NA
NA
NA
NA
NA
Ye s
Ye s
15uH 22uH
3411 1R 1R 2R2
3414 1K 1K8 2K2
3415
1K 1K8
10K
9402 NA NA NA
2411 100uF 100uF 100uF
2434
100uF 100uF 100uF
2434 NA NA NA
21"CHINA
11nF 10nF
2416
5404
5406
6434
9408
9424
9425
5401
680pF
56uH NA
NA 100uH NA
56 uH NA NA
NA NA Linearity Drum
Jumper
2K2
3415 10K
9402 NA
2411 100uF
2434 NA
NA NA
5408 15uH 15uH 22uH
3411 1R 1R 2R2
3414
9402 NA NA NA
2411
56uH
NA
NA
5401
9425
9424
9408
6434
5406
2407 11nF
2416
5404
USAEurope
21"20"14"
2407 9.1nF 11nF 11nF
2416 NA
NA 100uH NA
2404 B5
2405 D5
2406 E4
2407 D6
2408 C7
2409 C6
2410 C10
2411 F9
2412 C8
2413 A8
2414 D10
2415 E10
2416 D5
2417 E10
2418 B9
2420 B5
2431 C3
2432 D2
2434 C6
2551 B4
3400 D4
3402 D5
3403 E5
3404 D3
3405 B5
3406 B5
TO CRT
2K2
3415 15K 10K 10K
NA
NA
NA
NA
56uH
NA NA Linearity Drum
Jumper Jumper Jumper
27R
12K
560n
Ye s
NA
A
B
220R
1400 D10
2400 D4
2401 D4
2402 E4
2403 E5
HEW_Protn
13V
123456789101112
123456789101112
21"20"14"
NANAYe s
For USA only
88V
0V4
BCL_Protn
0221C A6
5404
5406
6434
9408
9424
9425
5401
NA 560pF
A7-8
A7-20
C
D
E
F
G
H
0220 F7
0221 B6
0221A A6
0221B A6
5V7
13V
PANEL
8V7
6V1
LINE DEFLECTION
3434 C3
3435 C3
9425 B4
6409 A7
6410 D9
6412 D9
6413 B9
6414 B9
6415 E9
6418 E6
6419 E6
6431 C4
6432 C3
6433 B5
6434 C6
6435 C3
7400 E4
7401 B10
7402 D5
7403 F10
7404 F11
7431 C2
9402 B5
9403 C10
9404 E10
9408 C6
9424 B5
56u
2V4
10V
9V5
31V
6401 E3
6402 C9
6403 F9
6404 D6
6405 E9
47K
FOR
ITV fish hook
A6-62
A4-62
3441 F10
3440 F9
3436 E5
3407 B5
3411 D10
3412 F9
3414 B8
3415 B8
3416 A8
3417 D10
3418 F10
3419 F10
3420 E4
3421 E3
3423 B9
3424 B10
3425 C10
3426 F10
3427 F10
3428 F11
3431 C4
3432 D4
3433 C4
2R2
3414
MainSupply95V
4n7
22u
COIL
A6-63
A3-63
CRT PANEL
150K
TO 0224 OF
DEFLECTION
6406 F8
HORIZONTAL
FISH HOOKS
TO PICTURE TUBE
A4-81
A7-32
A4-32
-0V2
6408 G10
BRAZIL ONLY
3474 C6
4401 B9
4435 C3
5401 B4
5404 B5
5406 B5
5408 B6
5410 E3
5444 D4
5445 B7
5551 B4
6400 D3
5K6
3403
8.2nF 10nF 9.1nF
2416
5404
Linearity Drum
Jumper
NA
NA
NA
5408 22uH
3411
BC857B
7404
3432
82K
L1
100u
9402
2K2
3436
2432
5444
U10
2413
3418
4K7
3400
1N4148
6419
10K
3423
2406
3414
L2
4435
6K8
3424
2K2
1N4148
6401
BYD33D
3425
100R
3402
6409
5404
9404
7401
BC857B
1n5
2403
2417
470u
L5
L6
L7
6404
BYD33M
3417
BZX79-F6V2
6408
0221A
1R
3415
2409
47u
15K
2411
1u
0220
1
2
3
1400
3474
22R
2420
47n
2400
BC847B
7403
6410
2405
470p
3405
4K7
BYD33D
1R
3412
33n
2412
3420
75R
1m
2414
3407
L4
47u
2551
4K7
3406
47K
3434
3416
3R9
3411
1R
2u2
2431
2418
470n
10K
5U6
5410
VH
0221
1
4
3435
L3
9424
1K
3427
5406
DC12
2434
47n
9408
22K
3441
1N4148
6432
6403
1N4148
BYD33D
0221B
BAS216
6435
6402
6434
BYD33D
3428
10K
BF422
7400
2415
1m
8n2
2407
6418
1N4148
680p
2416
BYD33M
6433
2401
47n
0221C
3419
6405
BYD33D
4401
5401
12u
1
10
2
3
4
5
6
7
8
9
BAS216
6415
3426
10K
5445
AT2078
BZX79-C12
6413
5551
27u
2402
330p
2410
22n
2408
470u
BYD33D
6412
6400
1N4148
2404
330n
7431
BC857B
3433
100R
3421
BAS216
6414
220K
3404
BAV21
6431
10K
3440
9425
3431
220K
9403
1N4148
27u
5408
BU1508DX
7402
6406
Vlot8V
HdriveUC
VBatt
Hflybk
CRT_Discharge
MainAux
+160
+160
VlotAux5V
Vlot8V
ABLinfo
VlotAux13V
VlotAux13V
-13V
Vlot8V
CL 96532028_036.eps
070499
2V / div DC
20µs / div
100V / div DC
20µs / div
1V / div DC
20µs / div
1V / div DC
20µs / div
L2
L3L1
L3 0V DCL2 0V DC
L4
0V1 DC
L5
0V2 DC
L6
2V DC
L4
13V DC
L5 8V DC
L6 8V DC
L7 -13V DC
L7 -0V2 DC
L1

Table of Contents

Related product manuals