EasyManua.ls Logo

Philips L9.2EAA - Front Cinch + Headphone

Philips L9.2EAA
58 pages
Print Icon
To Next Page IconTo Next Page
To Next Page IconTo Next Page
To Previous Page IconTo Previous Page
To Previous Page IconTo Previous Page
Loading...
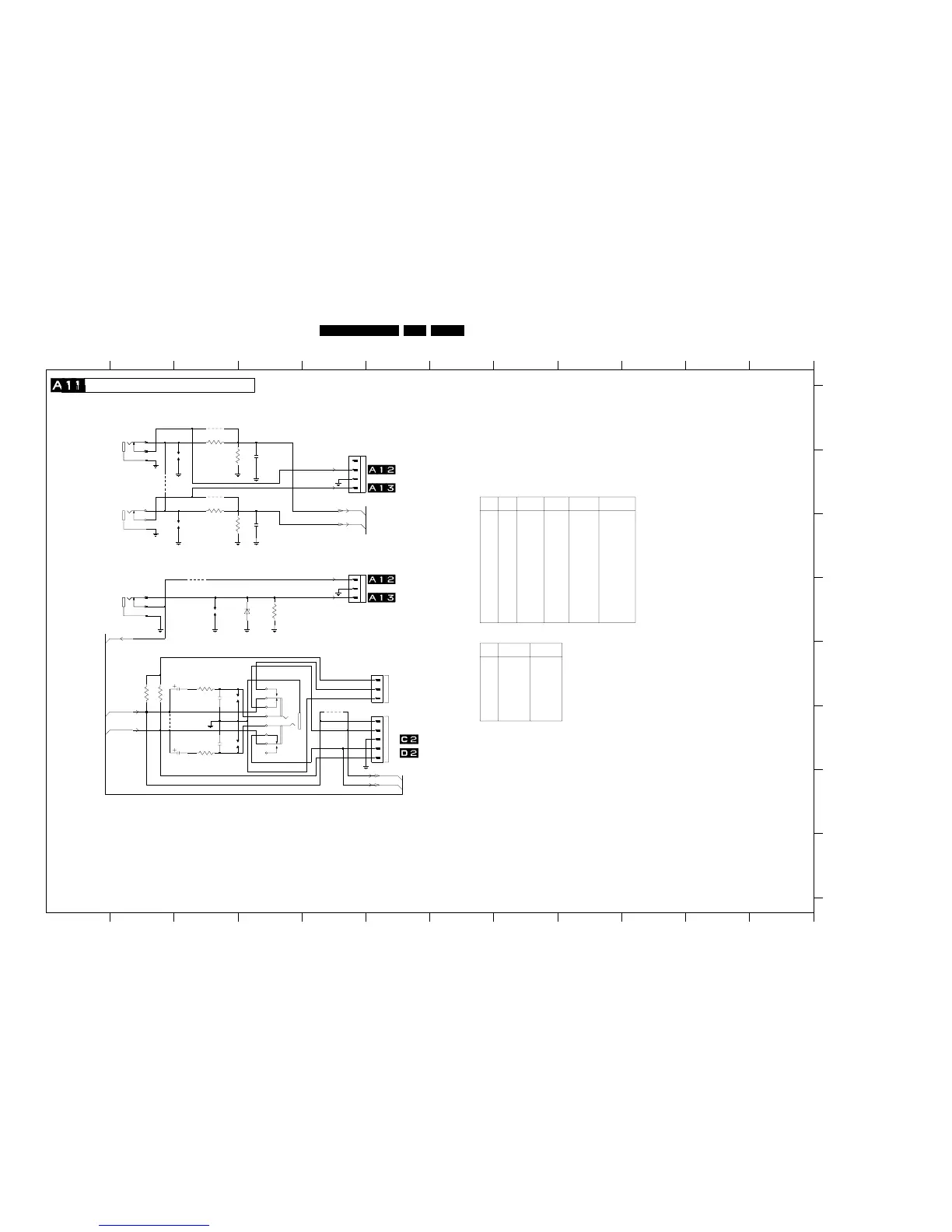
Schematics and PWB’s
GB 35L9.2E 7.
330pF
2174 10uF 10uF
2176 330pF 330pF
2177 10uF 10uF
3156 270R 270R
for other regions use 242202604747
FRONT CINCH + HEADPHONE
TO
A5-47
HEADPHONE / SPEAKER
A11-70
TO 0229 OF
A10-67
4152 For Mono set Only
Cinch Mono
330pF
-330pF
3150 - -
47K
--
3151 - -
SC1
Mono
SC1,Front
-47K
3153 - -
1K
-1K
3155 - -
-
-
3157 270R 270R
4154 - Yes
LEFT
4151,4153 for stereo set without front cinch
Ye s
RIGHT
OR
A5-48
Ye s
4153 - Yes
-
-
4155 - -
-
-Yes
4156 - -
Ye s
--
6161
2173
-Ye s0234
Ye sYe s
Front|Ext1Video
A11-73
330pF
OR
0247
OR
A
B
C
D
E
F
G
H
0217 E6
0218-A C2
0218-B B2
0218-C D2
0230 C5
0232 E4
0234 F6
0249 B5
1150 E3
1151 F3
1152 D3
1153 B3
1154 C3
2171 B4
2172 C4
2173 E3
2174 E3
2176 F3
2177 F3
VIDEO IN
NOTE : 0191 use 242202604471 for INDIA only
OF
ONLY
123456789101112
123456789101112
9122 for mono set without front cinch
INDIA
FOR
A10-66
A6-57
TO 0260 OF
FRONT CINCH
3150 B3
3151 A3
3152 C3
3153 B3
3155 D4
3156 E3
3157 F3
3158 E2
3159 E2
4150 F5
4151 A3
4152 B2
4153 B3
4154 F2
4156 D3
6161 D4
5
6
1
2
3
2176
330p
2174
4u7
0218-C
YKC21-5599
9
75R
3155
0218-A
YKC21-5599 7
8
Ye s
Ye s
-Yes
2171 - -
330pF
--
2172 - -
--
-
--
Front I/O Configuration
Headphone Configuration
0232
Headphone
Stereo
Headphone
Stereo
1K
--
3152 - -
47K
SC1,SC2
Stereo
SC1,Front
Cinch Stereo
SC1,SC2,Side
AV Stereo
0218 - -
A,B,C
-B,C
0230
-
4151 - Yes
-
--
4152 - -
-
-
--
Ye s
-Yes
0249 -
2171
330p
120R
3156
47K
3152
2177
4u7
330p
2173
3
4
3150
47K
4156
0249
1
2
0234
1
2
3
4
5
1
2
3
3157
120R
4154
0230
4152
4
5
6
1K
3153
4151
3159
47K
1154
4150
1
2
3
1150
1152
0217
0232
YKB21-5099A1
2
3
4
5
6
7
8
9
4153
3158
47K
1151
1
2
3
YKC21-5599
0218-B
4
3151
1K
330p
2172
1153
6161
BZX79-C6V8
SpkrLpIn
SpkrLpIn
SpkrLpIn
SpkrRpIn
SpkrRpIn
SpkrRpIn
Ext1|2
Ext1Video
SpkrRpOut
SpkrRpOut
Front|Ext1AudioR
Front|Ext1AudioL
SpkrLpOut
SpkrLpOut
CL 96532028_047.eps
070499

Table of Contents

Related product manuals