EasyManua.ls Logo

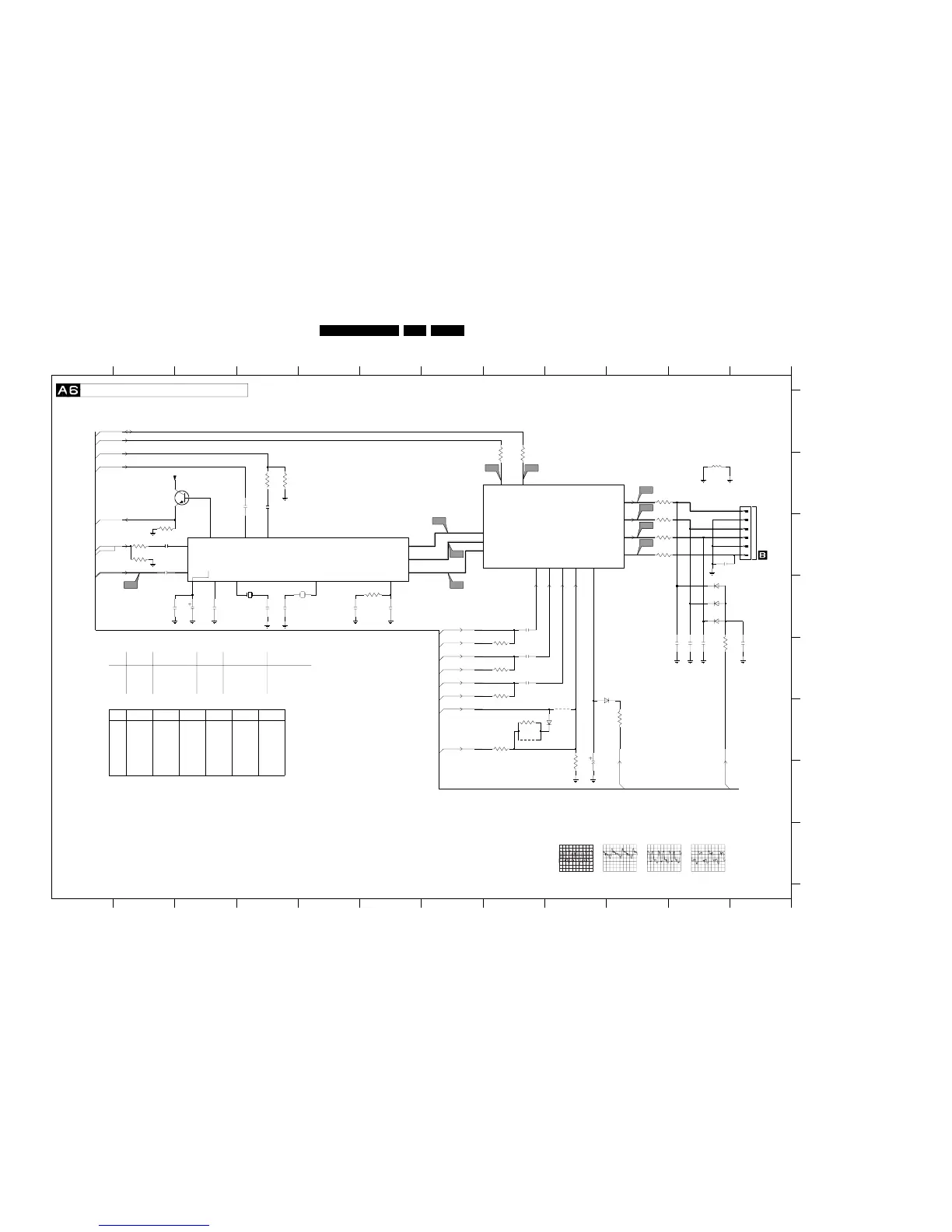
Philips L9.2EAA - A6 VIDEO PROCESSING (EUROPE)

Philips L9.2EAA
58 pages
Print Icon
To Next Page IconTo Next Page
To Next Page IconTo Next Page
To Previous Page IconTo Previous Page
To Previous Page IconTo Previous Page
Loading...
Schematics and PWB’s
GB 29L9.2E 7.
SC1 (Mono)
DIVERSITY TABLE
Front Cinch (Mono)
75R
Front Cinch (Stereo)
SC1
100R
75R
3V73V7
2V9
2V4
100nF-
--
A7-35
2V6
2V9
2V4
A
B
C
D
E
F
G
H
0243 B12
1205 D4
1208 D5
1nF
100nF
-
-
2V
2213
A7-34
3V3
2212
-
100R
6V8
-3228
3224
5V
(Stereo)
SC1, SC2
123456789101112
12
SC1
1V3 3V6
A11-57
1nF
A13-54
2V4
100nF
-
-
A7-33
2V6
2V52V6
3456789101112
SC1, SC2
Side AV (Stereo)
75R
100R
2210 C2
2211 C2
2212 B4
2213 B4
2214 D2
2215 D3
2216 D3
2217 D4
2218 E12
2221 D6
2222 D5
2223 D8
2224 E8
2225 E8
2226 G9
2228 E11
2229 E11
2230 E11
2248 D4
2250 C11
3214 E11
3218 C2
3219 C2
3223 C2
3224 B4
3225 D6
3228 B4
3233 E8
A13-60
TO
3V7
2V6
3234 E8
3235 E8
3236 F8
3237 F8
3243 G9
A7-36
PANEL
A7-22
CRT
3246 F10
3247 B8
3248 B8
3257 B10
3258 C10
3259 C10
3260 C10
4206 F9
4237 F8
5260 B11
6211 F9
6212 E9
6213 D11
6214 D11
6215 D11
7250-B C3
7250-C B10
7256 B3
OF
3V3
2V6
TDA8842S1
----
A7-24
A2-62
A5-51
A7-25
TDA8842S1 TDA8841S1 TDA8841S1
470R 560R 560R 470R
470nF 470nF
2248 15pF
82R68R68R3208
15pF - -
3206
A13-57
VIDEO PROCESSING (EUROPE)
A13-58
V6
3M579545
3219
560R
TDA8844
7250-B
3235
330R
4206
47p
3243
4K7
2229
1208
3218
100R
470n
2212
3
4
5
6
47p
2230
47p
V8
V3
V10V9
V2
V5
2224
47n
2213
470n
100R
3236
2222
100n
75R
3224
V4
3237
100R
V7
560R 560R
3217 6K8
PAL/SECAM
NTSC
PA L
NTSC
-
7250 TDA8845N1 TDA8842S1
150R 270R 270R 150R
LL’ST LL’MN
A13-55
2V9
2211
2V9
PA L
W/O NTSC
0245
A2-63
A13-59
A13-61
3.58MhzXtl - -
100nF 470nF 100nF 470nF
PAL/SECAM
W/O NTSC
1208 3.58MhzXtl 3.58MhzXtl 3.58MhzXtl
15pF 15pF
82R 82R 82R
3213
270R 270R
47n
2223
6211
1N4148
15p
2217
1N4148
6212
34
XTAL2
35
4M433619
1205
BYO
29
CHROMA
10
CVBSO
38
CVBS_EXT
17
CVBS_INT
13
CVBS_Y
11
DEC_BG
9
DET
36
LUMOUT
28
REFO
33
RYO
30
SECPLL
16
XTAL1
3247
100R
BI
25
BLKIN
18
BO
19
BYI
31
GI
24
GO
20
LUMIN
27
RGBIN
26
RI
23
21
RO
RYI
32
SCL
7
SDA
8
TDA8844
7250-C
BCLIN
22
3246
4K7
6213
1N4148
2248
15p
3225
100K
1N4148
6214
220R
3214
6n8
2218
2221
3n3
3223
75R
100R
3248
BC847B
7256
3234
330R
3259
47R
0243
1
2
2215
2u2
47R
3258
22n
2214
47n
2225
V1
3257
47R
1n
2250
10u
2226
2228
220n
2216
1K
3260
5260
22u
4237
6215
1N4148
330R
3233
470n
2211
2210
470n
Ext2C
R
G
B
Ext1FB
SCL
Ext1Video
Ext2Video|Y
3228
100R
CVBS_INT
VlotAux8V
SDA
FB_Txt|Osd
ABLinfo
Ext1R
CVBSTxt
Ext1B
Ext1G
CRT_Discharge
R_Txt|Osd
G_Txt|Osd
B_Txt|Osd
CL 96532028_042.eps
070499
TDA 8844, 8845
0.5V / div AC
20µs / div
0.5V / div AC
20µs / div
0.5V / div AC
20µs / div
0.5V / div AC
20µs / div
V6V7
V2 V5

Table of Contents

Related product manuals