EasyManua.ls Logo

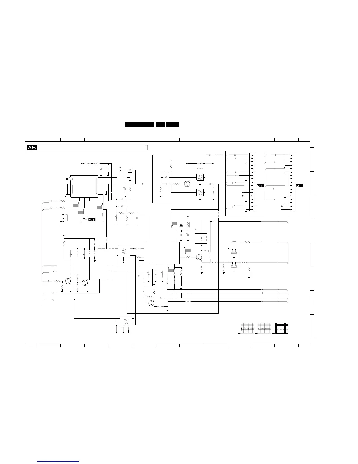
Philips L9.2EAA - A5 TUNER, VIDEO IF, VIDEO DET, FM-AUDIO DET. TDA8844

Philips L9.2EAA
58 pages
Print Icon
To Next Page IconTo Next Page
To Next Page IconTo Next Page
To Previous Page IconTo Previous Page
To Previous Page IconTo Previous Page
Loading...
Schematics and PWB’s
GB 26L9.2E 7.
NC
MT
GND
0V9
A5-43
1
*
*
*
A5-46
*
*
*
*
A11-47
1005 G4
1010 D2
A13-38
4V7
A9-45
A5-24
A
B
C
D
E
F
G
H
F02 C3
0239 A11
0240 A9
1000 B2
1001 A7
1002 B7
1003 E4
*
To 0240 of
*
*
234567891011
1234567891011
G
To 0239 of
TUNER
A9-37
A13-41
#
#
#
1011 C2
1012 C2
1200 E9
1201 E9
2001 B4
2002 C4
2003 B4
2004 C5
2005 B5
2006 B8
2008 A3
2012 E3
2200 F5
2201 F5
2202 F5
2203 F6
2205 F6
2206 D7
2207 D7
2208 G5
2209 G6
2220 D7
2227 E5
2252 B4
A10-49
4V7
#
4V4
A5-45
TUNER, VIDEO IF, VIDEO DET, FM-AUDIO DET.
#
#
2256 E8
3000 C2
3001 C2
3002 A3
3003 A3
3013 C4
3014 B4
3015 C4
3016 C5
3017 A6
3018 B6
3020 B6
3021 B8
3027 E3
3028 E3
3029 E2
3030 E3
3031 F1
3032 F2
3033 F2
3034 F2
3200 F6
A5-45
#
#
F
#
A9-40
#
#
*
#
#
#
#
#
A7-24
A5-24
3V2
3V1
2V6
8V6
1V5
2V9
3201 F6
3202 F7
3204 D7
3205 E7
3206 F7
3207 D7
3208 E8
3209 F8
3212 E9
3213 F9
A13-44
A5-46
H
A7-23
3V4
B
*
A9-38
3216 D9
3226 G5
3227 G5
3229 G6
3277 E5
3278 E5
4000 D3
4001 E3
4200 G6
4201 F5
4210 D8
4215 C8
4218 F4
4221 D8
4222 E8
4223 E8
4247 E4
4248 F4
4249 E2
5004 C3
5202 D9
6003 C4
6004 C4
6005 B6
*
1V
A
A7-3
0V7
A11-48
A5-25
*
6006 B6
6007 A3
6008 E2
6009 E2
6216 A7
7000 B7
7001 F2
7002 F2
7010 A4
7250-A E6
7254 G5
7266 E7
9000 B6
9203 G6
9204 E4
9205 G7
9220 G7
9279 A7
C
A5-43
A10-37
A7-6
A9-39
A7-25
A7-2
A9-53
#
IntCarSIF
A5-25
D
A13-50
*
*
*
**
*
A6-51
#
##
#
#
##
#
##
#
#
A13-42
2V4
5V
A13-43
34V
from SIN of
5V
E
1V6
3213
470R
For EMC shield
*
*
*
*
*
4V7
*
6008
BAS216
2005
100p
4200
2003
100u
1012
2008
10u
1K
3021
2K2
3018
4218
820n
5004
2205
100n
2203
10u
7000
BC847B
2K2
3029
2252
100n
2209
220n
4249
2006
47p
3204
100R
470R
3212
3034
1K
3016
680R
3K3
3227
12K
3003
10
11
4
SCL
5
SDA
1000
7
+5
8
ADC
3
AS
12
13
14
15
1
2
6
9
9279
6007
BZX55-C33
470R
3216
2220
100n
14
IFDEM1
3
IFDEM2
4
IFIN1
48
IFIN2
49
IFVO
6
PLLLF
5
SNDIF
112
V_P1
TDA8844
7250-A
AGCOUT
54
AUDEEM
55
2
AUDIOEXT
AUDIOOUT
15
DECSDEM
56
DEC_AGC
53
GND1
9203
9000
7010
L78M05
2
13
10u
2002
220R
3208
1K
3205
100K
3015
2K2
3028
2K2
3030
6009
2200
1n
3209
1K
BAS216
2
3
390R
3201
SFSH
1001
1
4215
3033
1K
220n
2208
1011
9205
1010
1N4148
6006
10K
3013
100n
2206
33p
2202
10n
2012
680R
3200
4222
9204
4248
EGP20DL
6216
4223
7002
BC847B
3032
22K
F02
SIN
2207
100u
4000
1u
2201
4221
1K
3277
6004
BAS216
I1
BC847B
7001
18K
3014
1
IN
2
ING
4
O1
5
O2
10
SWI
7254
BC847B
OFWK6272K
1005
38
1K
3278
47n
2001
6003
BAS216
1201
TPS
G
2
I
1
O
3
I3
1002
SFSH
1
2
3
1M
I4
6005
1N4148
3202
14
15
16
17
2
3
4
5
6
7
8
9
4210
0240
1
10
11
12
13
7266
6K8
3027
560R
3206
BC847B
4K7
3017
I5
4201
I6
470n
2227
22n
2004
4001
100R
3000
4247
3207
3R3
TPS
1200
2
G
1
I
3
O
2256
220n
330K
3226
I2
22K
3020
3001
100R
1003
1
2
3
4
5
9220
3031
4K7
+5VA
3229
15K
3002
6u8
5202
220R
12
13
14
15
16
17
2
3
4
5
6
7
8
9
0239
1
10
11
ExtAudioMono
AudioSupply10V|14VA
AudioSupply10V|14V
AudioSupply10V|14VA
+5VA
VlotAux5V
VlotAux8V
LLp|F1
LLp|F2
SIF
AudioSupplyGnd
SIF
Front|Ext1AudioL
Front|Ext1AudioR
Volume
Buzzer
FM|AM|ExtAudioMono
VideoOut
SCL
SDA
FM|AM|Audio
AudioOutR
AudioOutL|Mono
Ext2AudioR
Ext2AudioL|Mono
+5VA
VlotAux8V
FM|AM|Audio
FM|AM|Ext_VC_AudioMono
VlotAux8V
AudioOutL|Mono
CVBS_INT
VlotAux8V
SCL
SDA
Dual|Mono
VBatt
LLp|Mtrap
FM_AudioMono
+8VA
MainAudioL|Mono
TDA8844
CL 96532028_039.eps
070499
# SEE DIVERSITY LIST FOR A5
0.2V / div DC
5µs / div
1V / div DC
5µs / div
1V / div DC
2µs / div
I1 I3 I4

Table of Contents

Related product manuals