EasyManua.ls Logo

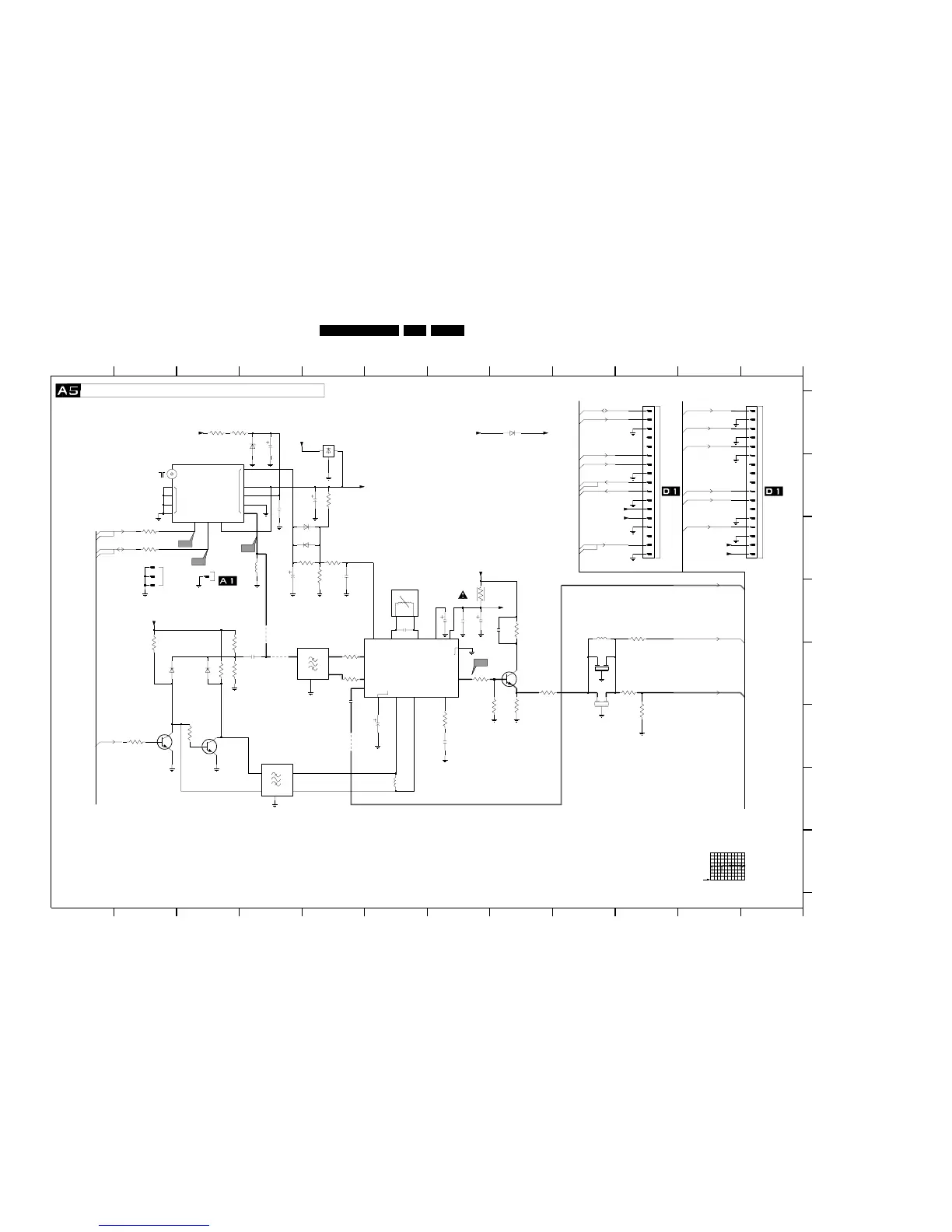
Philips L9.2EAA - A5 TUNER VIDEO IF, VIDEO DET, QSS-AUDIO DET. TDA8845

Philips L9.2EAA
58 pages
Print Icon
To Next Page IconTo Next Page
To Next Page IconTo Next Page
To Previous Page IconTo Previous Page
To Previous Page IconTo Previous Page
Loading...
Schematics and PWB’s
GB 27L9.2E 7.
NC
MT
*
*
A5-24
A7-24
6
4u7
A5-46
*
TUNER
*
A5-25
*
A11-47
*
5204 G6
6003 C5
6004 C5
6007 A4
6008 E2
6009 E3
6216 A8
7001 F2
7002 F3
7010 A5
7250-A E6
7266 E8
A9-45
3V3
A10-49
4V4
2
10
4V7
*
*
7
113
*
2V6
#
*
8V6
8
TDA8845
1
B
*
E
G
1V6
A5-45
2 12
#
For EMC shield
5V
0V7
2V4
3217 F8
3277 E5
3278 E5
4000 D4
4202 F5
4247 E4
5004 C4
5006 D6
5202 D9
*
A13-50
A13-44
3V9
11
from SIN of
34V
A13-41
6
C
3013 C5
3014 B5
3015 C5
3016 C5
3027 E3
3028 E3
3029 E2
3030 E3
3031 F2
3032 F3
3201 F7
3204 D8
3205 E7
3206 F8
3207 D7
3208 E8
3212 E10
3213 F10
3216 D10
A7-2
A7-25
*
*
*
*
*
D
*
*
*
*
1204 G4
2001 B4
2002 C4
2003 B5
2004 C5
2008 A4
2012 E4
2014 D6
2201 F6
2205 F7
2206 D7
2207 D7
2220 D8
2227 E5
2245 D7
3000 C2
3001 C2
3002 A3
3003 A4
95
A5-46
45 9
A5-43
#
TUNER VIDEO IF, VIDEO DET, QSS-AUDIO DET.
A6-51
A7-3
4V7
To 0240 of
A13-42
23456789101112
12
A
1010 D2
1011 C2
1012 C2
1200 E9
1201 E9
##
3V9
103
A5-24
#
A7-23
*
2V94V7
123456789101112
1
*
To 0239 of
A5-25
A11-48
1
A13-43
4
F
7
5V
H
*
1V
8
A
B
C
D
E
F
G
H
F02 C3
0239 A12
0240 A10
1000 B2
1003 E4
1011
3002
15K
470R
1010
3212
3013
10K
L78M05
7010
2
13
3
4
5
6
7
8
9
0240
1
10
11
12
13
14
15
16
17
2
4u7
5204
4202
15
AUDIOOUT
56
DECSDEM
53
DEC_AGC
14
GND1
3
IFDEM1
4
IFDEM2
48
IFIN1
49
IFIN2
6
IFVO
5
PLLLF
1
SNDIF
V_P1
12
7250-A
54
AGCOUT
55
AUDEEM
QSS
2
3003
12K
680R
3016
10u
2008
3014
18K
2201
1u
I1
3029
2K2
3277
1K
470R
3213
I6
I5
BC847B
7266
22K
3032
BC847B
7002
1204
SIN
F02
BAS216
6008
3208
220R
2002
10u
3201
390R
BAS216
6003
TPS
1201
2
G
1
I
3
O
3027
6K8
BAS216
6004
2227
470n
3278
1K
2245
2012
10n
2001
47n
2206
100n
2004
22n
7001
BC847B
G
2
I
1
O
3
1200
TPS
3030
3206
560R
2K2
3028
2K2
ADC
8
AS
3
12
13
14
15
1
2
6
9
10
11
SCL
4
SDA
5
BAS216
1000
+5
7
1
2
3
4
5
6009
3015
100K
1003
1
2
3
4
5
4K7
3031
3000
100R
5004
820n
100n
2205
8
9
5202
6u8
10
11
12
13
14
15
16
17
2
3
4
5
6
7
0239
1
4000
2207
100u
4247
5006
7KM
123
46
7
s1
8
100n
2220
6216
EGP20DL
3R3
3207
3216
470R
5p6
2014
3205
1K
100R
3204
BZX55-C33
6007
1012
100u
2003
I2
6K8
3217
+8VA
VlotAux8V
100R
3001
SIF
SCL
SDA
FM|AM|Audio
AudioOutR
AudioOutL|Mono
Ext2AudioR
Ext2AudioL|Mono
+5VA
VlotAux8V
VlotAux8V
AudioSupply10V|14VA
+5VA
VlotAux5V
AudioSupply10V|14V
AudioSupply10V|14VA
CVBS_INT
SCL
SDA
VBatt
LLp|Mtrap
MainAudioL|Mono
AudioSupplyGnd
SIF
Front|Ext1AudioL
Front|Ext1AudioR
Volume
Buzzer
VideoOut
CL 96532028_040.eps
070499
*# SEE DIVERSITY LIST FOR A5
TDA8845
0.2V / div DC
5µs / div
I1

Table of Contents

Related product manuals