EasyManua.ls Logo

Philips L9.2EAA - B CRT PANEL

Philips L9.2EAA
58 pages
Print Icon
To Next Page IconTo Next Page
To Next Page IconTo Next Page
To Previous Page IconTo Previous Page
To Previous Page IconTo Previous Page
Loading...
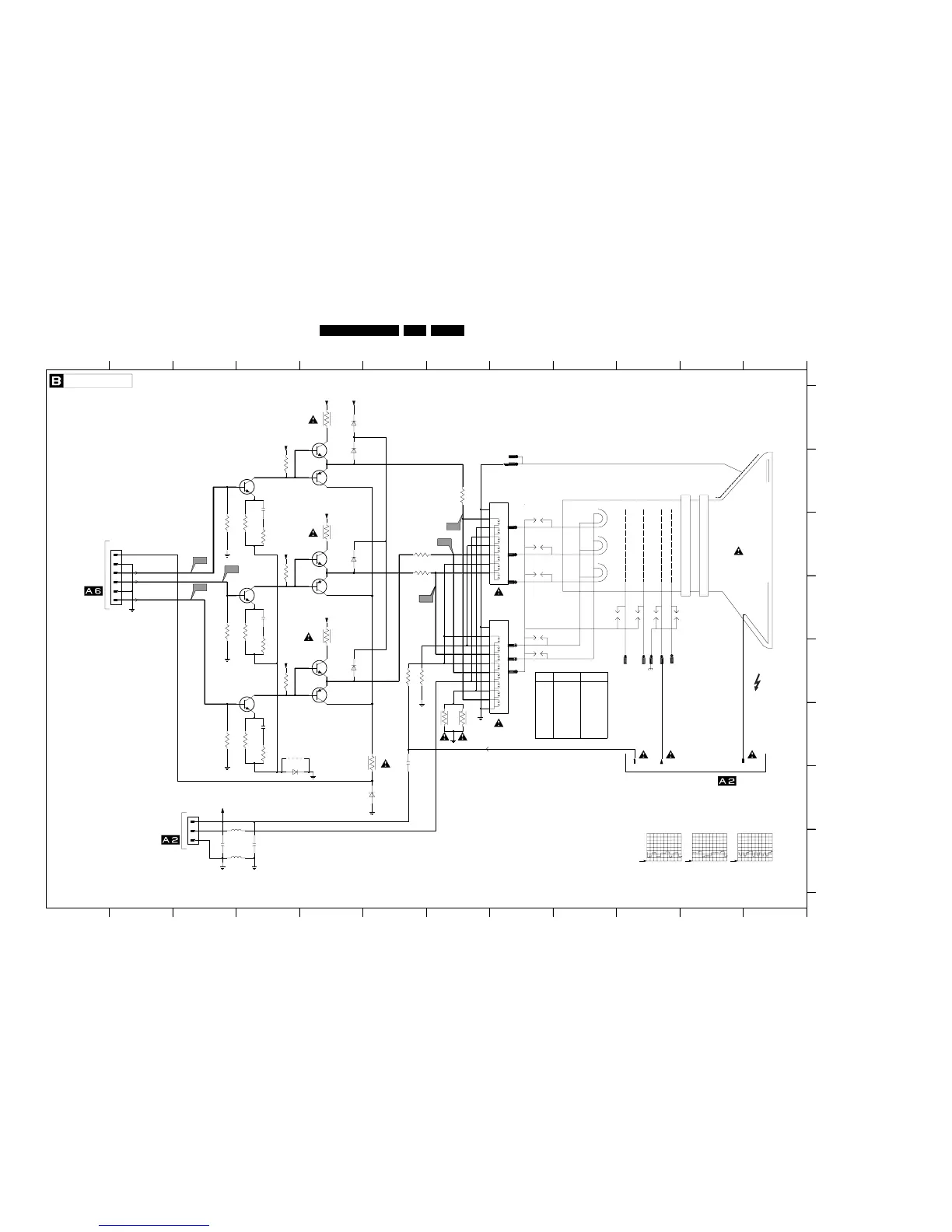
Schematics and PWB’s
GB 37L9.2E 7.
Blue
Green
Red
10
LOT OF
10
D
11
F
A
B
C
D
E
F
G
H
VG2 F10
0165 B8
0244 G3
0245 C2
0254 D8
1300 B8
2313 F4
2323 D4
2331 B4
2341 F6
1
G
FROM MAIN CHASSIS
TO
C
123456789101112
123456789101112
Pin 7 Pin 8
Heater Pin 5 Pin 9
Heater Pin 4 Pin 10
Blue Pin 3 Pin 11
CRT
2342 H3
2343 H4
3311 F3
3312 F4
3313 F4
3314 E4
3316 D5
3317 C6
3321 D3
3322 D4
3323 E4
3324 C4
3326 C5
3327 C6
3331 C3
3332 C4
3333 C4
3334 B4
3336 A5
3337 B7
Heater
Ground
VG1 VG2
Green
Pin 5Pin 6VG1
Pin 1 & 12Pin 1
9 Pin 12 Pin
GND
Blue
Red
Pin 7Pin 8VG2
Pin 6Pin 9
3341 E6
3347 F5
3348 E6
3349 F7
3350 F7
5341 G3
5342 H3
6311 E5
6321 C5
6331 B5
6341 A5
6342 G4
8
6
EHT
A
91
37
7
OF
5
6343 G6
7311 F4
7312 E5
7313 E5
7321 D4
7322 C5
7323 D5
7331 B4
7332 B5
7333 B5
9300 F4
190V
129V
1V9
129V
2V4
GND
5
82 9
4
140V
6
0220 OF
1V9
2V4 1V2
E
FOCUS
129V
3
1V9
190V
129V
1V2
140V
B
12
129V
12
H
11
2
129V
190V
140V
1V22V4
CRT PANEL
4
TO 0243
12
4
5
6
7
8
9
1
G
OLDGND
NEWGND
Heater
Green
Red
100R
3349
0245
1
2313
220p
1K5
3317
2341
2
3
4
5
6
3350
100R
RED
BLUE
GREEN
BLKCURINFO
160V
V13
3314
33K
OLDGND
V15
330R
3322
BAV21
6321
1K
3347
1K5
3348
NEWGND
220R
3336
7323
BF423
1K
3321
5342
22u
33R
3323 3333
33R
V11
1
3
4
5
6
7
8
9
3324
33K
1300
3332
470R
BF422
7312
7333
BF423
OLDGND
3337
0254
10
11
9300
1K5
BZX284-C8V2
3312
470R
6331
BAV21
6343
V12
BAV21
6341
220p
2323
33K
3334
NEWGND
3316
220R
2342
47n
OLDGND
1K5
3341
3311
1K
V14
VG2
1N4148
6342
7332
BF422
V16
6311
BAV21
3313
33R
15n
2343
3327
1K5
7313
BF423
3331
1K
0244
FILEMENT
1
2
3
22u
5341
0165
OLDGND
2331
220p
BF422
7311
BF422
7331
NEWGND
OLDGND
220R
3326
680p
7321
BF422
OLDGND
7322
BF422
160V 160V
160V
160V
160V
160V
160V
CL 96532028_049.eps
070499
50V / div DC
10µs / div
50V / div DC
20µs / div
50V / div DC
10µs / div
V14 V15 V16

Table of Contents

Related product manuals