EasyManua.ls Logo

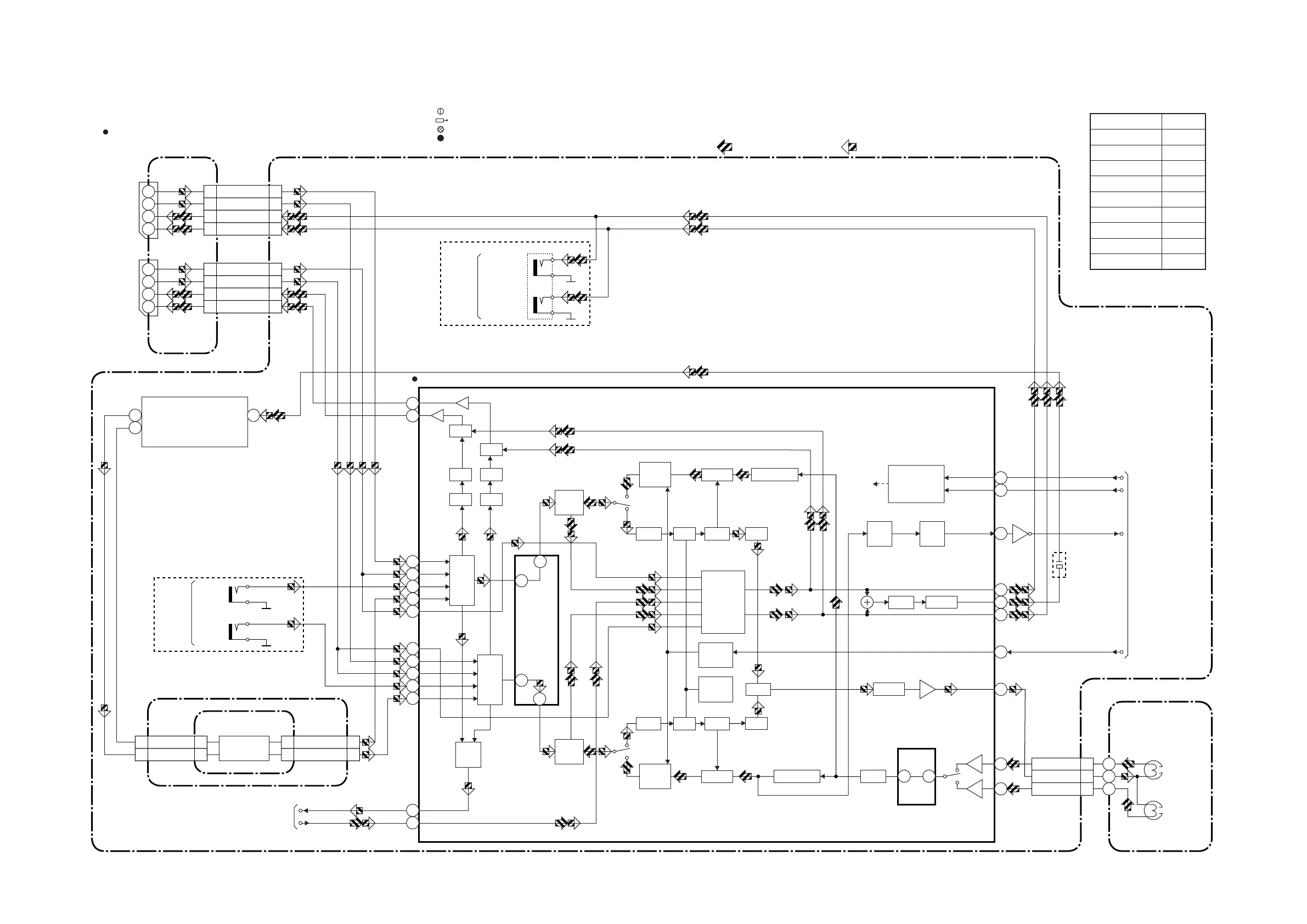
Philips VR330/58 - Hi-Fi Audio Block Diagram ( W,X,Z,AA,AB,AC,AD,AE )

Philips VR330/58
63 pages
Print Icon
To Next Page IconTo Next Page
To Next Page IconTo Next Page
To Previous Page IconTo Previous Page
To Previous Page IconTo Previous Page
Loading...
48
47
13
14
51
65
67
69
73
6
7
11
53
R-CH
INSEL
L-CH
INSEL
IF SINAL
PROCESS
NOR
SW
SERIAL
DATA
DECODER
OUTPUT
SELECT
VCO
LPF
L-CH BPF
R-CH
PNR
L-CH
PNR
LIM DEV
COMP
SW
NOISE
VCO
LPF
LIM DEV
COMP
COMP
SW
NOISE
ENV
DET
DO
DET
MIX
R-CH BPF
P
R
R
L
P
R
HOLD
PULSE
NOISE
DET
ALC
31 30
23
80
2
78
38
39
40
26
24
27
N-A-REC
TU-AUDIO
TU701
AUDIO
SIF
LIM
MUTE
4
N-A-PB
Hi-Fi-H-SW
A-MODE
TO AUDIO BLOCK
I2C-BUS SDA
I2C-BUS SCL
TO
SERVO/ SYSTEM
CONTROL BLOCK
Hi-Fi
AUDIO
(R) HEAD
Hi-Fi
AUDIO
(L) HEAD
CYLINDER
ASSEMBLY
MAIN CBA
Hi-Fi-A(R) 7
Hi-Fi-COM 8
Hi-Fi-A(L) 9
CL253
IC451 (MTS/ SAP/ Hi-Fi AUDIO PROCESS/ Hi-Fi HEAD AMP)
Hi-Fi Audio Block Diagram ( W,X,Z,AA,AB,AC,AD,AE )
HC464BLH
REC-AUDIO SIGNALPB-AUDIO SIGNAL Mode : SP/REC
JACK CBA
AFV CBA
JK101
A-IN1(R)
A-IN1(L)
2
6
2
6
1
3
1
3
JK102
CL151
CL152
CL101
CL102
A-IN2(R)
A-IN2(L)
A-OUT1(R)
A-OUT1(L)
A-OUT2(R)
A-OUT2(L)
" " = SMD
NOTE FOR WIRE CONNECTORS:
1. PREFIX SYMBOL "CN" MEANS CONNECTOR.
(CAN DISCONNECT AND RECONNECT.)
2. PREFIX SYMBOL "CL" MEANS WIRE-SOLDER
HOLES OF THE PCB.
(WIRE IS SOLDERED DIRECTLY.)
TEST POINT INFORMATION
:INDICATES A TEST POINT WITH A JUMPER WIRE ACROSS A HOLE IN THE PCB.
:USED TO INDICATE A TEST POINT WITH A COMPONENT LEAD ON FOIL SIDE.
:USED TO INDICATE A TEST POINT WITH NO TEST PIN.
:USED TO INDICATE A TEST POINT WITH A TEST PIN.
TU-AUDIO(R)
4
TU-AUDIO(L)
5
4
5
CN701CN1
SIF
2
TU-AUDIO 1
2
1
CN701 CN1
2
21
22
D.C.
ALC
SW
SW
ALC
D.C.
76
75
A-IN2(R)
9
A-IN2(L) 8
9
8
A-OUT2(R)
6
A-OUT2(L) 11
6
11
A-IN1(R)
10
A-IN1(L) 8
10
8
A-OUT1(R)
6
A-OUT1(L) 12
6
12
Q451
1-9-21 1-9-22
JK758
A-IN(R)
JK757
A-IN(L)
71
9
FRONT
W,X,Z,AA,
AB,AC,AE
FRONT
JK751
A-OUT(R)
A-OUT(L)
Comparison Chart of
Models & Marks
Model Mark
VR530/58
VR630/58
VR330/58
W
X
VR730/58
Y
Z
VRQ45/16
VRQ45/39
AB
VR732/58
VR830/58
AA
VRQ45/58
AC
AD
AE
Z,AA,AB,AC,AD,AE
Z,AA,AB