EasyManua.ls Logo

PIAGGIO Carnaby 200 - Page 76

PIAGGIO Carnaby 200
310 pages
Print Icon
To Next Page IconTo Next Page
To Next Page IconTo Next Page
To Previous Page IconTo Previous Page
To Previous Page IconTo Previous Page
Loading...
F. Spia luce abbagliante
Battery recharge and starting
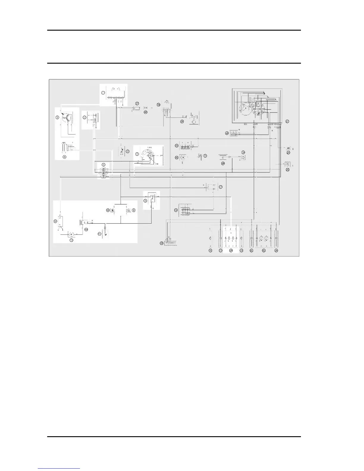
KEY
1. Electronic ignition device
2. Engine stop switch
3. Magneto flywheel - Pick-up
4. Voltage regulator
5. Fuse unit
7. Key switch
8. Stop light remote control
9. Stop button on front brake
10. Stop button on rear brake
11. Battery
12. Starter motor
13. Start-up remote control
14. Starter button
20. Rear light
B. Stop light bulbs
VERSIONE CON TELERUTTORE DI INIBIZIONE AVVIAMENTO
Electrical system Carnaby 125 - 200
ELE SYS - 76

Table of Contents