EasyManua.ls Logo

Powerware 9315 - Locating the Communications Panel; Figure 23. Location of Communications Ports on the UPS

Powerware 9315
92 pages
Print Icon
To Next Page IconTo Next Page
To Next Page IconTo Next Page
To Previous Page IconTo Previous Page
To Previous Page IconTo Previous Page
Loading...
40
Powerware 9315 (200 kVA---300 kVA) Operation
164201036 Rev. D 041500
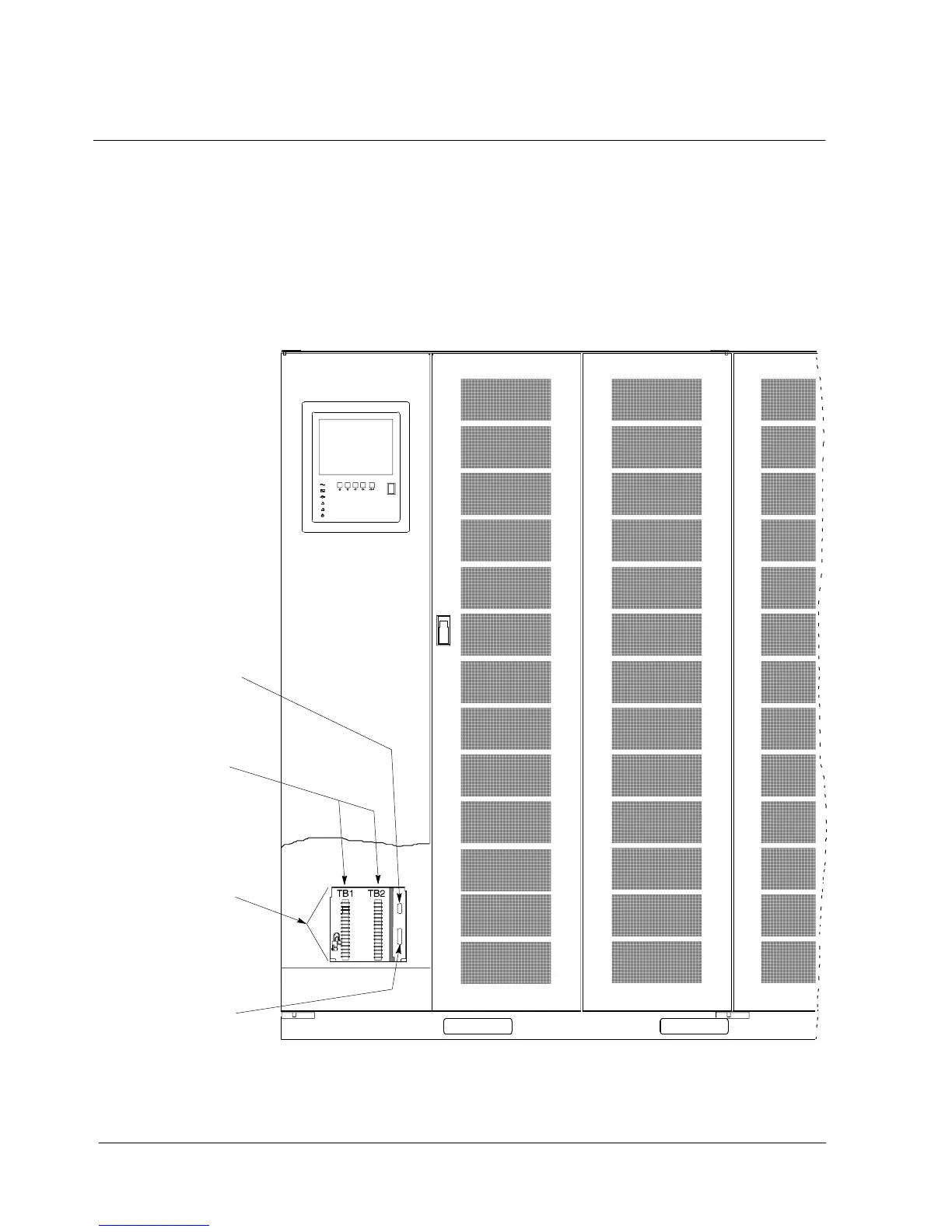
Locating the Communications Panel
The Communications Panel inside the UPS contains two serial communications
ports, one DE---9 and one DB---25. The ports provide a computer interface to a
Remote Monitor Panel (RMP), Relay Interface Module (RIM), or remote terminal
and/or printer. The Communications Panel also contains terminals (TB1 and TB2)
for connecting your equipment to the UPS. Figure 23 shows the location of these
items inside the UPS.
R S --- 4 8 5
R S --- 2 3 2
Connection
Connection
P O R T 1 ( D E --- 9 F )
P O R T 2 ( D B --- 2 5 F )
TB1 a nd TB2
COMMUNICATIONS
PANEL
Figure 23. Location of Communications Ports on the UPS (Powerware 9315 300)

Table of Contents

Other manuals for Powerware 9315

Related product manuals