EasyManua.ls Logo

Pressroom Electronics PressCam 8 - External Wiring Diagram (#28-105)

Default Icon
56 pages
Print Icon
To Next Page IconTo Next Page
To Next Page IconTo Next Page
To Previous Page IconTo Previous Page
To Previous Page IconTo Previous Page
Loading...
10
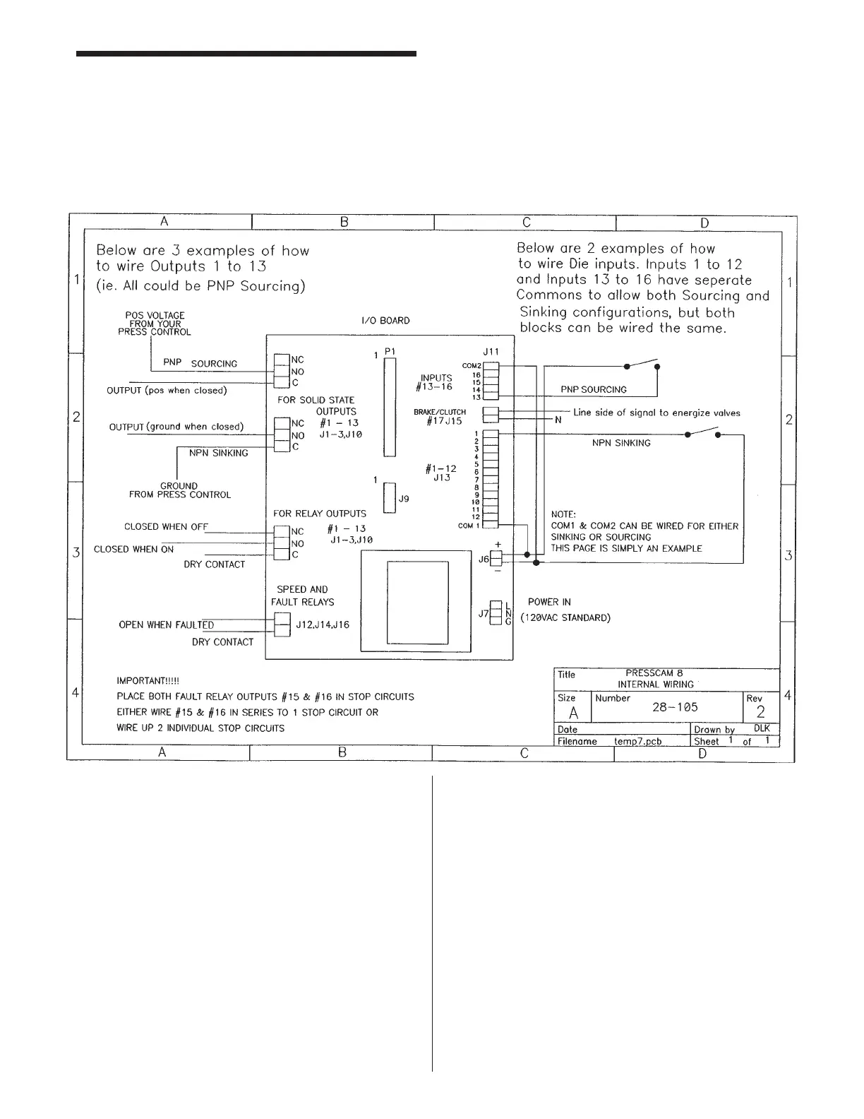
System Installation
External Wiring Diagram (#28-105)

Table of Contents