EasyManua.ls Logo

Pudu T300 - Product Components; Overview; Appearance & Components

Pudu T300
43 pages
Print Icon
To Next Page IconTo Next Page
To Next Page IconTo Next Page
To Previous Page IconTo Previous Page
To Previous Page IconTo Previous Page
Loading...
PUDU T300 Operation Guide
Version: V1.0.2 Operation Guide
3
2. Product Components
2.1 Overview
PUDU T300 is a delivery robot applied to material transfer in industrial scenarios and large
load handling in commercial scenarios. It is equipped with a load carrier chassis as the core and an
operation screen for user-friendly use. The maximum load of the robot can reach 300kg, and the
carrying space is open and flexible, which can be matched with different accessories to meet
different carrying needs. Meanwhile, it has rich interfaces, which is convenient for hardware
expansion and IOT interconnection.
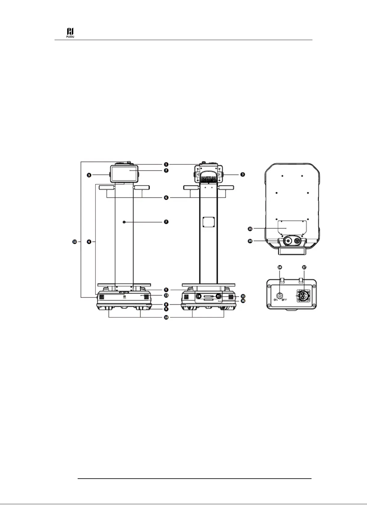
2.2 Appearance & Components
Front
Back
Charging port

Related product manuals