EasyManua.ls Logo

PVR EM Series - Ubicazione; Collegamento Alla Macchina Utilizzatrice; Convogliamento Aria DI Scarico

PVR EM Series
44 pages
Print Icon
To Next Page IconTo Next Page
To Next Page IconTo Next Page
To Previous Page IconTo Previous Page
To Previous Page IconTo Previous Page
Loading...
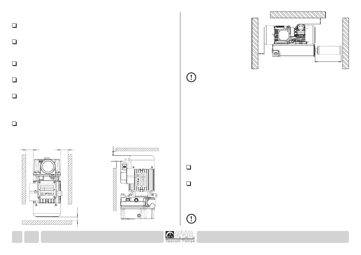
5.2 Ubicazione
La pompa deve essere inserita in una zona protetta (vedi paragrafo 3. Prescrizio-
ni di sicurezza).
Deve essere bloccata in corrispondenza dei piedi di appoggio, su un piano
orizzontale.
Assicurare il ricambio d’aria nel locale o all’interno della macchina dove è instal-
lata la pompa. Per garantire un sufficiente raffreddamento, evitare di superare i
40°C di temperatura ambiente.
La pompa va protetta da getti o spruzzi d’acqua che potrebbero penetrare nel
serbatoio dal foro di scarico.
Se installata all’esterno proteggere dagli agenti atmosferici ed usare l’olio ido-
neo alla temperatura ambiente.
Evitare che l’aria calda proveniente dallo scarico o dalle ventole di raffreddamen-
to possa creare disagio al personale.
Deve essere accessibile per una corretta e facile manutenzione rispettando le
distanze minime da eventuali ingombri:
EM4 - EM4/B EM8 - EM8/B
AVVERTENZE:
Non installare la pompa in una zona con polvere o altri materiali che
potrebbero intasare o coprire rapidamente le superfici di raffredda-
mento.
5.3 Collegamento alla macchina utilizzatrice
Il collegamento della pompa alla camera da evacuare deve essere eseguito con tu-
bazioni dello stesso diametro della bocca di aspirazione.
Il peso delle tubazioni e le eventuali dilatazioni non devono gravare sulla pompa.
Si consiglia di effettuare il collegamento finale alla pompa con tubi o raccordi flessi-
bili. È importante che tutte le tubazioni ed i vari giunti siano a tenuta.
Tubazioni molto lunghe o di diametro piccolo diminuiscono le prestazioni della
pompa.
5.4 Convogliamento aria di scarico
In caso di necessità è possibile convogliare l’aria di scarico della pompa in altri
ambienti o all’esterno.
Utilizzare tubazioni di diametro uguale alla bocca di scarico del serbatoio per
una lunghezza massima di 15 m.
Per lunghezze superiori aumentare il diametro del tubo.
Il peso delle tubazioni non deve gravare sulla pompa.
Utilizzare nel tratto finale raccordi o tubi flessibili.
AVVERTENZE:
Questa tubazione deve essere discendente per evitare il rientro di
4
ITA
3030
15
20
30
50
50
A
EM12 - EM12/B: A = 110
EM20 - EM20/B: A = 150
EM28 - EM28/B: A = 170
EM40 - EM40/B: A = 190

Related product manuals