EasyManua.ls Logo

Quantum QX Series - 56-Drive System

Quantum QX Series
225 pages
Print Icon
To Next Page IconTo Next Page
To Next Page IconTo Next Page
To Previous Page IconTo Previous Page
To Previous Page IconTo Previous Page
Loading...
Chapter 3: Connecting Hosts
Connect the Chassis to Hosts
QX and QXS Setup Guide 101
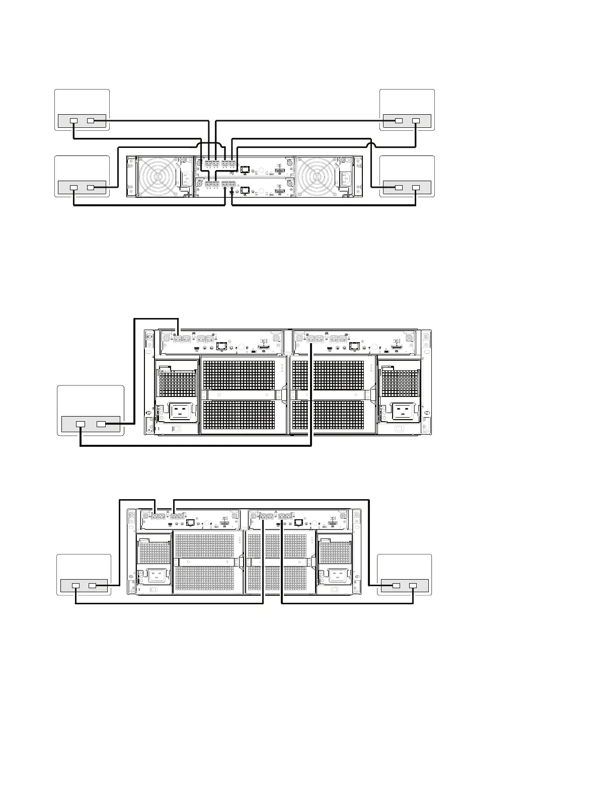
Figure92:Connecting hosts: Four servers and one HBA per server, dual path
6Gb/s
6Gb/s
S
S
A
S
S
A
56-Drive System
This section provides representative illustrations connections to hosts.
Figure93:Connecting hosts: direct attach—one server/one HBA/dual path
6Gb/s 6Gb/s
Figure94:Connecting hosts: direct attach—two servers/one HBA per server/dual path
6Gb/s 6Gb/s

Table of Contents

Other manuals for Quantum QX Series

Related product manuals