EasyManua.ls Logo

Quincy Compressor QGD-40-BMD - Electrical Connections

Quincy Compressor QGD-40-BMD
114 pages
Print Icon
To Next Page IconTo Next Page
To Next Page IconTo Next Page
To Previous Page IconTo Previous Page
To Previous Page IconTo Previous Page
Loading...
To= Air receiver temperature K
10. To prevent feedback of exhaust air to the cooling inlet, sufficient space should be foreseen
above the unit to evacuate the exhaust air.
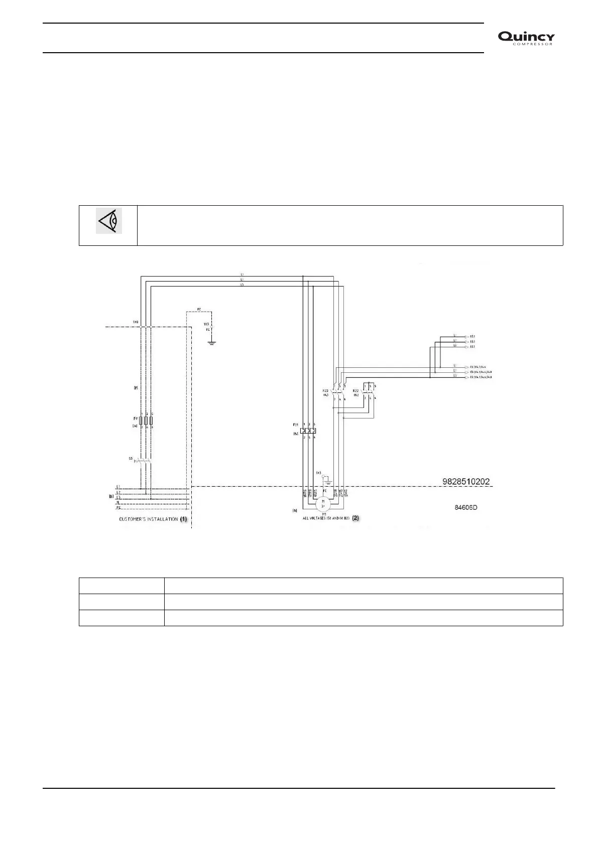
4.3 Electrical connections
Important remark
To preserve the protection degree of the electric cubicle and to protect its components from
dust from the environment, it is mandatory to use a proper cable gland when connecting the
supply cable to the compressor.
Electrical connections
Reference Designation
(1) Customer’s installation
(2) All voltages (50 and 60 Hz)
Instructions
1. Provide an isolating switch.
2. Check that the motor cables and wires inside the electric cabinet are clamped tight to their
terminals.
3. Check the fuses and the setting of the overload relay. See section Electrical cable size.
4. Connect earth conductor bolt (PE).
5. Connect the power supply cables to their terminals L1, L2, L3.
Instruction book
2920 7190 02 69

Related product manuals