EasyManua.ls Logo

Regency P36D-NG1 - Unit Installation with Vertical Termination

Regency P36D-NG1
64 pages
Print Icon
To Next Page IconTo Next Page
To Next Page IconTo Next Page
To Previous Page IconTo Previous Page
To Previous Page IconTo Previous Page
Loading...
Regency
®
P36D-1 Zero Clearance Direct Vent Gas Fireplace
33
INSTALLATION
Diagram 3
Diagram 5
Diagram 1
Diagram 2
NOTE: For best results and optimum
performance with each approved venting
system, it is highly recommended to apply
“Mill-Pac” sealant (supplied) to every inner
pipe connection. Failure to do so may result
in drafting or performance issues not covered
under warranty. Silicone (red RTV) is optional.
Diagram 5
Diagram 6
UNIT INSTALLATION WITH
VERTICAL TERMINATION
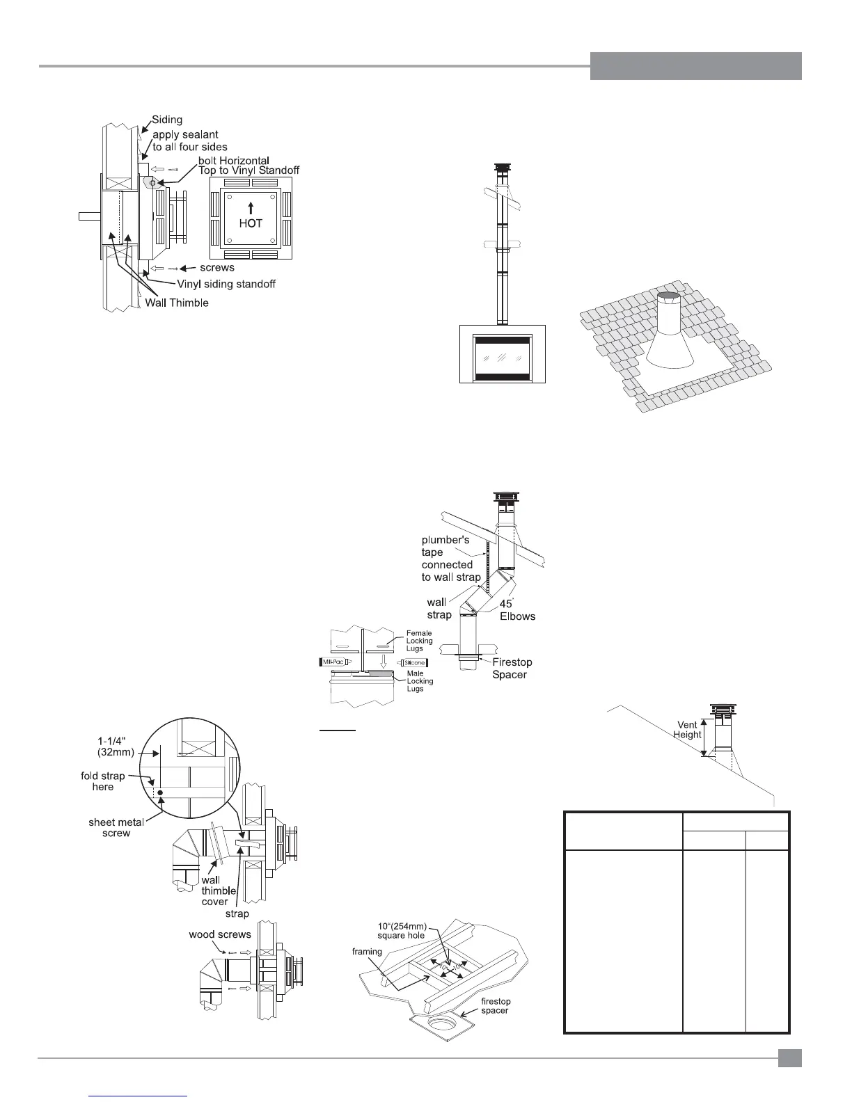
1) Maintain the 1-1/4" clearances
(air spaces) to combustibles
when passing through ceilings,
walls, roofs, enclosures,
attic rafter, or other nearby
combustible surfaces. Do not
pack air spaces with insulation.
Check for the maximum
vertical rise of the venting
system and the maximum
horizontal offset limitations.
Diagram 7
The four wood screws provided should
be replaced with appropriate fasteners for
stucco, brick, concrete, or other types of
sidings.
Note: If installing termination on a siding
covered wall, a vinyl siding standoff
or furring strips must be used to
ensure that the termination is not
recessed into the siding.
7) Before connecting the horizontal run of vent
pipe to the vent termination, slide the Wall
Thimble over the vent pipe.
8) Slide the appliance and vent assembly
towards the wall carefully inserting the
vent pipe into the vent cap assembly. It is
important that the vent pipe extends into
the vent cap suf cient distance so as to
result in a minimum pipe overlap of 1-1/4
inches. Secure the connection between the
vent pipe and the vent cap by attaching the
two sheet metal strips extending from the
vent cap assembly into the outer wall of the
vent pipe. Use the two sheet metal screws
provided to connect the strips to the pipe
section. See Diagram 6.
9) Install wall thimble in
the center of the 10"
square and attach
with wood screws
(Diagram 7).
2) Set the gas appliance in
its desired location. Drop
a plumb bob down from
the ceiling to the position
of the appliance ue exit,
and mark the location
where the vent will penetrate the ceiling. Drill
a small hole at his point. Next, drop a plumb
bob from the roof to the hole previously
drilled in the ceiling, and mark the spot where
the vent will penetrate the roof. Determine if
ceiling joists, roof rafters or other framing will
obstruct the venting system.
You may wish to relocate the
appliance or to
offset, as shown
in Diagram 2
to avoid cutting
load bearing
members.
3) A Firestop spacer must be installed in the
oor or ceiling of every level. To install the
Firestop spacer in a at ceiling or wall,
cut a 10 inch square hole. Frame the hole
as shown in Diagram 3 and install the
restop.
4) Assemble the desired lengths of pipe and
elbows. Ensure that all pipes and elbow
connections are in the fully twist-locked
position and sealed.
5) Cut a hole in the roof centered on the small
drilled hole placed in the roof in Step 2. The
hole should be of suf cient size to meet
the minimum requirements for clearance
to combustibles of 1-1/2". Slip the ashing
under the shingles (shingles should overlap
half the ashing) as per Diagram 4.
Roof Pitch Minimum Vent Height
Feet Meters
at to 7/12 2 0.61
over 7/12 to 8/12 2 0.61
over 8/12 to 9/12 2 0.61
over 9/12 to 10/12 2.5 0.76
over 10/12 to 11/12 3.25 0.99
over 11/12 to 12/12 4 1.22
over 12/12 to 14/12 5 1.52
over 14/12 to 16/12 6 1.83
over 16/12 to 18/12 7 2.13
over 18/12 to 20/12 7.5 2.29
over 20/12 to 21/12 8 2.44
Diagram 4: The upper half of the ashing is
installed under the roo ng material and not
nailed down until the chimney is installed.
This allows for small adjustments.
6) Continue to assemble pipe lengths.
Note: If an offset is necessary in the attic
to avoid obstructions, it is important
to support the vent pipe every 3 feet,
to avoid excessive stress on the
elbows, and possible separation.
Wall straps are available for this
purpose (Diagram 2).
Galvanized pipe is desirable above the roo ine
due to its higher corrosion resistance. Continue
to add pipe sections through the ashing until
the height of the vent cap meets the minimum
height requirements speci ed in Diagram 5 or
local codes. Note that for steep roof pitches,

Table of Contents

Related product manuals