EasyManua.ls Logo

Regency P36D-NG1 - Tripoli Screen Door

Regency P36D-NG1
64 pages
Print Icon
To Next Page IconTo Next Page
To Next Page IconTo Next Page
To Previous Page IconTo Previous Page
To Previous Page IconTo Previous Page
Loading...
56
Regency
®
P36D-1 Zero Clearance Direct Vent Gas Fireplace
56
REGENCY
®
OPTIONS
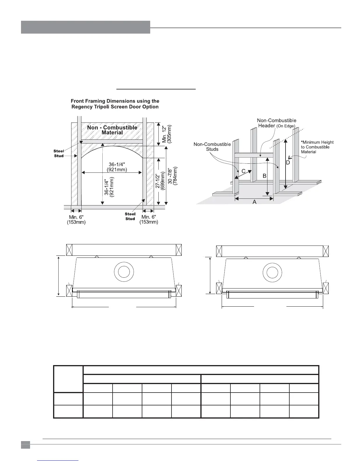
When installing the optional Tripoli Screen Door Series, a non-combustible material 12" (305mm) above the unit and 6" (153mm)
on each side must be used (see Diagram 1).
The Tripoli Screen Door Series also requires steel stud framing above and on each side of the unit (refer to Diagram 1).
Min. 361/4”
(921mm)
Steel
Stud
Steel
Stud
Min. 14-1/4" (362mm)P36
Min. 18-5/8" (473mm)P36D
Option #2:
Fireplace with 1" (25mm or more) Facing Material
Diagram 1
Option #1:
Fireplace with 1/2" (13mm) Facing Material
INSTALLATION NOTE:
The hearth material must be brought past the Tripoli frame all the way to the unit
face, so there will be no gap between the face and the actual fi replace.
* 'D' is Minimum height to combustible materials including the Minimum 2" (51mm) Top clearance to the Horizontal Vent.
OPTIONS
FRAMING DIMENSIONS
P36 P36D
ABCDABCD
1 36-1/4”
(921mm)
36-1/4”
(921mm)
14-1/4”
(362mm)
46”*
(1168mm)
36-1/4”
(921mm)
37-1/4”
(946mm)
18-5/8”
(473mm)
46”*
(1168mm)
2 36-1/4”
(921mm)
36-1/4”
(921mm)
13-3/4”
(349mm)
46”
(1168mm)
36-1/4”
(921mm)
37-1/4”
(946mm)
18-1/8”
(460mm)
46”
(1168mm)
TRIPOLI SCREEN DOOR

Table of Contents

Related product manuals