EasyManua.ls Logo

Riello 3790401 - Raccordements Électriques

Riello 3790401
Print Icon
To Next Page IconTo Next Page
To Next Page IconTo Next Page
To Previous Page IconTo Previous Page
To Previous Page IconTo Previous Page
Loading...
2903411
6
F
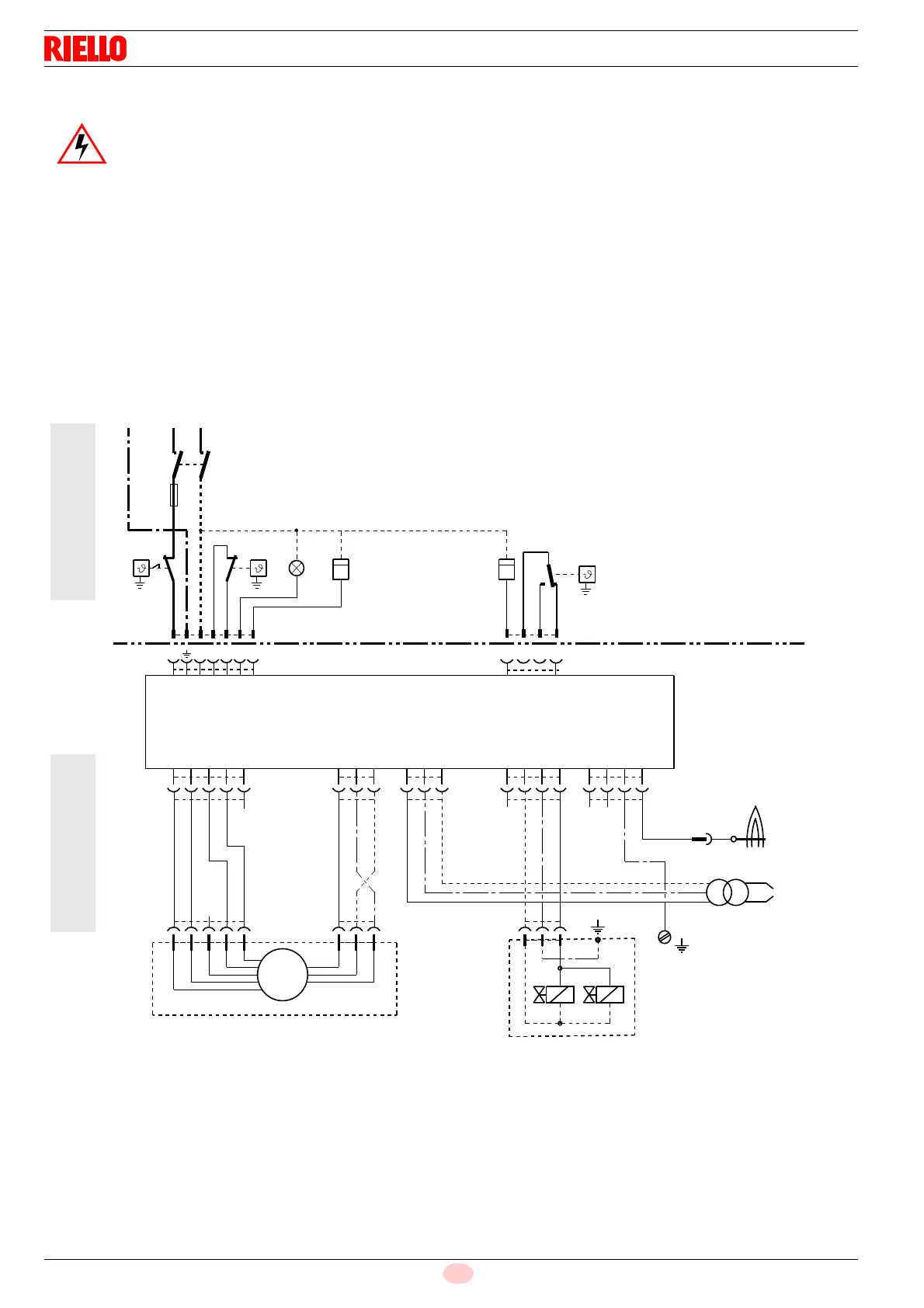
3.5 RACCORDEMENTS ÉLECTRIQUES
ESSAIS
Vérifier l'extinction du brûleur en ouvrant les thermostats (TL);
vérifier si le brûleur se met en sécurité durant le
fonctionnement en ouvrant le connecteur (CN) placé dans le fil rouge de la sonde, situé à l'extérieur de la boîte de
contrôle.
Couper l’alimentation électrique du brûleur, en appuyant sur l’interrupteur général de l’équipe-
ment.
Ne pas échanger le neutre avec la phase, respecter exactement le schéma indiqué et
effectuer un branchement à la terre valable.
La section des conducteurs doit être au min. d'1 mm
2
. (A moins d'indications différentes prévues
par les normes et les lois locales).
Les raccordements électriques effectués par l'installateur doivent respecter les normes en
vigueur dans le pays d'installation.
DANGER
A1 Coffret de sécurité électrique CM222
CN Connecteur
h1 Compteur d'heures 1ère allure
h2 Compteur d'heures 2ème allure
MV Moteur ventilateur
SB Signalisation de déblocage
SO Sonde ionisation
TB Terre brûleur
TL Thermostat limite
TR Thermostat 2ème allure
TA – Transformateur d'allumage
TS Thermostat de sécurité
T6A Fusible
V10 – V1
V11 – V2
X.. –Prise
XP.. – Fiche
XP4
B5 T6 T7 T8
T
A
S
O
C
N
M
MV
12341234
123123
X1
X2
X4 X5
X10
43215
12351234
BK
GN YE
BU
V10
V11
12
TL
PE
B4S3T2T1NL1
h1
TS
LN
SB
T6A
XP7
h2
TR
230V 50Hz
~
GN YE
GN YE
GN YE
BN
BN
BU
BU
A1
TB
D8371
À LA CHARGE
DE L’INSTALLATEUR
RÉALISÉ
EN USINE

Table of Contents

Related product manuals