EasyManua.ls Logo

Riello NXHM - Typical Applications

Riello NXHM
66 pages
Print Icon
To Next Page IconTo Next Page
To Next Page IconTo Next Page
To Previous Page IconTo Previous Page
To Previous Page IconTo Previous Page
Loading...
75
ENGLISH
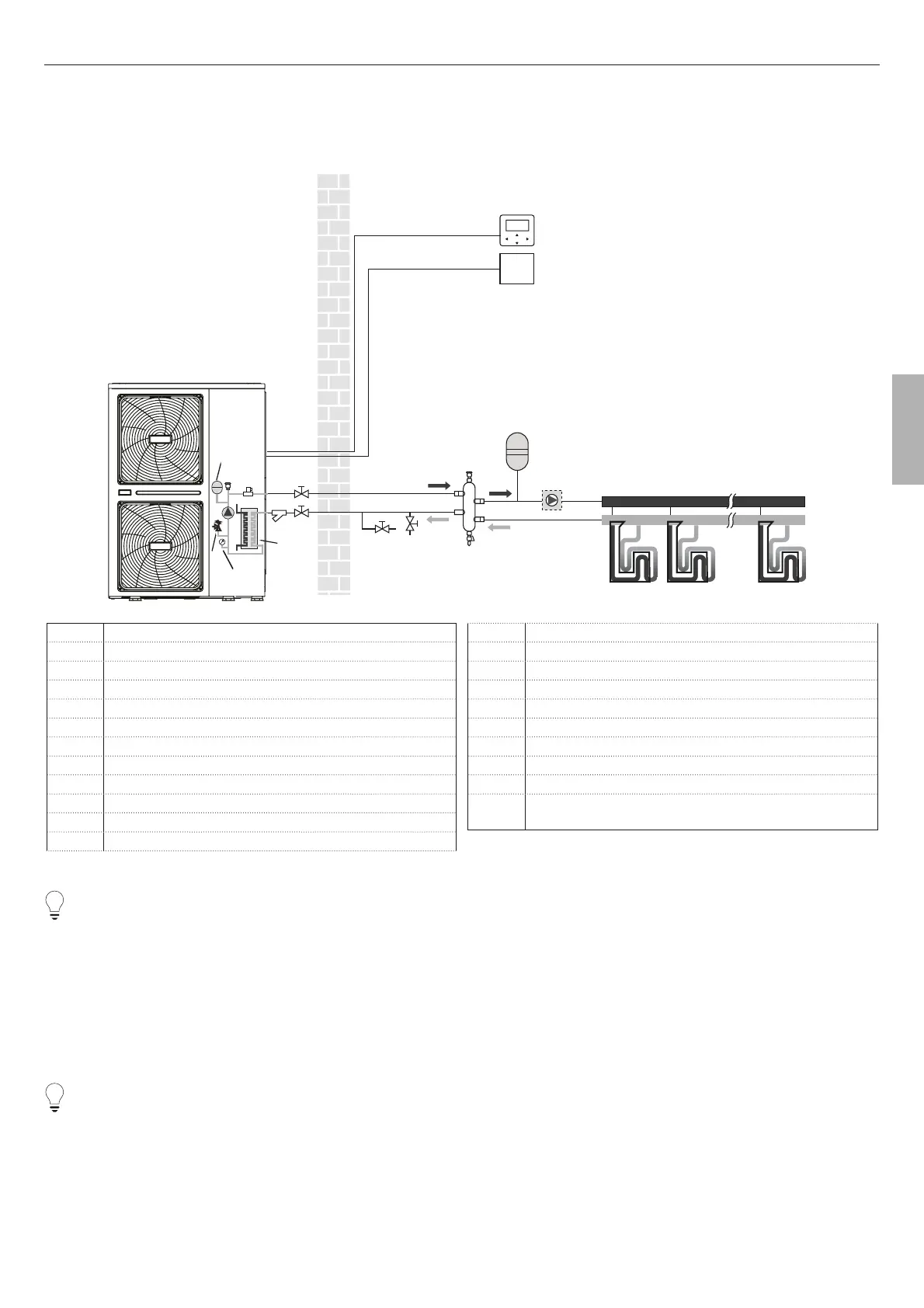
8 TYPICAL APPLICATIONS
The application examples given below are for illustration only.
8.1 Application 1
Space heating with a room thermostat connected to the unit
8.1
8.2
2
3
67
8
FHL1
----
FHL2 ---- FHLn
9
T
10
11
4
5
1
1.5
1.4
1.2
1.3
1.7
1.6
1.1
Code Assembly unit
1 Outdoor unit
1.1 Manometer
1.2 Pressure relief valve
1.3 Expansion vessel
1.4 Plate heat exchanger
1.5 Air purge valve
1.6 Flow switch
1.7 PUMP_I: Circulation pump inside the unit
2 <VKDSH¿OWHU
3 6WRSYDOYH¿HOGVXSSO\
4 Wired controller
5 5RRPWKHUPRVWDW¿HOGVXSSO\
6 'UDLQYDOYH¿HOGVXSSO\
7 )LOOYDOYH¿HOGVXSSO\
8 %DODQFHWDQN¿HOGVXSSO\
8.1 Air purge valve
8.2 Drain valve
9 ([SDQVLRQYHVVHO¿HOGVXSSO\
10 PUMP_ORXWVLGHFLUFXODWLRQSXPS¿HOGVXSSO\
11 &ROOHFWRUGLVWULEXWRU¿HOGVXSSO\
FHL
1… n
)ORRUKHDWLQJORRS¿HOGVXSSO\
NOTE
The volume of balance tank (8) should be greater than 40l. The drain valve (6) should be installed at the lowest positon of the system. PUMP_O
VKRXOGEHFRQWUROOHGE\RXWGRRUXQLWDQGFRQQHFWWRFRUUHVSRQGLQJSRUWLQWKHRXWGRRUXQLWUHIHUWR&RQQHFWLRQIRURWKHUFRPSRQHQWV
For outside circulation pump PUMP_O).
Unit operation and space heating
When a room thermostat is connected to the unit and when there is a heating request from the room thermostat, the unit will start operating to
DFKLHYHWKHWDUJHWZDWHUÀRZWHPSHUDWXUHDVVHWRQWKHXVHULQWHUIDFH:KHQWKHURRPWHPSHUDWXUHLVDERYHWKHWKHUPRVWDWVHWSRLQWLQWKHKHD-
ting mode, the unit will stop operating. The circulation pump (1.7) and (10) will also stop running. The room thermostat is used as a switch here.
NOTE
Make sure to connect the thermostat wires to the correct terminals, method B should be selected (see "For room thermostat" in 9.7.6 Connection
IRURWKHUFRPSRQHQWV7RFRUUHFWO\FRQ¿JXUHWKH52207+(50267$7LQWKH)256(59,&(0$1PRGHVHH "10.5.5 TEMP. TYPE SETTING".

Related product manuals