EasyManua.ls Logo

Riello NXHM - Page 18

Riello NXHM
66 pages
Print Icon
To Next Page IconTo Next Page
To Next Page IconTo Next Page
To Previous Page IconTo Previous Page
To Previous Page IconTo Previous Page
Loading...
80
ENGLISH
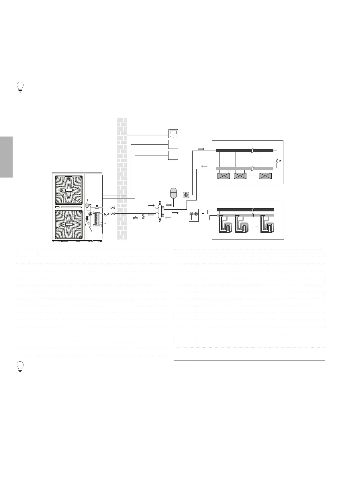
8.5 Application 5
Dual setpoint function application with two room thermostat connect to the outdoor unit.
6SDFHKHDWLQJZLWKWZRURRPWKHUPRVWDWDSSOLFDWLRQWKURXJKÀRRUKHDWLQJORRSVDQGIDQFRLOXQLWV7KHÀRRUKHDWLQJORRSVDQGIDQFRLO
XQLWVUHTXLUHGLႇHUHQWRSHUDWLQJZDWHUWHPSHUDWXUHV
7KHÀRRUKHDWLQJORRSVUHTXLUHDORZHUZDWHUWHPSHUDWXUHLQKHDWLQJPRGHFRPSDUHGWRIDQFRLOXQLWV7RDFKLHYHWKHVHWZRVHWSRLQWV
DPL[LQJVWDWLRQLVXVHGWRDGDSWWKHZDWHUWHPSHUDWXUHDFFRUGLQJWRUHTXLUHPHQWVRIWKHÀRRUKHDWLQJORRSV7KHIDQFRLOXQLWVDUH
GLUHFWO\FRQQHFWHGWRWKHXQLWZDWHUFLUFXLWDQGWKHÀRRUKHDWLQJORRSVDUHDIWHUWKHPL[LQJVWDWLRQ7KHPL[LQJVWDWLRQLVFRQWUROOHGE\
WKHXQLWRUE\DQH[WHUQDOFRQWURO¿HOGVXSSO\
7KHRSHUDWLRQDQGFRQ¿JXUDWLRQRIWKH¿HOGZDWHUFLUFXLWLVWKHUHVSRQVLELOLW\RIWKHLQVWDOOHU
:HRQO\RႇHUDGXDOVHWSRLQWFRQWUROIXQFWLRQ7KLVIXQFWLRQDOORZVWZRVHWSRLQWVWREHJHQHUDWHGGHSHQGLQJRQWKHUHTXLUHGZDWHU
WHPSHUDWXUHÀRRUKHDWLQJORRSVDQGRUIDQFRLOXQLWVDUHUHTXLUHG0RUHGHWDLOVUHIHUWR¿HOGVHWWLQJ52207+(50267$7
NOTE
7KHZLULQJRIURRPWKHUPRVWDW$IRUIDQFRLOXQLWVDQG%IRUÀRRUKHDWLQJORRSVVKRXOGIROORZPHWKRG&DVGHVFULEHGLQ&RQQHFWLRQ
IRURWKHUFRPSRQHQWV)RUURRPWKHUPRVWDW7KHWKHUPRVWDWZKLFKFRQQHFWWRSRUW&LQWKHRXWGRRUXQLWVKRXOGEHSODFHGRQWKH]RQHZKHUH
ÀRRUKHDWLQJORRSVLVLQVWDOOHG]RQH%WKHRWKHURQHFRQQHFWWRSRUW+VKRXOGEHSODFHGRQWKH]RQHZKHUHIDQFRLOXQLWVDUHLQVWDOOHG]RQH$
2
3
67
8.1
8.2
8
10
9
11
11
FHL1 FHL2 FHLn
FCUnFCU2FCU1
17
T
T
4
5B
5A
23.1
23
23.2
24
A
B
1
1.5
1.4
1.2
1.3
1.7
1.6
1.1
Code Assembly unit
1 Outdoor unit
1.1 Manometer
1.2 Pressure relief valve
1.3 Expansion vessel
1.4 Plate heat exchanger
1.5 Air purge valve
1.6 Flow switch
1.7 PUMP_I: Circulation pump inside the unit
2 <VKDSH¿OWHU
3 6WRSYDOYH¿HOGVXSSO\
4 Wired controller
5A 5RRPWKHUPRVWDWIRU]RQH¿HOGVXSSO\
5B 5RRPWKHUPRVWDWIRU]RQH¿HOGVXSSO\
6 'UDLQYDOYH¿HOGVXSSO\
7 )LOOYDOYH¿HOGVXSSO\
8 %DODQFHWDQN¿HOGVXSSO\
8.1 Air purge valve
8.2 Drain valve
9 ([SDQVLRQYHVVHO¿HOGVXSSO\
10 PUMP_ORXWVLGHFLUFXODWLRQSXPS¿HOGVXSSO\
11 &ROOHFWRUGLVWULEXWRU¿HOGVXSSO\
17 Bypass valve ¿HOGVXSSO\
23 Mixing station ¿HOGVXSSO\
23.1 PUMP_C: zone 2 pump¿HOGVXSSO\
23.2 SV3: 3-way valve¿HOGVXSSO\
24 TW2: ]RQHZDWHUÀRZWHPSHUDWXUH (accessory)
FHL
1… n
)ORRUKHDWLQJORRS¿HOGVXSSO\
FCU
1… n
)DQFRLOXQLWV¿HOGVXSSO\
NOTA
The volume of balance tank (8) should be greater than 40l. The drain valve (6) should be installed at the lowest positon of the system.
PUMP_O (10) and PUMP_C (23.1) should be controlled by outdoor unit and connect to corresponding port in the outdoor unit (refer to
"9.7.6 Connection for other components").
7KHDGYDQWDJHRIWKHGXDOVHWSRLQWFRQWUROLVWKDWWKHKHDWSXPSZLOOFDQRSHUDWHDWWKHORZHVWUHTXLUHGZDWHUÀRZWHPSHUDWXUHZKHQ
RQO\ÀRRUKHDWLQJLVUHTXLUHG+LJKHUZDWHUÀRZWHPSHUDWXUHVDUHRQO\UHTXLUHGLQFDVHIDQFRLOXQLWVDUHRSHUDWLQJ7KLVUHVXOWVLQ
better heat pump performance.
Pump operation and space heating
PUMP_I
(1.7) and
PUMP_O
ZLOORSHUDWHZKHQWKHUHLVUHTXHVWIRUKHDWLQJIURP$DQGRU%
PUMP_C
(23.1) will operate only when
WKHUHLVUHTXHVWIRUKHDWLQJIURP%7KHRXWGRRUXQLWZLOOVWDUWRSHUDWLQJWRDFKLHYHWKHWDUJHWZDWHUÀRZWHPSHUDWXUH7KHWDUJHWZDWHU
leaving temperature depends on which room thermostat is requesting heating. When the room temperature of both zones is above the
thermostat set point, the outdoor unit and pump will stop operating.

Related product manuals