EasyManua.ls Logo

Rockwell Automation Allen-Bradley SMC-Flex 150 - Page 39

Rockwell Automation Allen-Bradley SMC-Flex 150
140 pages
Print Icon
To Next Page IconTo Next Page
To Next Page IconTo Next Page
To Previous Page IconTo Previous Page
To Previous Page IconTo Previous Page
Loading...
Installation 2-7
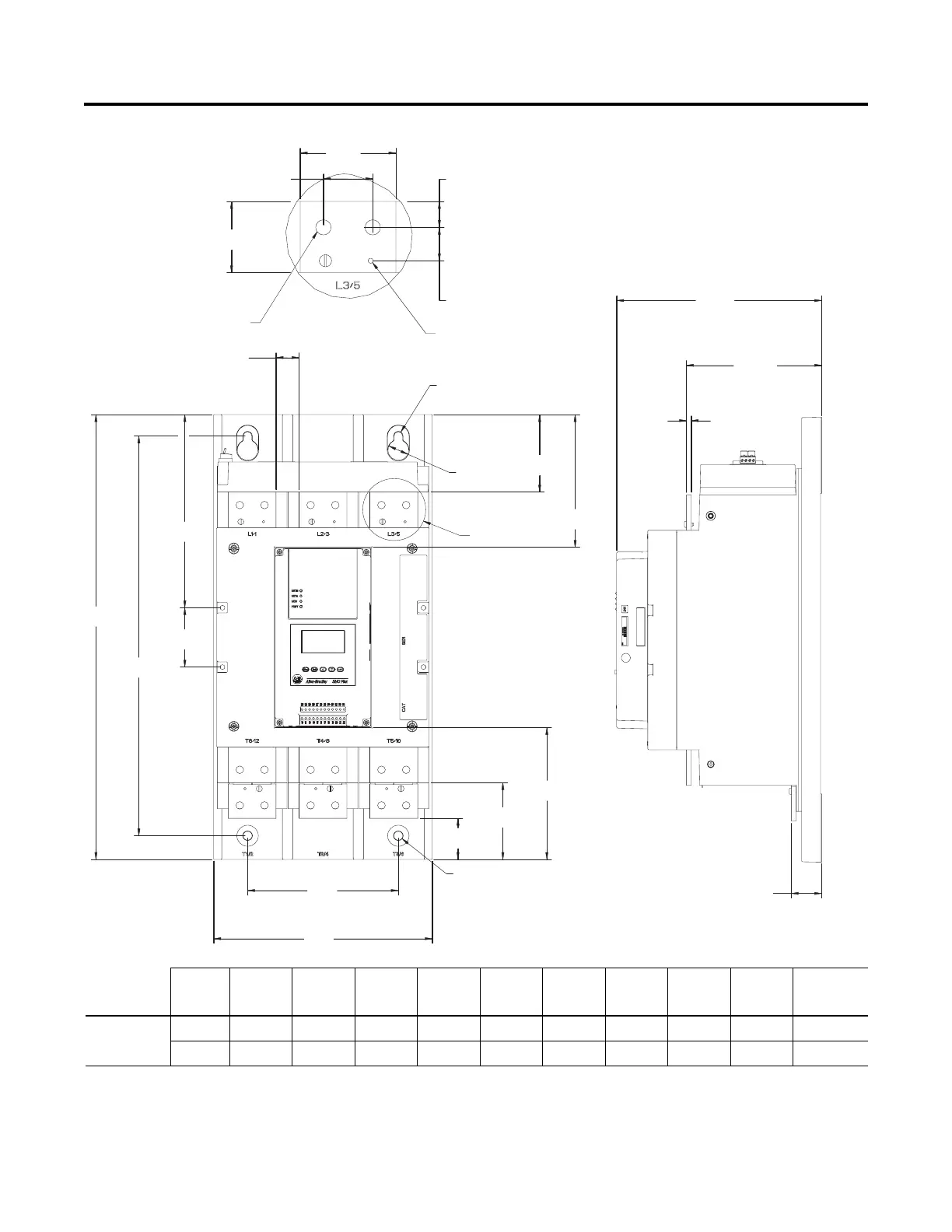
Figure 2.3 Dimensions: 317…480 A Controllers
All dimensions are approximate and are not intended for manufacturing purposes. Consult your
local Allen-Bradley distributor for complete dimension drawings.
Unit
A
Width
B
Height
C
Depth
DEFGHI
Approx.
Ship. Wt.
317…480 A
Controller
mm 290 600 276.5 200 539.18 182.25 104.5 55.5 103.5 45.8 kg
in. 11.42 23.62 10.89 7.87 21.23 7.18 4.11 2.19 4.07 101 lb.
30.5
30.5
(1.20)
(1.20)
Ø
Ø
12.522
12.522
(.49)
(.49)
Ø
Ø
27.5
27.5
(1.08)
(1.08)
Ø
Ø
13.022
13.022
(.51)
(.51)
178.938
178.938
(7.04)
(7.04)
177.938
177.938
(7.01)
(7.01)
260.5
260.5
(10.26)
(10.26)
80
80
(3.15)
(3.15)
SEE DETAIL
SEE DETAIL
BB
BB
32.74
32.74
(1.29)
(1.29)
63.5
63.5
(2.50)
(2.50)
48
48
(1.89)
(1.89)
17.48
17.48
(.68)
(.68)
22.5
22.5
(.89)
(.89)
DETAIL
DETAIL
BB
BB
SCALE
SCALE
1.000
1.000
#8-32 UNC-2B
#8-32 UNC-2B
M12 x 1.75
M12 x 1.75
B
B
E
E
D
D
A
A
H
H
I
I
G
G
40.9
40.9
(1.6)
(1.6)
6.35
6.35
(.25)
(.25)
C
C
F
F

Table of Contents

Related product manuals