EasyManua.ls Logo

SAME SILVER 100.6 - Page 151

Default Icon
470 pages
Print Icon
To Next Page IconTo Next Page
To Next Page IconTo Next Page
To Previous Page IconTo Previous Page
To Previous Page IconTo Previous Page
Loading...
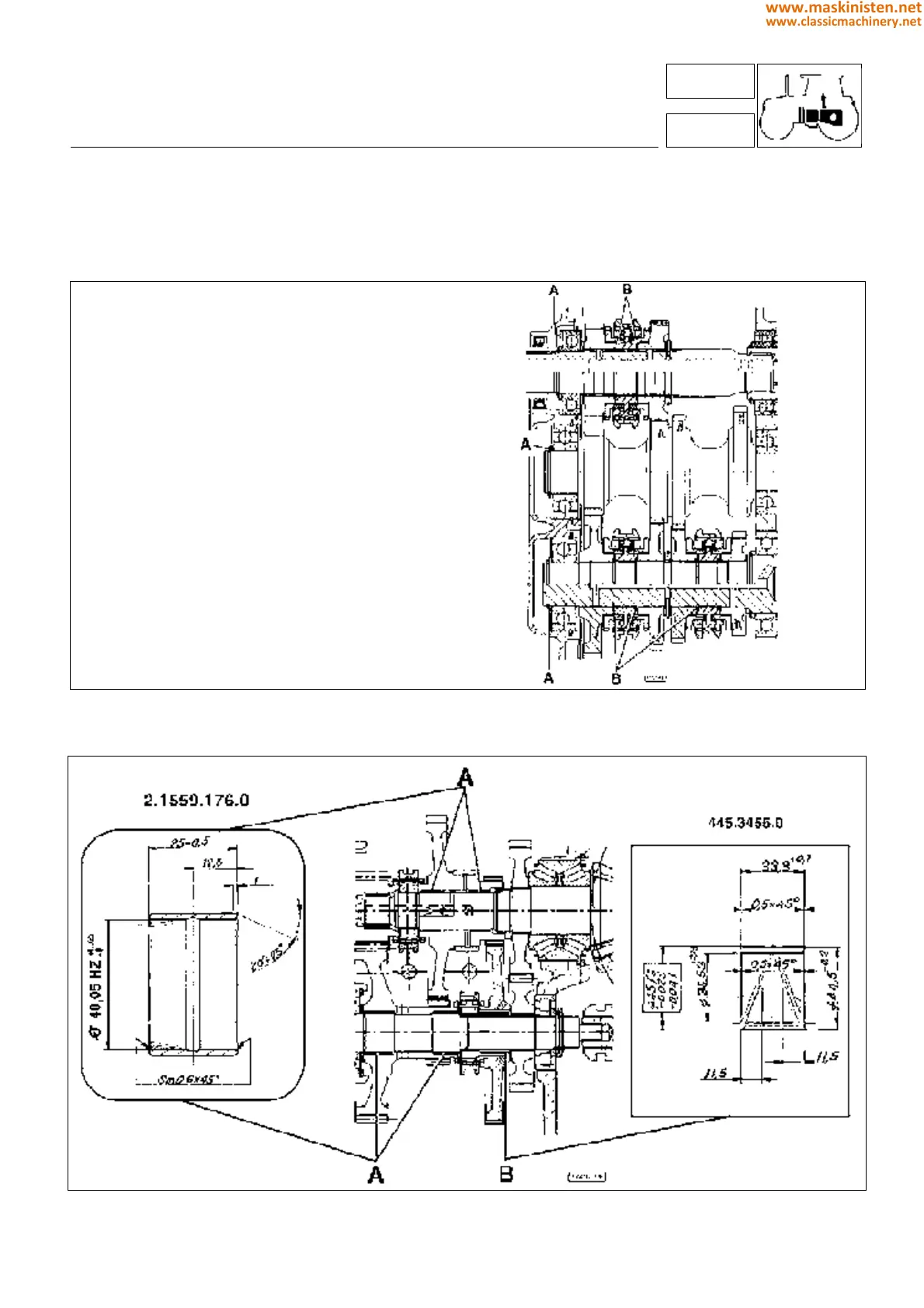
INSTALLING CIRCLIPS OF VARIABLE THICKNESS
Shims A are to be selected on assembly from those indicated in figure 28, so that all bearing play is eliminated when the circlips
are fitted in their respective seatings.
The synchroniser hubs are held in position on the shaft by circlips B; select circlips of an appropriate thickness from those indicated
in figure 28 so that all synchroniser hub play is eliminated.
Fig. 28 - Positioning the gearbox shaft shims and synchroniser circlips.
NOMINAL DIMENSIONS OF GEARBOX BUSHES
Fig. 29 - Bushes installed in the gears of the reduction gear unit.
transmission
primary shaft - secondary shaft - reduction gear unit
3
32-33-34
SPACER
A
2.1599.414 0 40x50x3
2.1599.423.0 40x50x2,9
2.1529.424.0 40x50x2,8
2.1599.425.0 40x50x2,7
SNAP RING
B
2.1422.032.7 45x1,5
2.1499.059.0 45x1,8
151
www.maskinisten.net
www.classicmachinery.net

Table of Contents

Related product manuals