EasyManua.ls Logo

Selectronic SP PRO - Introduction; Warranty and Manual Use

Selectronic SP PRO
22 pages
Print Icon
To Next Page IconTo Next Page
To Next Page IconTo Next Page
To Previous Page IconTo Previous Page
To Previous Page IconTo Previous Page
Loading...
IN0016 Revision 12 Part # 004573 6 of 22
SP PRO Three Phase
Installation Notes
POWER PERFORMANCE PASSION
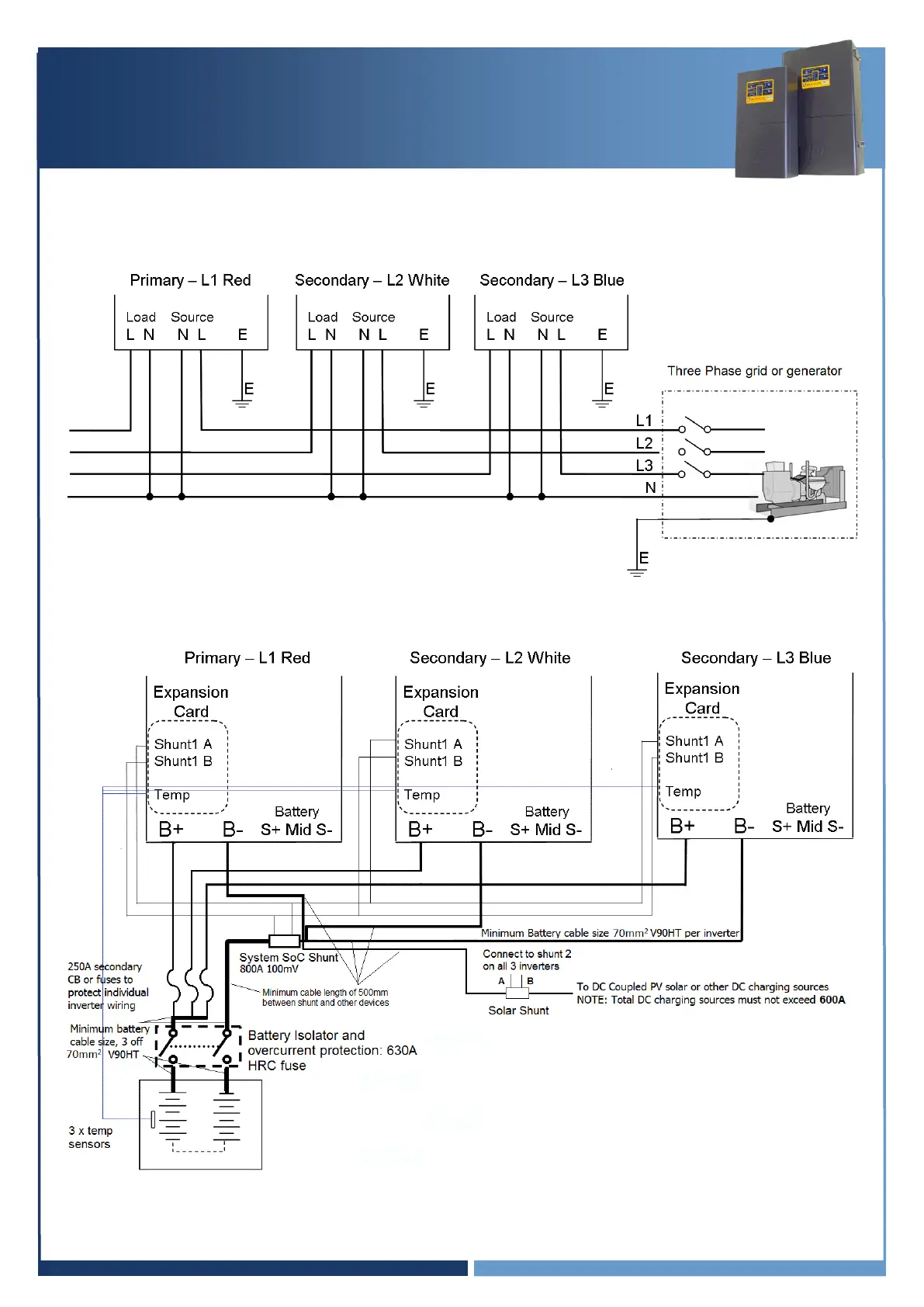
Wiring Overview
The following is an overview of the connections which form part of the SP PRO three phase
system.
SP PRO Three Phase AC wiring layout
SP PRO Three Phase main DC wiring layout

Other manuals for Selectronic SP PRO

Related product manuals