EasyManua.ls Logo

Sharp GB-X18JR - Page 43

Sharp GB-X18JR
80 pages
Print Icon
To Next Page IconTo Next Page
To Next Page IconTo Next Page
To Previous Page IconTo Previous Page
To Previous Page IconTo Previous Page
Loading...
I-15
ITALIANO
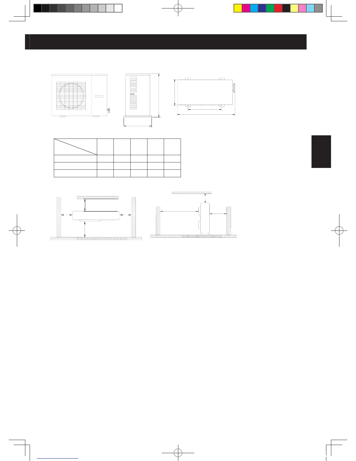
Articolo
Modello
A B C D E
GU-X18JR
848 320 540 548 286
GU-X24JR 913 378 680 548 340
GU-X36JR 1032 412 1250 572 378
E
C
A
D
B
Precauzioni per l’installazione dell’unità esterna
Per garantire il corretto funzionamento dell’unità, scegliete il luogo di installazione secondo quanto
segue:
Lunità esterna deve essere installata in modo che l’aria scaricata dalla stessa non torni indietro e
inmodochevisiaspazioasufcienzaintornoall’unitàpereventualiriparazioni.
Il luogo di installazione deve avere una buona ventilazione in modo che l’unità esterna possa
aspirareerilasciareariaasufcienza.Assicuratevichenoncisianoostacoliperl’entratael’usci-
ta dell’aria dall’unità esterna. Se sono presenti ostacoli che bloccano l’entrata o l’uscita dellaria,
rimuoveteli.
Il luogo di installazione deve essere abbastanza solido da poter sostenere il peso dell’unità ester-
na; inoltre, tale luogo deve avere proprietà antivibrazioni e di isolamento dei rumori. Assicuratevi
che l’aria e i rumori dall’unità non disturbino i vicini.
Evitate che l’unità sia esposta alla luce diretta del sole. Si consiglia di installare un pannello di ri-
parazione come protezione dal sole.
Il luogo di installazione deve garantire il drenaggio dellacqua piovana e scongelata.
Il luogo di installazione deve garantire che l’unità non venga ricoperta dalla neve e non deve es-
sere esposto a nebulizzazione di olio o scarichi.
Il luogo di installazione deve essere un luogo nel quale l’uscita dell’aria di scarico non sia diretta
verso forti venti.
MIN. 1.000
MIN. 2.000
MIN. 500
MIN. 2.000
MIN. 500
MIN. 500
MIN. 500
Unità di misura della lunghezza: mm
Unità esterna
Modello
GREE_duct_ita_1022.indd 15 08.10.27 3:33:40 PM

Table of Contents

Related product manuals