EasyManua.ls Logo

SICK DL100 Pro PROFINET HighFeature - Dimensional Drawing

SICK DL100 Pro PROFINET HighFeature
96 pages
Print Icon
To Next Page IconTo Next Page
To Next Page IconTo Next Page
To Previous Page IconTo Previous Page
To Previous Page IconTo Previous Page
Loading...
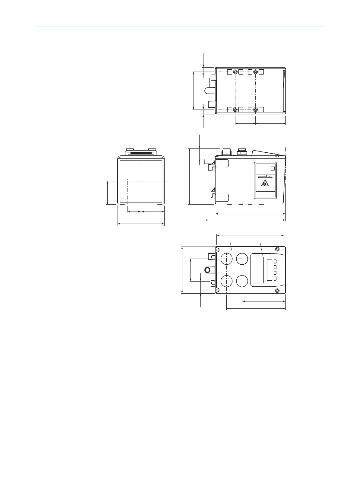
13.9 Dimensional drawing
34.3
(1.35)
20
(0.79)
34.7
(1.37)
69.4 (2.73)
6.7
(0.26)
6.7
(0.26)
56 (2.20)
30
(1.18)
44.6
(1.76)
15.2
(0.60)
82.5 (3.25)
104.5 (4.11)
119.9 (4.72)
100.2 (3.94)
18.2
(0.72)
69.4 (2.73)
33 (1.30)
64.6 (2.54)
87.6 (3.45)
1 2
3 4
3
4
1 1
1 1
5
6
6
2
8
7
5
Figure 24: Device dimensions; unit: mm (inch), decimal separator: period
1
Mounting thread M5, 10 mm depth
2
Device zero point
3
Sender optical axis
4
Receiver optical axis
5
Hole for the star grip screw of the optional alignment bracket
6
Latch hook for alignment bracket
7
Electrical connection
8
Display and control elements
13 TECHNICAL DATA
88
O P E R A T I N G I N S T R U C T I O N S | DL100 Pro PROFINET HighFeature 8021823/19HC/2021-10-15 | SICK
Subject to change without notice

Table of Contents

Related product manuals