EasyManua.ls Logo

SICK Flow-X - Page 48

SICK Flow-X
54 pages
Print Icon
To Next Page IconTo Next Page
To Next Page IconTo Next Page
To Previous Page IconTo Previous Page
To Previous Page IconTo Previous Page
Loading...
48
8015675/1EEU/2021-12| SICKO P E R A T I N G I N S T R U C T I O N S | Flow-X
Subject to change without notice
7 APPENDIX
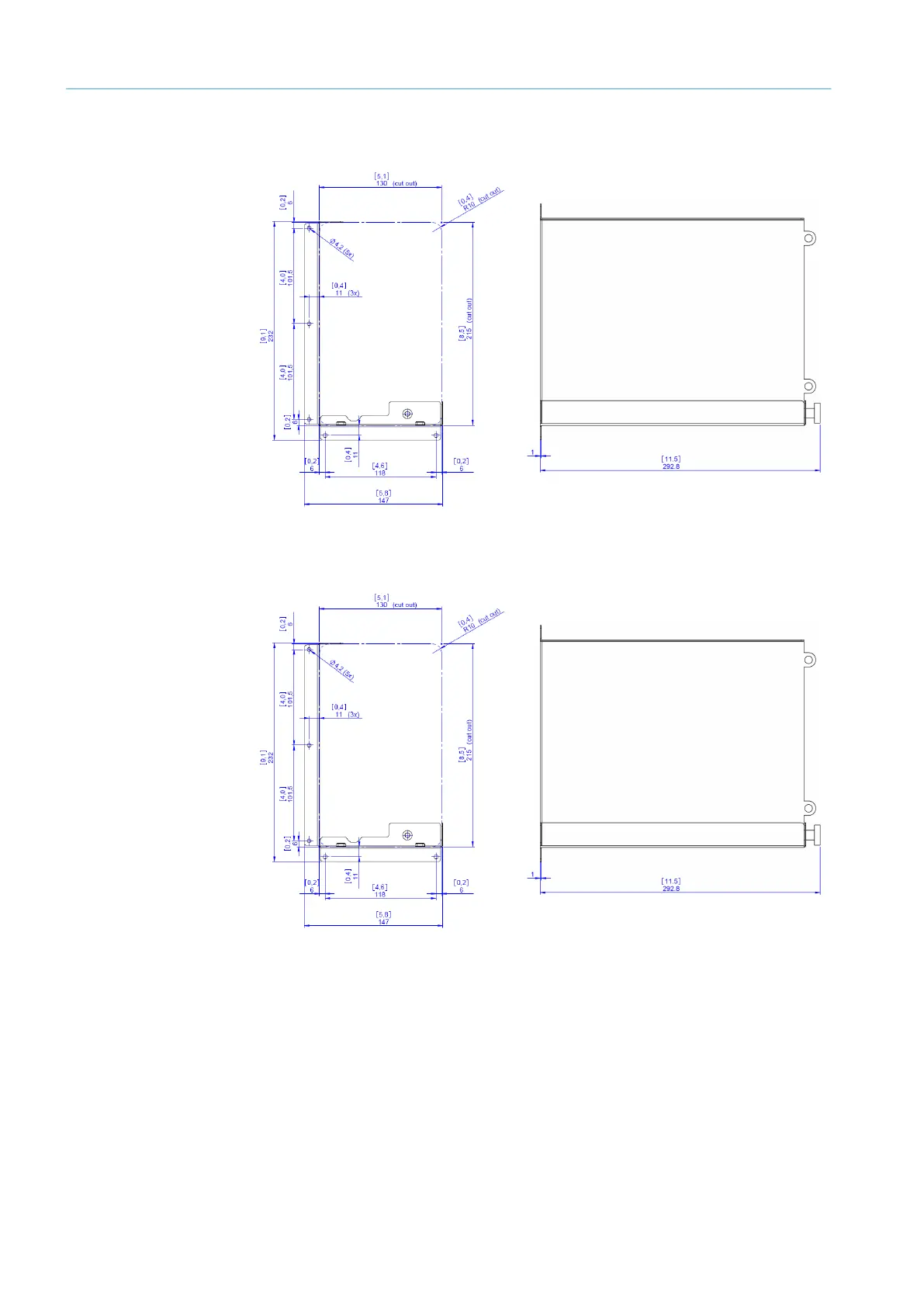
Fig. 43: Flow-X/P wall bracket dimensions
Fig. 44: Flow-X/C wall bracket dimensions
Side view
Side view

Table of Contents