EasyManua.ls Logo

Siemens Midimaster Eco - Page 141

Siemens Midimaster Eco
183 pages
To Next Page IconTo Next Page
To Next Page IconTo Next Page
To Previous Page IconTo Previous Page
To Previous Page IconTo Previous Page
Loading...
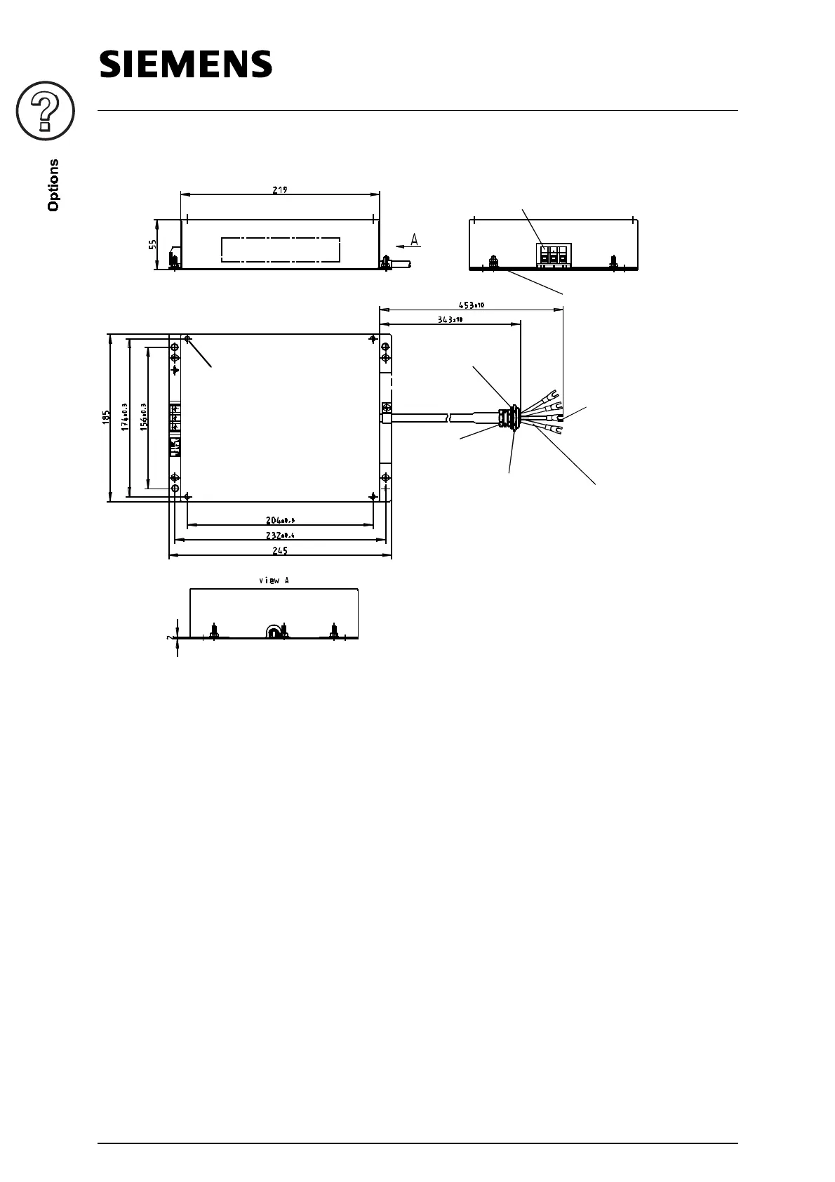
ECO REFERENCE MANUAL
15-10
6SE3290-0DC87-0FA4, 6SE3290-0DC87-0FB4
Rating Label
Inverter mounting holes x 4
M5 (thread depth max. 5mm)
Tightening Torque 3.0Nm
4 x Fixing holes
5.8mm
Terminal 4 mm
2
Rated Torque of screw 1.5 Nm
Earth Stud, M4
Rated Torque 1.5 Nm
Reducer
Pg16 - Pg9
Cable Gland Pg9
Fork crimp
Stud size 3.5mm
Inside wire crimp diameter 3.4mm
Hexagonal flat nut Pg16
Rated torque 7.0 Nm
Litz wire AWG12 - Style 1015

Table of Contents

Other manuals for Siemens Midimaster Eco

Related product manuals