EasyManua.ls Logo

Siemens SIMODRIVE POSMO A - Page 274

Siemens SIMODRIVE POSMO A
295 pages
Print Icon
To Next Page IconTo Next Page
To Next Page IconTo Next Page
To Previous Page IconTo Previous Page
To Previous Page IconTo Previous Page
Loading...
C
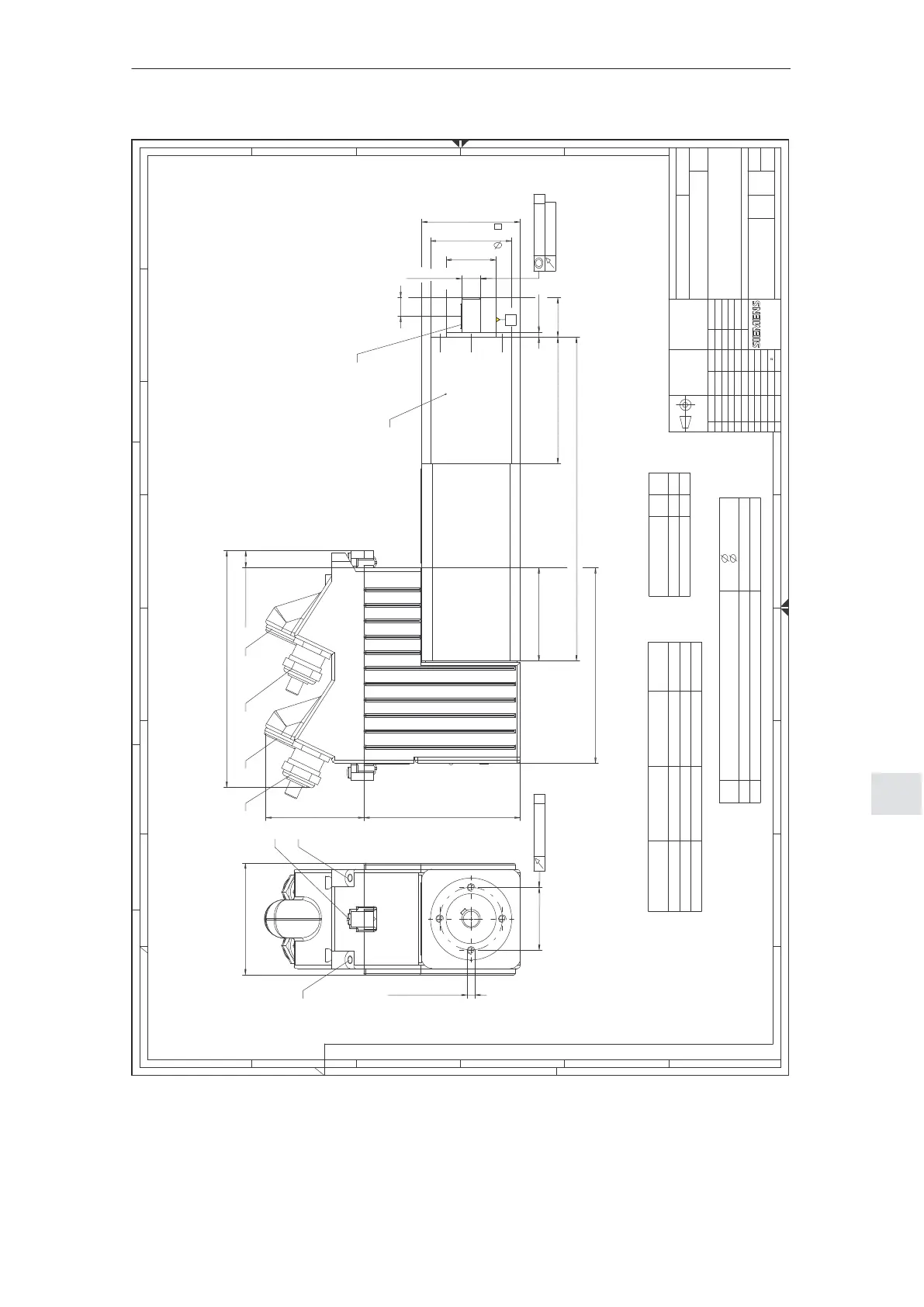
C.1 Dimension drawings for SIMODRIVE POSMO A – 75W
C-273
E Siemens AG 2013 All Rights Reserved
SIMODRIVE POSMO A User Manual (POS1) – 08/2013 Edition
PRO/E–CAD
* Pro/E *
2
Belonging to this:
1 3 4 5
E
D
C
B
A
1 2 3
CAD–Drawing
Manual modification
prohibited
4 5 6 7 8
E
D
C
B
A
F
First angle
projection
DIN 6
124± 0,5
4.882 ± .019[]
71± 1
2.795 ± .039[]
40± 0,1
1.575 ± .003[]
0,15 [.005] A
M5, 7.5 deep
[M5, 0.295 deep]
59± 0,7
2.323 ± .027[]
63± 0,5
2.480 ± .019[]
52± 0,3
2.047 ± .011[]
3
.118[]
25± 1
.984 ± .039[]
12
[.472]
L
2
± 1
[L
2
± .039]
L
1
± 2
[L
1
± .079]
12
+0,008
–0,003
.4724
+.0003
–.0001[]
32
–0,039
1.260
–.001[]
100± 1
3.937 ± .039[]
63± 1
[2.480 ± 0.039]
147± 1
[5.787 ± 0.039]
11 ± 0,5
.433 ± .019[]
1 175 [6.890] 50 [1.969] BG 63x55
2 190,5 [7.500] 65,5 [2.579] BG 63x55
3 205,5 [8.091] 80,5 [3.169] BG 63x55
Getriebestufen
Gearbox stages
L
mm [inch]
L
mm [inch]
Motor–Typ
Motor type
M4 1.8 16
M5 3.0 26
Tightening torque
Tightening torque
Nm inlb
B Pg 11 dummy plugs, Type 514/11 Pflitsch –––
A Pg13.5 threaded joint HSK M EMV Hummel 12,0–6,0 [.472–.236]
Pg–Verschraubung Pg threaded joint
Type Type
cable
cable
General tolerance . .
Doc. number: A5E00269786
ISO 2768–mk . .
Scale: 1:1
kg/piece: .
Tolerance . .
ISO 8015 .
A2
.
Tolerances: Surface: Material: Sheet size
Date: 05.04.04
SIMODRIVE POSMO A – 75W
Author: Rosenboom
Check: Hecht
with planetary gearbox
Dep.: MC RD45 Name:
Site: Erlangen F80
Type/MLFB: 6SN2132–.....–....
a5e00269786 MB aa
1
Sheet:
A&D
1
aa O. No. 01.06.04 M
Article: Doc.type Revision Sheets:
Rev. Modification Date Name Replacement for/replaced by:
Spring washer 4x6.5 DIN 6888, Series A
Curved washer .157x.256
Gearboxes
Gearbox
0,06 [.002] A
0,03 [.001]
A B A B
M4
M5
M5
A
The reproduction, transmission or use of this document or its
contents is not permitted without express written authority.
Offenders will be liable for damages. All rights, including rights
created by patent grant or registration of a utility model or design,
are reserved.
Weitergabe sowie Vervielfältigung dieser Unterlage, Verwer–
tung und Mitteilung ihres Inhalts nicht gestattet, soweit nicht
ausdrücklich zugestanden. Zuwiderhandlungen verpflichten
zu Schadenersatz. Alle Rechte vorbehalten, insbesondere für
den Fall der Patenterteilung oder GM–Eintragung.
Confie a titre de secret d’ entreprise. Tous droits reserves
Confiado como secreto industial. Nos reservamos todos los derechos
Comunicado como segredo empresarial. Reservados todos os direitos
Fig. C-2 Dimension drawing: SIMODRIVE POSMO A – 75 W with planetary gearbox
C Dimension Drawings
02.9908.0308.04

Table of Contents

Other manuals for Siemens SIMODRIVE POSMO A

Related product manuals