EasyManua.ls Logo

Siemens SIMODRIVE POSMO A - Page 279

Siemens SIMODRIVE POSMO A
295 pages
Print Icon
To Next Page IconTo Next Page
To Next Page IconTo Next Page
To Previous Page IconTo Previous Page
To Previous Page IconTo Previous Page
Loading...
C
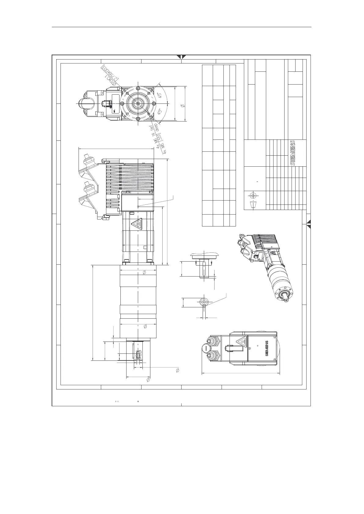
C.2 Dimension drawings for SIMODRIVE POSMO A – 300W
C-278
E Siemens AG 2013 All Rights Reserved
SIMODRIVE POSMO A User Manual (POS1) – 08/2013 Edition
* Pro/E *
1
The reproduction, transmission or use of this document or its
contents is not permitted without express written authority.
Offenders will be liable for damages. All rights, including rights
created by patent grant or registration of a utility model or design,
are reserved.
E
2 3 4
D
C
The reproduction, transmission or use of this document
tung und Mitteilung ihres Inhalts nicht gestattet, soweit nicht
ausdrücklich zugestanden. Zuwiderhandlungen verpflichten
zu Schadenersatz. Alle Rechte vorbehalten, insbesondere für
den Fall der Patenterteilung oder GM–Eintragung.
Confi titre de secret d’entreprise. Tous droits r servs.
Confiado como secreto industial. Nos reservamos todos los derechos
Comunicado como segredo empresarial. Reservados todos os direitos
B
A
CAD–Drawing
Manual modification
prohibited
1 2 3 4 5 6 7 8
A
B
C
D
PRO/E–CAD
Belonging to this:
F
First angle
projection
DIN 6
C
C
m
k
172
[6.772]
36
1.417[]
72
2.835[]
45
–0,2
1.772
–.007[]
l
84
3.307[]
16
.630[]
k620
+0,015
+0,002
.7874
+.0005
+.0001[]
M6
h655
–0,019
2.1654
–.0007[]
9
.354[]
84
3.307[]
178,6
7.030[]
80
3.150[]
36
1.417[]
4,5
.177[]
22,5
.886[]
6
.236[]
84
3.307[]
. .
Doc. number: A5E00282014 with 3 st. g.
. .
Scale: 1 :2
kg/piece: .
Flanges and shaft tolerance
acc. to DIN 42955
flanges and shaft tolerance
acc. to DIN 42955
not toleranced si ze: ± 1 mm
not toleranced size: ± 1 mm
. .
.
A3
.
Surface: Material:
Sheet size
Date: 26.11.03
Dimension drawing Posmo A 300W
mit 3–stufigem Getriebe
Author: Nesmiyan
Check: Hecht
dimension sheet Posmo A 300W
with 3–stage gearbox
Dep.: MC RD45 Name:
Site: Erlangen F80
Type/MLFB: 6SN2155
A5E00282014 MB AO
1
Sheet:
A&D
1
aa O. No. 08.06.04 Nesm Article: Doc.type Revision Sheets:
Rev. Modification Date Name
Replacement for/replaced by:
Ausf./
version
Type Getriebe/gearbox Achshöhe/
shaft height
Gewicht / weight Länge / length Schutzart/
Degree of protection
Gearbox ratios
ratios
ohne Bremse/
without brake
mit Bremse/
with brake
klm
mm [inch] kg [lb] mm [inch]
01 6SN2155
3–stufig/
3–stage
120 36[1.417] 8,2[18.1] 8,3[18.3] 254[10] 228[8.976] 140[5.512] IP54
Ausführung mit Paßfeder /
version with key
Thread M5x10 (3x) for lifting eye
and for support /
thread M5x10 (M5x.394) (3x) useful
for lifting eye and support
1:4
C–C
Dimensions acc. to DIN 6885 Sh.1 /
Dimensions acc. to DIN 6885 Sh.1
Fig. C-6 Dimension drawing: SIMODRIVE POSMO A – 300W with planetary gearbox (3–stage)
C Dimension Drawings
02.9908.04

Table of Contents

Other manuals for Siemens SIMODRIVE POSMO A

Related product manuals