EasyManua.ls Logo

Sony HCD-GN88D - Page 27

Sony HCD-GN88D
114 pages
Print Icon
To Next Page IconTo Next Page
To Next Page IconTo Next Page
To Previous Page IconTo Previous Page
To Previous Page IconTo Previous Page
Loading...
HCD-GN88D
2727
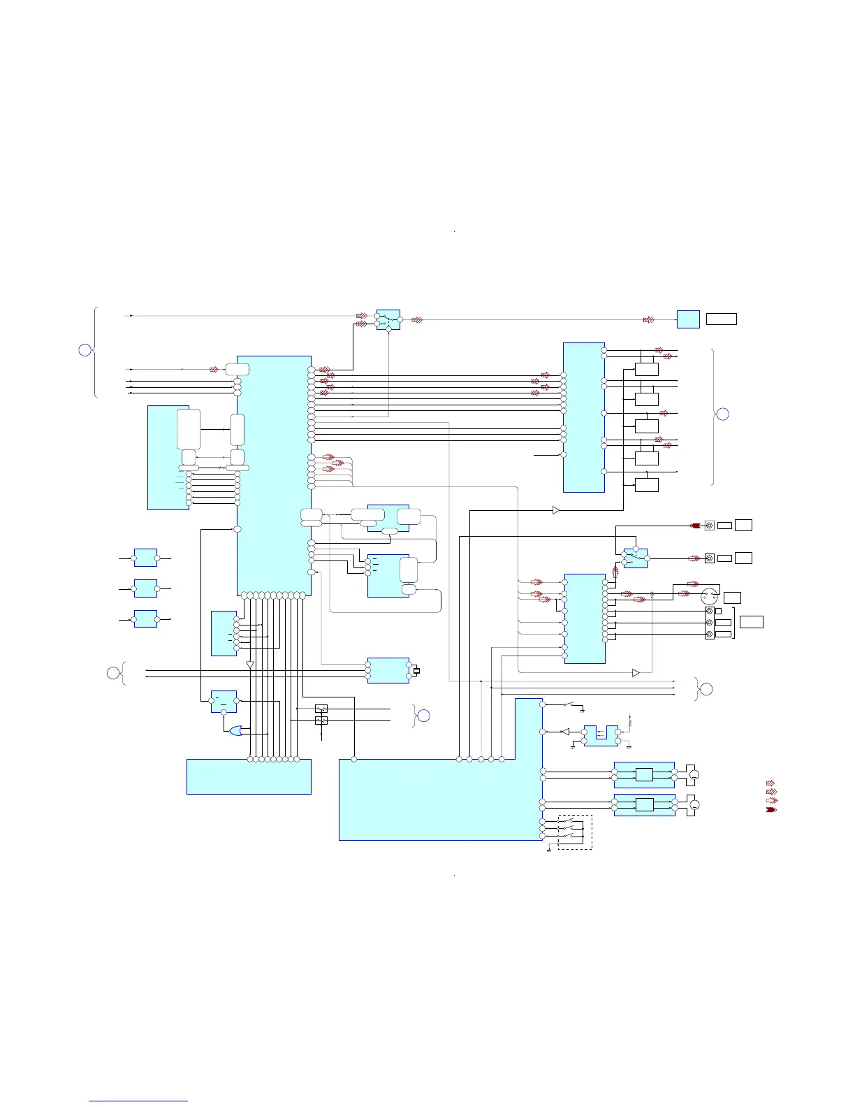
– DVD DSP (2/2) Section–
D-SENS 41
EJECTSW
Q731
S751
(LEVER)
D+3.3V
M-REQ
VMUTE
VMUTE2
42
3
4
1
2
IC731
TABLE SENSOR
IC901 (2/2)
MECHANISM
CONTROLLER
IC501 (1/5)
SYSTEM
CONTROL
131VDAC 0
V
C
Y
CB/R
CR/B
I2C-DA
D +3.3V
I2C-CL
IIC-DATA
IIC-CLK
SYS-RESET
156IEC958
109CDSEL
125VDAC 2
128VDAC 1
122VDAC 3
34,33,31
29 56
119
HA1-22
HA4-22
HA1-3
HA1-3
HAD0-15
VDAC 4
WIDE
107VS
190ALE
195HCS0
25WEH.UDS
27HEL.LDS
IC207
DVD SYSTEM PROCESSOR
IC216
ADDRESS LATCH
184 HIRQ1DRVIRQ
36
191 RST_SPCRST
38
DRVRDY
37
161 I2C DAI2C_SIO
78
160 I2C CLI2C_SCL
79
202 RESET
185 DRVCLKSCK_ZIVA
35
186 DRVTXSO_ZIVA
34
187 DRVRXSI_ZIVA
33
162 CS (ZIVA_E2P)
165 WRITE_CTRL (ZIVA_E2P)
116 HIRQ2
188 DRVRDY
D+3.3V
AUDIO
+5V
CS_ZIVA
32
DVD-MUTE
(DVD-A-MUTE)
25
VMUTE
33
M-REQ
34
VMUTE2
32
VIDEO OUT
81
SYS-RESET
40
3MO1
MO2
MO3
27MM
768FS
768FS
768FS-2
768FS-1
13
10
IC906
CLOCK GENERATOR
6
CLR
CKQ
3 1
2
1
4
IC904
FF
IC902
GATE
5DI
4SK
3CS
1R/B
DO
WC
8
6
IC204
EEPROM
HDB-DATA
DOUT
DOUT
DOUT
SDEN
179
X SAK
SDCLK
183
X DCK
X SRQ
SDREQ
178
139
XIN
IC203
SDRAM
DQ0-DQ31
A0-A9,A10/AP,NC
MD0-MD31
SDDATA0-SDDATA7,
SDERROR
MA0-MA11
HAD0-HAD15
MDQM0-MDQM3DQM0-DQM3
MWE
WE
MCASCAS
MRASRAS
MCS0CS
12
32
8
4
53
16,71,28,59
17
18 52
19 51
20 49
BA0BS0
22 48
BA1BS1
23
1 3
47
57-60
64-71
75-78
81-84
88-95
99-102
55,54,52,51,
49-47,45-40,38-36
2,3,5,6,8-10
12-17,19-21,
23,24,26
2,4,5,7,
8,10,11,13,
74,76,77,79,
80,82,83,85,
31,33,34,36,
37,39,40,42,
45,47,48,50,
51,53,54,56
42-33
45,46
22,19-14,
11-3
HA1-HA3
2,207,206
177-174
171-168,182
25-27
60-66
24,21
150DATA0(DM)
151DATA1(FLR)
154DATA2(SLR)
155DATA3(CSW)
149BCK
148LRCK
147XCK
CDSEL
110MREQ
MREQ
BCK-ZIBA
LRCK-ZIBA
XCK
113MDI
114MC
115ML
MDI
MC
ML
MDI
RST
AUDIO
D +3.3V
MC
ML
Q202
1LE,2LE
IC302
D/A CONVERTER
IC201
DATA3
DATA2
DATA1
DATA4
BCK
VOUT7
OPTICAL
DIGITAL
OUT
IC392
+3.3V
REG.
A3V-2
D +5V
1 3
IC907
+3.3V
REG.
ZIVA
D +3.3V
ZIVA
D +1.8V
1 3
IC211
+1.8V
REG.
VOUT8
DOWNMIX-L
DOWNMIX-R
SURROUND-L
SURROUND-R
SW (LFE)
FRONT-L
FRONT-R
CENTER
MUTE
Q215,216
MUTE
Q217,218
MUTE
Q219
MUTE
Q220,221
MUTE
Q222
VOUT1
VOUT2
VOUT5
VOUT3
VOUT4
VOUT6
LRCK
SCKI
47
46
45
31
40
41
38
16
20
14
13
10
12
11
9
36
35
34
37
62,73,86,97
DATA1
DATA0
DATA2
DATA3
IEC958
26 CE
DQ0-DQ15
A0-A21
HAD0-15
HAD0-15
11 WE
28
OE
IC206
RAM
29-36,
38-45
25,24,23,
22-18,
8-1,48,
17,16,9,
10
7XTI
X902
27MHz
8XTO
M
DISPLAY
SECTION
(Page 31)
D
DISPLAY
SECTION
(Page 31)
B
DVD DSP
SECTION
(Page 26)
C
MAIN
SECTION
(Page 29)
A
DVD DSP (1/2)
SECTION
(Page 26)
Q903
Q904
30V-OUT.A
4 V-IN
V
6 Y-IN
Y
2 C-IN
C
14
16
CB-IN
CB/R
CR-IN
15
MUTE2
3
MUTE1
12 CY-IN
CR/B
WIDE
V-OUT.B
C-OUT
31
33
IC711
VIDEO AMP/BUFFER
IC710
VIDEO SELECTOR
27Y-OUT.A
Y-OUT.B
28
24CY-OUT.A
CY-OUT.B 25
21CB-OUT.A
CB-OUT.B 22
18CR-OUT.A
CR-OUT.B 19
VIDEO
OUT
VIDEO
J711
CD DIGITAL OUT
OPTICAL
COMPONENT
VIDEO OUT
J710
S VIDEO
OUT
J712
C
Y
7
3
1
2
Y
PB/CB
PR/CR
Q701,711
BUFFER
Q223,224
IC252
DATA OUT SELECTOR
5
2
1
6
GAME
INPUT
VIDEO
J601 (1/2)
LMF
46
LMR
47
44
TM-R
E-1
E-2
E-3
45
21
22
43
TM-F
RIN
FIN
9
7
MOTOR
DRIVE
4
2
9
7
4
2
MOTOR
DRIVE
OUT1
OUT2
OUT1
OUT2
RIN
FIN
IC712
MOTOR DRIVER
RE701
ROTARY
ENCODER
IC701
MOTOR DRIVER
M751
(LOADING)
M
M
M741
(TABLE)
• Signal Path
: DVD
: DIGITAL OUT
: VIDEO
: GAME IN (VIDEO)

Table of Contents

Related product manuals