EasyManua.ls Logo

Sony RMT-D142P - Signal Processor Block Diagram

Sony RMT-D142P
108 pages
Print Icon
To Next Page IconTo Next Page
To Next Page IconTo Next Page
To Previous Page IconTo Previous Page
To Previous Page IconTo Previous Page
Loading...
DVP-NS305/NS310/NS315/NS405/NS410/NS415
3-5 3-6
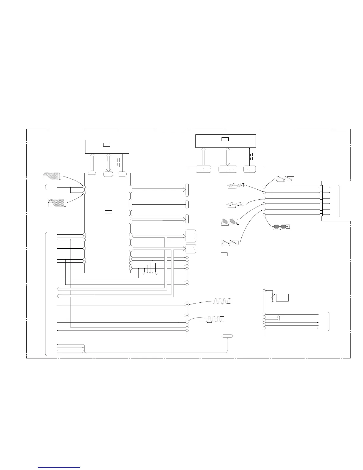
3-3. SIGNAL PROCESSOR BLOCK DIAGRAM
SDCK, XSHD,
XSRQ, XSAK, SDEF
SDCK
XSHD
XSRQ
XSAK
SDEF
DATA
BCLK
LRCK
DOUT
CDIN2I
CDIN1I
CDBCKI
CDLRKI
ICLKI
IERRI
ISTARTI
IVALI
IREQO
111
113
24
25
26
27
28
150
196
197
207
22
70
24
25
63
55
65
61
59
57
26
28
29
166
167
158
160
134
ı
141
2
ı
9
37
ı
40
42
ı
45
169
170
175
56
57
ı
59
63
64
47
ı
51
77
ı
84
65 74
MEMA 0 9
MEMD 0 15
ADAD 0 11
ADDT 0 15
105-108 110-113
115 116 118 120
135-138 140-143
145-148 150
151 153 154
168-169
171-174
176-179
181-184
186-189
191-194
2 5
7 10
12 15
17 20
122 124 125
127 129 130
132 133
36 43
46 53
29 31
30
IC303
16M DRAM
IC301
ARP
IC403
AV DECODER
IC404
16M SDRAM
31
32
34
35
202 205
MB-98 BOARD (2/4)
(SEE PAGE 4-19 to 4-23)
RF+
RF/SERVO
(SEE PAGE 3-4)
SYSTEM CONTROL
(SEE PAGE 3-7)
16
RFIN1
RFIN2
SD 0 7
SDI 0 7 DTI 0 7
MA 0 9
MD 0 15
SDDQ 0 15
CDDATA, CDBCK,
CDLRCK, CDDOUT
CLK, CKE,
DQML, DQMU,
CS, WE,
CAS, RAS
WE, RAS
LCAS, UCAS
C OUT
Y OUT
COMPOUT
B OUT
R OUT
G OUT
C
Y
V
Cr/B
Cb/R
Y/G
COUT
YOUT
COMPOUT
CR/B
CB/R
Y/G
VIDEO
(SEE PAGE 3-9)
AUDIO
(SEE PAGE 3-11)
VREFI
ACH12
ACH34
ACH56
LAND
LRCKO
BCKO
ACH12
LRCK
BCK
VIDEO
LEVEL
ADJ
RV401
HD 0 15
HAD 0 21HA 0 21
HD 0 15D 0 7
A 0 7 HA 0 7
HD 8 15
XRD
XWRH
RSTn
DM ACK1
DM REQ1
DM ACK0
DM REQ0
ACLK
HAD23
HAD22
CLKI
SCLKI
200
199
HWAIT0n
HIREQ0
HA 0 21
HD 0 15
HA 0 21
HD 0 15
XRST
512FSAVD
33MARP
XWRH
XRD
TRST
XARPIT
XARPCS
XWAIT
XAVDCS2
XAVDCS3
27MAVD
XAVDIT
DREQ0
DACK0
DREQ1
DACK1
XWR
XRD
XINT
XCS
XWAT
CLKIN
30DO SPDIF
175
174
173
172
TDO
TCK
TDI
TMS
171
97
99
98
101
102TRST
TDI
TCK
TDO
TMS
TRST
HCSn
HRWn
LAND
(FOR J TAG)
(2/2)
3
CN601 (1/3)
1
11
7
9
5
qj
IC403 yd
850mVp-p
H
qd
IC403 tg
H
950mVp-p
qk
IC403 yg
1.1Vp-p
H
qh
IC403 ya
650mVp-p
H
qg
IC403 tl
650mVp-p
H
950mVp-p
H
qf
IC403 tj
qs
IC403 ws
4.8Vp-p
40.8nsec
ql
IC403 <zb, <zn/
5.1Vp-p
37nsec
q;
IC301 <zzz (CL301)
(DVD PLAY)
1.2Vp-p
40ns/div
qa
IC301 <zzc (CL302)
(CD PLAY)
1.4Vp-p
0.2µs/div

Table of Contents

Related product manuals