EasyManua.ls Logo

Sony RMT-D142P - Av Decoder

Sony RMT-D142P
108 pages
Print Icon
To Next Page IconTo Next Page
To Next Page IconTo Next Page
To Previous Page IconTo Previous Page
To Previous Page IconTo Previous Page
Loading...
DVP-NS305/NS310/NS315/NS405/NS410/NS415
4-21 4-22
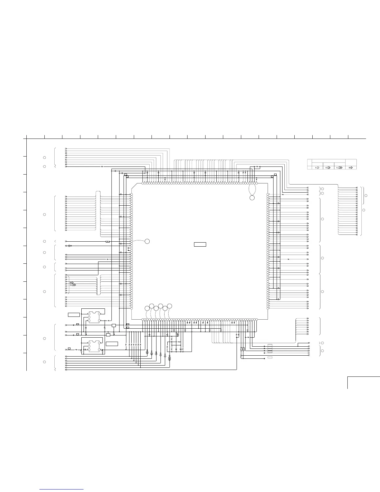
For Schematic Diagram
Refer to page 4-11 for printed wiring board.
Refer to page 4-5 for waveforms.
AV DECODER
MB-103 (4/7)
DREQ1
TDIKT
SDI2
CDLRCK/TDOKT
DREQ0
SDI1
HD7
XWAIT
SDI0
HD8
HD6
XAVDIT
HD5
HA4
XWRH
SDCK
HD4
HA5
HA20
SDEF
HD3
HA7
HA19
XSHD
HD2
HA6
HA21
XSAK
HD1
HA3
HA18
XSRQ
HA2
HA16
27MAVD
HA0
HA17
XRST
HA1
HA15
+1.8V
512FSAVD
HA14
SPDIF1
HA13
+3.3V
BCK
XRD
XAVDCS2
HA12
LRCK
XAVDCS3
HA11
HD12
HA8
HD11
HA9
ACH12
HD10
CDDOUT
HD9
CDDATA/EMU1
HD0
CDBCK/EMU0
HD15
HD14
HD13
SDI7
SDI6
HA10
SDI5
TMS
DACK0
SDI4
DACK1
CDLRCK/TDOKT
SDI3
TCK
GND
JL401
JL402
10
R430
XX
C414
10k
R412
10k
R426
0.01u
B
C416
0.01u
B
C422
0.01u
B
C423
0.01u
B
C426
XX
C430
0.01u
B
C431
0.01u
B
C432
XX
C433
XX
C434
0.01u
B
C435
0.01u
B
C436
0.01u
B
C429
0.01u
B
C425
XX
C424
XX
C421
0.01u
B
C418
0.01u
B
C413
0.01u
B
C412
XX
C411
0.01u
B
C410
XX
C409
0.01u
B
C408
XX
R425
0.01u
B
C428
XX
R404
R417
XX
JL408
JL409
JL410
JL411
JL412
10k
R423
XX
C427
0.01u
B
C415
0.01u
B
C417
YOUT
Y/G
CB/R
CR/B
COUT
COMPOUT
0
R402
16V
10u
C402
16V
10u
C406
50V
1u
C404
0.01u
B
C403
4V
220u
C405
16V
10u
C401
0
R401
+5V
1200
R414
6800
R413
0.1u
B
C419
0.1u
B
C420
1k
RV401
±
0.5%R407 220
±
0.5%
R406 220
±
0.5%R408
220
±
0.5%R409
220
±
0.5%
R410 220
±
0.5%
R411
220
DVD4
DVD7
DVD0
DVD2
DVD6
DVD1
DVD5
DVD3
27MCLK
100
R405
0.01u
B
C407
XFRRST
R416
XX
R420
XX
XX
R415
33MAVD
XX
R429
XX
R418
XX
R421
JL404
JL403
JL405
JL406
JL413
JL407
JL414
JL415
JL417
JL416
0.01u
B
C449
FL402
FL403
R436
XX
R437
XX
R438
XX
0
R439
TK11118CS
IC401
123
45
MM1385ENLE
IC402
123
45
XX
C450
IC403
CXD1935Q
12345678
910111213141516171819202122
2324252627282930313233343536
53 54
55 56 57 58 59 60 61 62 63 64 65 66 67 68
69 70 71 72 73 74 75 76 77 78 79 80 81 82 83
84 85 86 87 88 89 90 91 92 93 94 95 96 97
98 99 100 101 102103 104
105
106 107108 109 110111 112 113114 115 116117 118 119120
121 122123 124 125126 127 128129 130 131132 133 134
135 136137 138 139140 141 142143 144
44
52
4351 4250 4149 4048 3947 3846 3745
145 146147 148
149 150151 152 153154 155 156
157158159160161162163
164165166167168169170171172173174175176177
178179180181182183184185186187188189190191192
193194195196197198199200201202203204205206
207208
470
R403
ADDT6
ADDT7
ADDT12
ADDT5
ADDT1
ADDT2
ADDT0
ADDT14
ADDT14
ADDT13
ADDT3
ADDT8
ADDT15
ADDT11
ADDT10
ADDT9
DQML
DQMU
XWE
XCAS
CLK
XRAS
CKE
XCS2
XCS
ADAD11
ADAD9
ADAD10
ADAD8
ADAD0
ADAD7
ADAD6
ADAD1
ADAD2
ADAD5
ADAD3
ADAD4
1
A
XFRRST
SDI4
SDI5
SDI6
SDI7
SDI0
SDI1
SDI2
SDI3
HD0
HD15
HD14
HD13
HD12
HD11
HD10
HD1
HD9
HD8
HD7
HD6
HD5
HD4
HD3
HD2
HA1
HA2
HA3
HA4
HA5
HA6
HA7
HA8
HA9
HA10
HA11
HA12
HA13
HA14
HA15
HA16
HA17
HA18
HA19
HA20
HA21
HA0
DVD7
DVD6
DVD5
DVD4
DVD3
DVD2
DVD1
DVD0
HA1
HA2
HA3
HA4
HA5
HA6
HA7
HA8
HA9
HA10
HA11
HA12
HA13
HA14
HA15
HA16
HA17
HA18
HA19
HA20
HA21
HD0
HD1
HD2
HD3
HD4
HD5
HD6
HD7
HD8
HD9
HD10
HD11
HD12
HD13
HD14
HD15
SDI0
SDI1
SDI2
SDI3
SDI4
SDI5
SDI6
SDI7
DVD0
DVD1
DVD2
DVD3
DVD4
DVD5
DVD6
DVD7
HA0
SDAD11O
CVD07
HAD14I
CVD03
SDDQ4
SDDQ1
DT5I
DO
ACH56O
IVALIn
HAD18I
IOVSS07
DVO4
TDI
CVD01
DVSS33
HAD22I
SDRASOn
COUT
SDCS1On
IOVDD12
IOVSS01
CVD06
TRST
CDBCKI
SDAD5O
TCK MBIST_EN
BF_ID
HAD5I
DMACK1In
IOVDD00
SDDQ0
HAD3I
HCPUMDI
ICLKI
HRWn
DT0I
HAD7I
SDDQM1O
SDCS0On
YOUT
HSYNCOn
I2C_DATA
SDDQ13
HAD15IDVO1
IOVSS03
ROUT
IOVDD09
IOVDD10
DT4I
ACH12O
BCKO
ACH34O
ISTARTIn
HAD19I
SDDQ8
DVDD33
HAD23I
AVSS02
HAD8I
CDIN1I
CVS01
SDDQ10
CVS05
SDAD2O
IOVDD05 PAVSS18G
IOVSS00
IOVSS10
CVD00
SDAD12O
CVD02
HCSn
CVS00
IOVSS13
SDDQM0O
AVSS00
CVS03
IOVDD04
SDDQ2
IOVSS11
SCLKIN
SDAD8O
DVO2
NC
SDAD0O
IOVDD08
AVSS01
LRCKO
SDDQ12
IOVDD02
IERRIn
CVS07
SDDQ7
VGO
IOVDD11
COMPOUT
DVO5
CDIN2I
DMRQ0On
IOVSS05
SDCLKO
SDCKEO
CVD08
TMS
SDCASOn
CRPCLKI
IREFI
HAD11I
SDAD9O
DT7I
IOVSS12
HAD12I
RSTn
IOVSS08
GOUT
DSPACK0
DVO0
SDDQ5
IOVSS09
HAD16I
PAVDD18P
SDAD10O
DVO3
D1CLKO
IOVDD06
BOUT
IOVDD01
SDDQ3
DT3I
HAD20I
SDDQ9
HAD9I
SDAD4O
SDAD1O
CVS02
TESTIn
IOAVDD00
CLKI
SCAN_EN
DVO6
CVS08
DMACK0In
IOVSS02
HAD1I
HWAITOn
CVD05
DT2I
SDWEOn
IOAVSS00
IOVDD03
I2C_CLK
ACLK
DT6I
HAD0I
IOVSS06
HAD13I
IOVDD13
AVDD01
DSPACK1
SDDQ11
SDDQ14
IREQON
HAD17ICVD04
IOVSS04
AVDD02
HAD21I
SDDQ6
HAD10I
SDAD3O
SDAD7O
CDLRKI
VREFI
TDO SCAN_MODE
HDATA 0
DVO7
HAD4I
DMRQ1On
IOVDD07
SDDQ15
HAD2I
HIRQOn
SDAD6O
DT1I
HAD6I
CVS06
AVDD00
FLDO
CVS04
TRST
TMS
TCK
TDI
TDO
VIN
NOISE
GND
CONT
VOUT
HDATA 1
HDATA 2
HDATA 3
HDATA 6
HDATA 4
HDATA 5
HDATA 7
HDATA 8
HDATA 9
HDATA10
HDATA11
HDATA13
HDATA12
HDATA15
HDATA14
GND
NOISE VOUT
CONT VIN
(2012)
(2012)
19
H
M
23 12
J
179
G
11
E
C
10
K
14136
B
7
I
D
18
F
155
L
84 16
AV DECODER
MB-103 BOARD(4/7)
XX MARK:NO MOUNT
TO(6/7)
22
15
TO(3/7,6/7,
7/7)
23
TO(6/7)
TO(7/7)
24
TO(7/7)
25
19
TO(3/7)
16
TO(3/7)
TO(7/7)
26
TO(7/7)
27
NOT USE
28
TO(6/7)
29
TO(6/7)
30
TO(6/7)
TO(3/7)
18
32
TO(5/7)
TO(5/7)
33
34
TO(5/7)
NOT USE
TO(6/7)
31
20
TO(3/7)
IC403
AD DECODER
+1.8V REG
IC401
IC402
+3.3V REG
B+
B+
B+
B+
B+
B+
B+ B+
B+
-REF.NO.:1000 SERIES-
16
3.4
1.1
1.1
0.6
0.9
0.8
0.9
1.0
1.8
3.0
2.9
2.9
2.7
1.1
3.0
2.6
2.6
2.7
1.6
1.7
0
3.4
1.7
1.7
1.7
0
1.7
1.8
2.0
2.0
1.5
3.4
1.6
1.7
1.5
1.6
3.4
1.7
1.7
2.6
3.4
2.6
1.7
1.7
3.4
3.4
3.4
3.4
1.7
3.4
3.4
3.4
3.4
3.4
3.4
2.7
1.4
0
3.0
1.5
1.4
2.6
0.9
2.3
1.0
2.2
3.4
0.8
1.7
1.9
1.1
2.1
1.8
1.5
1.9
0.5
0.8
2.6
3.4
3.4
1.7
3.4
1.7
1.8
3.4
0
0
1.0
1.5
3.0
1.8
2.2
2.0
3.4
2.0
1.2
2.0
1.9
1.9
3.4
2.0
2.0
1.9
1.7
1.1
2.0
1.9
2.2
1.7
0.1
0.1
0
2.7
1.4
3.4
2.5
3.4
2.6
3.4
3.3
1.6
0.1
0.1
0.1
3.4
0.7
1.8
1.7
2.1
1.6
1.5
1.6
1.4
0.1
3.3
1.5
3.3
0.5
0.6
3.3
0.6
0.6
0.5
3.4
3.3
1.8
0.4
0.4
3.4
1.7
3.4
1.7
0.9
1.0
1.2
0.4
1.8
1.7
1.1
1.1
0.8
0
3.4
1.7
2.6
3.4
1.5
13
14
15
16
17
18
12
19
3.43.4
1.8
4.8
3.3
1.3
4.8
1.3
NO MARK:PB MODE
Y
PB
SIGNAL PATH
SIGNAL
VIDEO SIGNAL
AUDIO
Y/CHROMACHROMA

Table of Contents

Related product manuals