EasyManua.ls Logo

Sony RMT-D142P - DVD;CD Rf Amp Digital Servo

Sony RMT-D142P
108 pages
Print Icon
To Next Page IconTo Next Page
To Next Page IconTo Next Page
To Previous Page IconTo Previous Page
To Previous Page IconTo Previous Page
Loading...
DVP-NS305/NS310/NS315/NS405/NS410/NS415
4-15 4-16
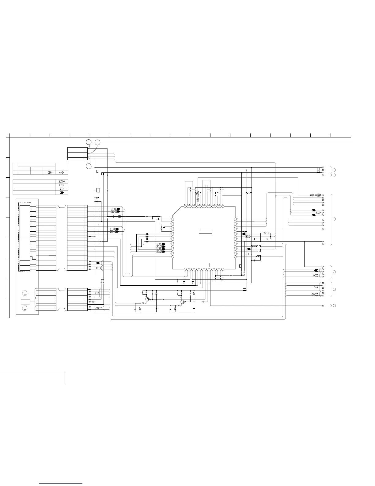
For Schematic Diagram
Refer to page 4-11 for printed wiring board.
Refer to page 4-5 for waveforms.
DVD/CD RF AMP, DIGITAL SERVO
MB-103 (1/7)
XLDON
47uH
L201
0.1u
B
C262
2200p B
C212
TE
6.3V
47u
C242
4700
R206
XX
R209
SSDFCTI
0.01u
B
C243
33
R249
CN203 26P
1
2
3
4
5
6
7
8
9
10
11
12
13
14
15
16
17
18
19
20
21
22
23
24
25
26
XX
C267
100
R211
XX
R247
SSWD
SSRD
330p
C261
2200p B
C211
0.01u
B
C260
0.1u
B
C241
SSCK
RF+
100
R235
4700p
B
C233
47k
R251
0.1u
B
C244
100
R246
SSCS
0.001u
C253
+3.3V
0.01u
B
C248
RFMON
33
R248
CN202 XX
1
2
3
4
5
0.1u
B
C265
2SB1132-T100-QR
Q202
MIRR
XX
R268
CN204
1
2
3
4
5
6
7
8
9
2.2M
R263
2200p B
C213
GND
0.01u
B
C201
100
R256
0.047u
B
C256
16V
10u
C238
100
R212
0.01u
B
C235
0.01u
B
C266
560p
C236
0.1u
B
C251
TZC
XX
C239
XX
R267
0.01u
B
C202
0.047u
B
C257
4700p
B
C232
100k
R264
27k
R265
47k
R245
2200p B
C210
0.01u
B
C247
2SB1132-T100-QR
Q201
0.1u
B
C252
16V
10u
C221
XX
C269
SS_MON
0.01u
B
C245
1k
R244
0.1u
B
C255
XX
D201
0.01u
B
C254
FE
330
R210
6.3V
47u
C234
+5V
12k
R260
33
R234
47uH
L202
XX
D202
33
R236
16V
10u
C263
PI
0.01u
B
C264
FL201
XX
C237
SP3728ACB
IC201
12345678
910111213141516
17 18
19 20 21 22 23 24 25 26 27 28 29 30 31 32
33 34 35 36 37 38 39 40
41 42 43 44 45 46 47 48
4950515253545556575859606162
6364
JL201
JL202
JL203
JL205
JL204
JL206
JL207
JL208
JL209
JL210
JL211
JL213
JL212
0
R273
XX
R266
XX
R272
XX
C224
CN203 26P
1
2
3
4
5
6
7
8
9
10
11
12
13
14
15
16
17
18
19
20
21
22
23
24
25
26
CN204
9P
1
2
3
4
5
6
7
8
9
INLIM
TRK-
FCS+
FCS-
SVC
TRK+
SVC
1
A
SPM+
SLA-
SLB+
SPM-
SLB-
SLA+
SSCS
B
SSDFCTI
H
SSWD
F
TE
SSDFCTI
D
DVD_LD
FE
G
SLA-
H
FCS+
SLB+
TRK+
A
B
FCS-
CD_LD
D
DVD_LD
SSCS
G
PI
SSCK
MIRR
SPM+
C
C
SPM-
TRK-
E
SLA+
FE
CD_LD
PI
SLB-
TE
FE
SSCK
SSWD
SSRD
TZC
E
F
SSRD
A
MIRR
TZC
TE
PI
INLIM
SLA+
SLB-
SLB+
SPM+
SLA-
SPM-
FCS+
FCS-
TRK+
TRK-
INLIM
CDPD
N.C
DVDPD
RFIN
MEVO
CDLD
MIRR
VPA
DVD LD
RF
TZIN
F
GND
E
MB
SLA-
MEV
AIP
RFIP
DIP
FE
D
LDON
TPA
ATON
BYP2
VCC
LD GND
F
INLIM
A
SLB-
C2
FE
MIN
G
MON
RF
AIN
SLB+
LDSELO
TE
D
SRD
C
SCLK
GND
PI
RX
PII
BYP
A
GND
N.C
FCS+
GND
E
H
D2
WIN
SWD
C TZC
B2
VC
B
MLPF
FNP
H
TRK-
VNA
FCS-
VR
TRK+
CN
SW/N.C
WPP
SLA+
CD LD
B
LED
VPB
CP
VNB
DFT
TPH
SDEN
PI
DVDLD
VCI
SIGO
MP
V33
ATOP
DIN
FNN
VC
G
TE
MOD
SPM+
PD
A2
SPM-
9P
SW/N.C.
VR
C
D
VCC
FCS+
A
TRK-
F
RF
MOD
N.C.
N.C.
VC
LD GND
DVD LD
CD LD
TRK+
FCS-
H
GND
PD
GND
B
G
E
SLA-
GND
SLA+
INLIM
SLB-
SPM+
SPM-
SLB+
LED
DVD/CD
PD IC
DVD/CD
LD MODULE
FOCUS
COIL
TRACKING
COIL
OPTICAL DEVICE
BASE UNIT
KHM-270AAA/Z-NP
M
M
INLIMIT
SENSOR
FMO-004
FLAT CABLE
FMM-041
FLAT CABLE
DVD LD DRIVE
CD LD DRIVE
IC201
DVD/CD RF AMP
DIGITAL SERVO
5
TO(2/7)
4
TO(2/7)
1
TO(7/7)
2
TO(7/7)
TO(3/7)
3
6
TO(6/7)
B+
B+
B+
B+
B+
B+
DVD/CD RF AMP DIGITAL SERVO
-REF.NO.:1000 SERIES-
XX MARK:NO MOUNT
MB-103 BOARD(1/7)
H
23 12 179
G
11
E
C
10 14136
B
7
I
D
F
15584 16
16
6
7
8
3.3
3.3
1.3
3.4
2.5
3.4
2.5
1.3
2.5
2.5
2.5
2.5
2.5
2.5
2.5
2.5
2.5
2.5
2.5
4.8
0.2
0.2
4.8
0
3.8
4.7
2.2
2.5
0
2.4
2.6
0
3.4
3.4
0
3.4
1.7
1.7
3.2
2.5
0
1.7
3.0
1.8
0
0
2.6
3.6
3.6
4.1
4.1
2.4
3.3
4.8
2.7
2.2
3.3
2.1
3.4
3.2
3.3
0.6
4.8
4.8
0.5
2.2
3.8
4.5
SLED MOTOR
SPINDLE MOTOR
NO MARK:PB MODE
TRACKING SERVO DVD/CD CDV
SPINDLE SERVO (SPEED AND PHASE)
FOCUS SERVO
SLED SERVO DVD/CD
PB
AUDIO
SIGNAL PATH
Y
SIGNAL
CHROMA
VIDEO SIGNAL
Y/CHROMA
SIGNAL PATH

Table of Contents

Related product manuals