EasyManua.ls Logo

Sony STR-DE585 - Diagrams and Schematics (Continued); Tuner;Audio Section Block Diagram

Sony STR-DE585
52 pages
Print Icon
To Next Page IconTo Next Page
To Next Page IconTo Next Page
To Previous Page IconTo Previous Page
To Previous Page IconTo Previous Page
Loading...
STR-DE585
1616
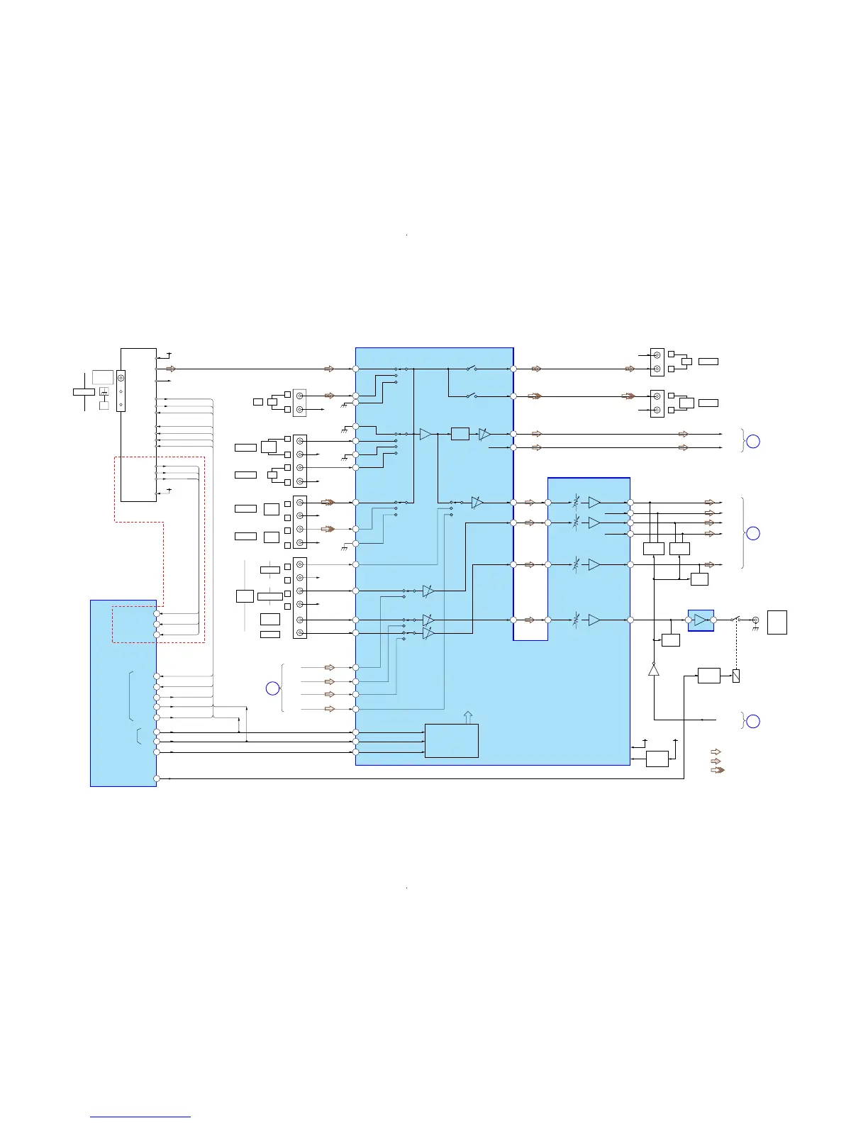
4-2. BLOCK DIAGRAM — TUNER/AUDIO SECTION —
1
2
67
R-CH
R-CH
R-CH
J402 (1/2)
J403
J404 (1/2)
J401
-1
L
-2
R
INCD
DVD/LD
MD/TAPE
AUDIO
IN
FM 75
COAXIAL
AM
ANTENNA
TU+10V
TM301
FM/AM TUNER UNIT
TU+3.3V
+10V
L CH
R CH
STEREO
TUNED
MUTE
CE
RDS SIGNAL
RDS DATA
RDS CLOCK
STEREO
TUNED
MUTE
SLATCH
DO
FM OUT
RDS DATA
RDS INT
STEREO
TUNED
MUTE
CE CLK
DATA
DO/DI
DATA
CLK
LATCH VOL IC
WOOFER RELAY
ST-DO/MC-DI
ST-DI/MC-DO
CLK
AEP,UK MODEL
STEREO
TUNED
MUTE
CE
DO/DI
DATA
CLK
FM SIGNAL OUT
RDS DATA
FM OUT
RDS DATA
RDS INT
RDS INT
R-CH
LREC 3
61
LREC 1
10
ALOUT
9
AROUT
R-CH
IN 8
IN 9
IN 5
IN 6
IN 7
IN 8
IN 1
IN 2
IN 3
AL IN
ASL IN
ASW IN
AC IN
3
IN 10
69
68
70
71
R-CH
R-CH
VIDEO 1
VIDEO 2
AUDIO
IN
AUDIO
IN
62
63
64
R-CH
R-CH
MULTI
CH IN
FRONT
SURROUND
CENTER
SUB
WOOFER
13
16
29
43
53
52
76
73
75
78
76
14
15
16
69
32
31
27
49
LSELOUT
45
SLDELOUT
50
46
37
CSELOUT
38
51
LOUT
47
39
33
SWSELOUT
34 35 5 7
SLOUT
55
ROUT
R-CH
R-CH
43
SROUT
COUT
SWOUT
20
21
22
R-CH
R-CH
R-IN
L-IN
J402 (2/2)
-4
R
-3
L
OUT MD/TAPE
VIDEO 1
J404 (2/2)
-3
L
-4
R
AUDIO
OUT
-1
L
-2
R
-5
L
-6
R
-1
L
-2
R
-1
L
-2
R
-3
L
-4
R
IN
-3
L
-4
R
15
MUTE
Q361,362
MUTE
Q365,366
MUTE
Q363
MUTE
Q364
RELAY
DRIVER
Q560
DSLIN
DSWIN
DCIN
DLIN
DSL IN
DSW IN
DC IN
DL IN
MCU
I/F
DATA
CLK
LATCH
DIR
FUNCTION
SELECT
IC201
RY560
Q379
INV.
FC MUTE
J405
SUB
WOOFER
AUDIO
OUT
FL-CH
FR-CH
SL-CH
SR-CH
C-CH
WOOFER
AMP
IC401
11
0/6/12dB
0/6/12dB
0/6/12dB
0/6/12dB
0/6/12dB
ATT
0/-6dB
+3.3V
REG
Q471
+7V
VCC
+3.3V
+7V
-6
-5
TUNER
VOL IC/
TUNER
SYSTEM
CONTROL
IC1601 (1/4)
POWER
SECTION
4
DIGITAL
SECTION
1
DIGITAL
SECTION
2
DIGITAL
SECTION
3
• Signal path
: TUNER (FM/AM)
: CD (ANALOG)
: VIDEO
• R-ch is omitted due to
same as L-ch.
(Page 17)
(Page 17)
(Page 17)
(Page 19)

Other manuals for Sony STR-DE585

Related product manuals